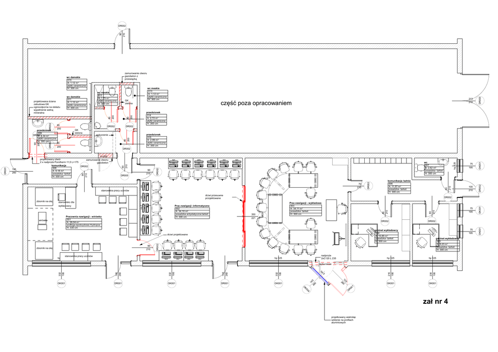
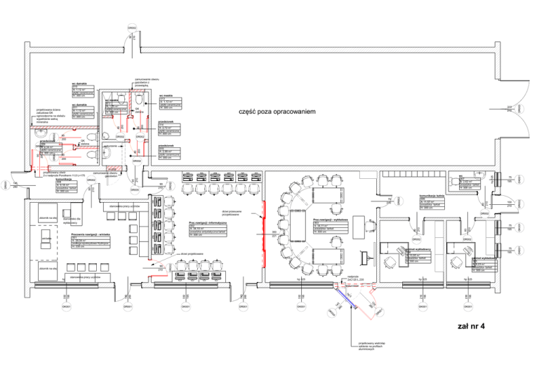
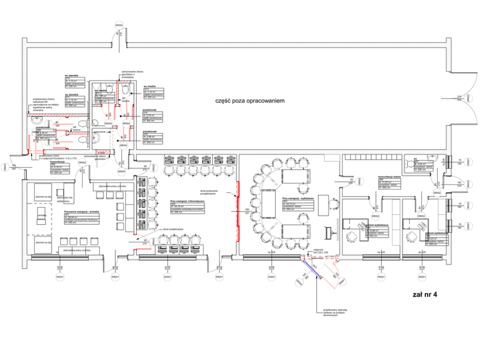
Szkwał_zał 4

Transkrypt

Szkwał_zał 4
90
210
DR002
80
200
DR002
DR002
wyburzenie
wc meskie
013
A: 1,12 m2
płytki ceramiczne
H: 300 cm
313
210
część poza opracowaniem
przedsionek
014
A: 2,72 m2
płytki ceramiczne
H: 300 cm
przedsionek
015
A: 2,99 m2
płytki ceramiczne
H: 300 cm
drzwi przesuwne
przojektowane
stanowiska pracy uczniów
hp 125
hp 125
nadproże
2xC120 L 235
hp 125
hp 125
hp 125
332
195
5
14 0
26
04
K0
O
R
D
230
195
145
260
OK001
216
195
332
195
DR001
9
12 0
26
OK001
5
DR001
hp
145
260
wyburzenie
OK001
OK001
OK001
1
00
zał nr 4
projetkowany wiatrołap
szklenie na profilach
aluminiowych
75
195
OK001
75
195
OK001
gabinet wykładowcy
005
A: 8,23 m2
posadzka- tarket
H: 300 cm
DR002
zbiornik na olej
DR002
gabinet wykładowcy
004
A: 10,85 m2
posadzka- tarket
H: 300 cm
drzwi projektowane
90
210
DR002
hp 125
Pracownia nawigacji - wirówka
001
A: 26,04 m2
podłoga epoksydowa Hydropox
H: 330 cm
wirówka
350
221
80
210
Prac.nawigacji -informatyczna
002
A: 34,10 m2
posadzka antystatyczna tarket
H: 300 cm
100
210
DR002
Prac.nawigacji - wykładowa
003
A: 34,11 m2
posadzka- tarket
H: 300 cm
80
210
stanowisko dla
wykładowcy
DR003
zbiornik na olej
75
195
DR002
komunikacja /sztnia
006
A: 11,57 m2
posadzka- tarket
H: 300 cm
80
210
stanowiska pracy uczniów
DR002
70
210
hp 125
wc
007
A: 2,62 m2
posadzka- tarket
H: 300 cm
DR002
90
210
90
210
DR005
90
210
332
195
DR001
145
260
projektowany otwór
2 x nadproże Porotherm 11,5 L=175
komunikacja
DR002
008
A: 9,18 m2
posadzka- tarket
H: 300 cm
OK001
DR002
h=200
zamurowanie otworu
gazobeton
hp 125
90
200
GK
zielona
GK
zielona
80
200
80
200
przedsionek
009
DR002
A: 4,34 m2
płytki ceramiczne
H: 300 cm
wc damskie
011
A: 1,12 m2
płytki ceramiczne
H: 300 cm
80
200
DR002
80
200
DR002
projektowana ściana
zabudowa GK
ognioodporna na stelażu
wypełnienie wełną
mineralna
wc meskie
012
A: 1,75 m2
płytki ceramiczne
H: 300 cm
DR003
zamurowanie otworu
gazobeton z
przewiązką
wc damskie
010
A: 1,12 m2
płytki ceramiczne
H: 300 cm