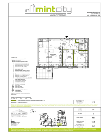
54 2 M3 55,5 7,0 57,5

Transkrypt

54 2 M3 55,5 7,0 57,5
4
4
TM
8
ŁAZIENKA
4,0 m2
46
26
100
12
71
705
86
172
229
745
935
70
P
5
HOL
7,9 m2
615
TSM
20
20
166
54
3335
20 75
70
4
20
4
40
20
40
[email protected]
www.mintcity.pl
tel. +48 88 48 48 036
5465
L
58
12
220
SALON Z ANEKS.
26,0 m2
183
POKÓJ
9,8 m2
363
- rury inst. domofonowej, telefonicznej, RTV
98
POKÓJ
7,8 m2
3635
OZNACZENIA:
8
347
4085
20
12
8
20
- tablica mieszkaniowa
TM
TSM
- skrzynka teletechniczna podtynkowa nad drzwiami
4665
20
- wypust oświetleniowy, sufitowy z kostką przyłączeniową
- wypust oświetleniowy, ścienny z kostką przyłączeniową
595
20
105
200
12
90
100
66
220
12
110
8
100
10
281
8 74
20
200
7
40
40
40
- łącznik instalacyjny 1-bieg., 250V, 16A, IP20, p/t
40
- łącznik instalacyjny świecznikowy, 250V, 16A, IP20, p/t
- łącznik instalacyjny schodowy, 250V, 16A, IP20, p/t
- dzwonek elektryczny, 250V, n/t
ALTANA
7,0 m2
- łącznik zwierny podświetlany "Dzwonek", 250V, 10A, IP20, p/t
- gniazdo wtykowe podwójne 1L+N+PE, 250V, 16A, IP20, p/t
- gniazdo wtykowe 1L+N+PE "Wyciąg", 250V, 16A, IP20, p/t
- gniazdo wtykowe 1L+N+PE "Zmywarka", 250V, 16A, IP44, p/t
- gniazdo wtykowe 1L+N+PE "Pralka", 250V, 16A, IP44, p/t
- gniazdo wtykowe 1L+N+PE, 250V, 16A, IP44, n/t
- wypust do zasilania kuchenki elektrycznej, puszka p/t, IP54, WK060
- wypust do zasilania telekomunikacyjnej skrzynki mieszkaniowej lub do
zasilania oświetlenia mebli kuchennych
- gniazdo abonenckie RTV, końcowe, p/t, IP20,
- gniazdo teleinformatyczne RJ45 kat.5e
- gniazdo telefoniczne 1xRJ12, p/t, IP20,
- unifon domofonu wg schematu instalacji
- kierunek wentylacji
- grzejniki płytowe w pokojach
- grzejniki drabinkowe w łazienkach
- nawiewniki ścienne z czerpnią we wnęce okiennej
- oprawa oświetleniowa
- oprawa oświetleniowa loggi
Uwaga! Nie wolno nawiercać krawędzi elementów żelbetowych. Minimalna
odległość bruzdy od krawędzi żelbetu = 15cm. Nie wolno umieszczać gniazd i
łączników na słupach.
0 0,5m 1m
2m
3m
4m
-ściany działowe, rozbieralne, zajmujące powierzchnię 2,0 m²
-ściany nierozbieralne
POWIERZCHNIA
WEWNĘTRZNA
LOKALU (m²)
57,5
Niniejsza karta katalogowa oraz wszelkie wizualizacje, zdjęcia, renderingi, plany danego lokalu z jego aranżacją i określonymi powierzchniami mają charakter poglądowy i nie stanowią oferty w rozumieniu kodeksu cywilnego. Ostateczny
produkt, jakim jest prezentowane mieszkanie, budynek i jego części składowe (np. balkony, tarasy, schowki, komórki, miejsca postojowe itd...) wraz z otoczeniem budynku tj. zagospodarowaniem terenu mogą różnić się w rzeczywistym
wykonaniu od prezentowanych materiałów graficznych.
54
PIĘTRO
2
ILOŚĆ POKOI
M3
POWIERZCHNIA
LOKALU (m²)
55,5
POWIERZCHNIA
BALKONU / TARASU /
LOGGII (m²)
7,0
N
NUMER
LOKALU
www.budowlana.waw.pl
BUDOWLANA OZIĘBŁO Sp. K
ul. Budowlana 7 lok.1 , 03-315 WARSZAWA
Powierzchnia liczona wg normy PN-ISO 9836:1997 w stanie wykończonym.Suma powierzchni wszystkich pomieszczeń=powierzchnia użytkowa lokalu.Wymiary podane są w stanie surowym.Wymiary i powierzchnie mogą
ulec nieznacznym zmianom.Instalacje oraz urządzenia elektryczne, sanitarne i drzwi wewnętrzne nie stanowią wyposarzenia lokali.Przedstawiono przykładowe rozmieszczenie urządzeń sanitarnych i kuchennych.Podłoża
pod posadzki wykonane ze szlichty.Na warstwy wykończeniowe przewidziano 2cm.Zabrania się ingerencji w elementy nośne budynku oraz szachty instalacyjne.