Skala - Schemat zasilania Sprawdzajacy Projektant Adres Treść

Transkrypt

Skala - Schemat zasilania Sprawdzajacy Projektant Adres Treść
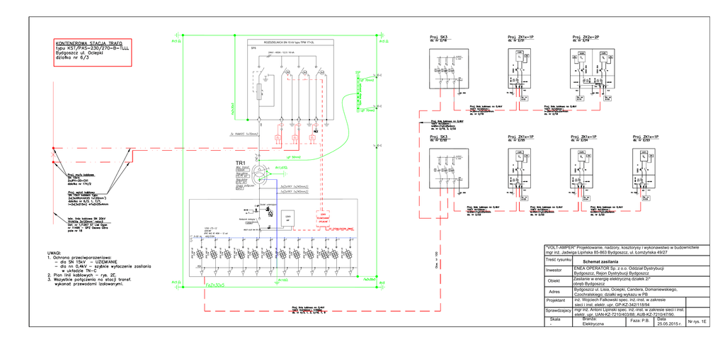
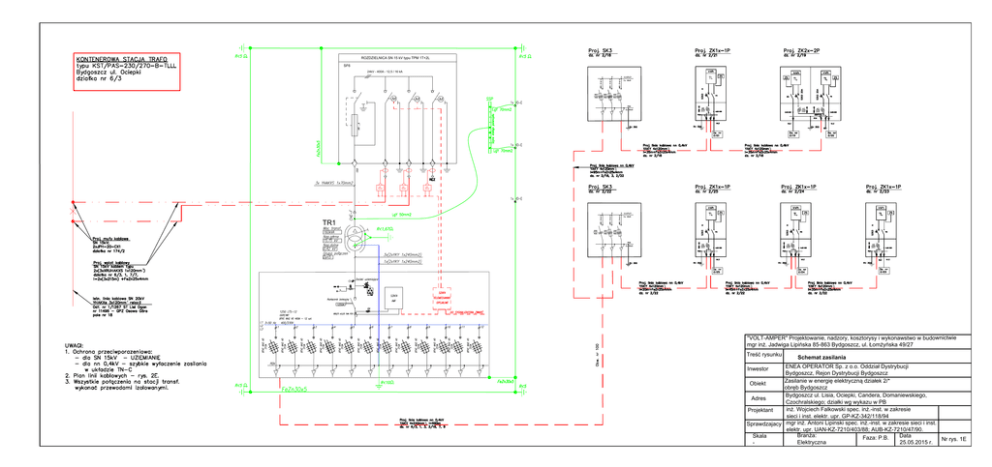
ROZDZIELNICA SN 15 kV typu TPM 1T+2L
SF6
24kV - 400A - 12,5 / 16 kA
TR1
"VOLT-AMPER" Projektowanie, nadzory, kosztorysy i wykonawstwo w budownictwie
Schemat zasilania
Inwestor
Bydgoszcz, Rejon Dystrybucji Bydgoszcz
Obiekt
Adres
Bydgoszcz ul. Lisia, Ociepki, Candera, Domaniewskiego,
Projektant
sieci i inst. elektr. upr. GP-KZ-342/118/94
Sprawdzajacy
Skala
-
elektr. upr. UAN-KZ-7210/403/88; AUB-KZ-7210/47/90.
Data
Faza: P.B.
Elektryczna
25.05.2015 r.
Nr rys. 1E