D IA TECH s .c - KPEC Bydgoszcz

Transkrypt

D IA TECH s .c - KPEC Bydgoszcz
Obiekt:
Inwestor:
Projektant:
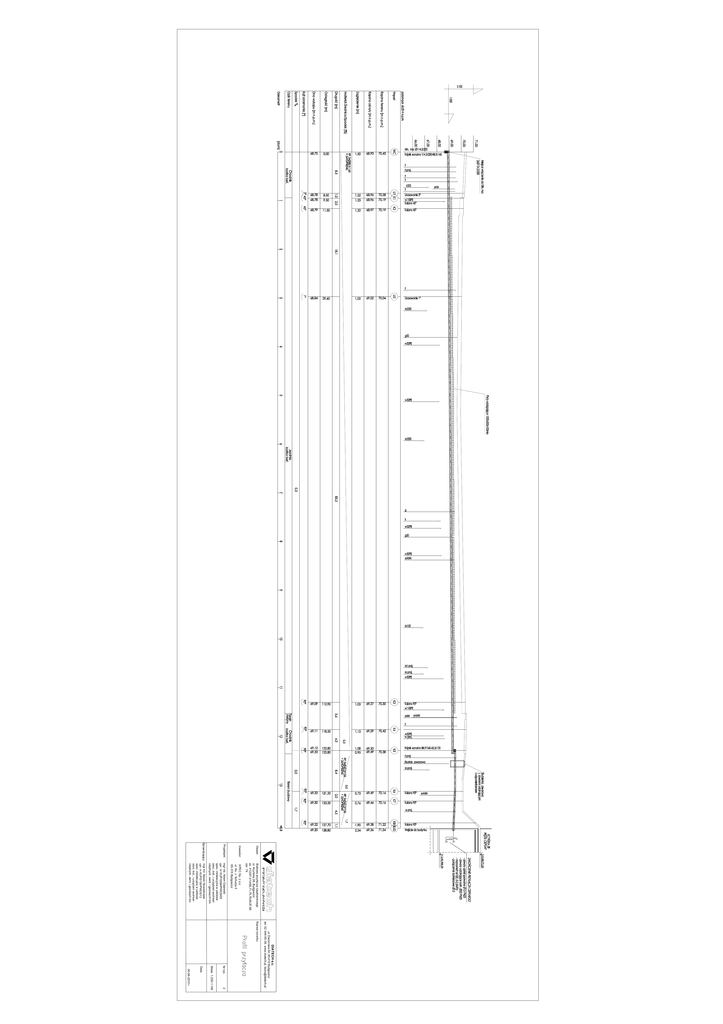
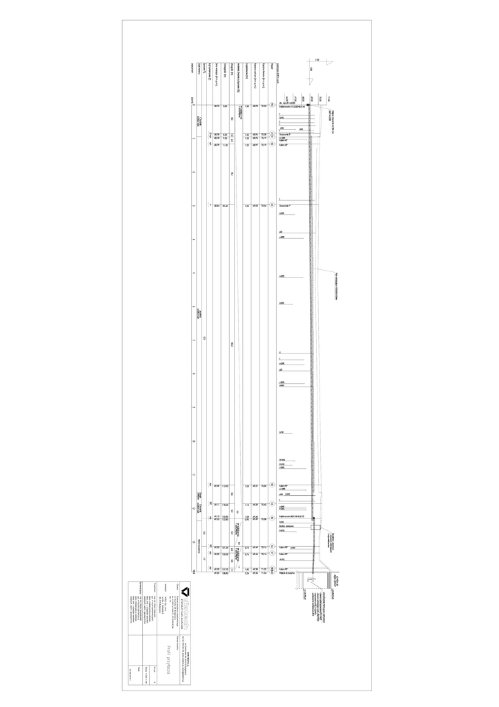
Budowa przyłacza ciepłowniczego
ul. Kcyńska 28, Bydgoszcz
dz. 412/67,413/68,71,75,79,85,87,86
obr. 74
KPEC Sp. z o.o.
ul. Ks. J. Schulza 5
85-315 Bydgoszcz
mgr inż. Adam Gajewski
upr. nr KUP/0064/PWOS/05
spec. instalacyjna w zakresie
sieci, inst., i urządzeń wod-kan
cieplnych, went. i gazowych b/o
Sprawdzający: mgr inż. Marek Nowastowski
upr. nr KUP/0159/PWOS/12
spec. instalacyjna w zakresie
sieci, inst., i urządzeń wod-kan
cieplnych, went. i gazowych b/o
DIATECH s.c.
2
ul. Dworcowa 54, 85-010 Bydgoszcz
tel: 52 349-50-39, www.diatech.pl, [email protected]
Nazwa rysunku:
Nr rys.
Skala 1:250-1:100
Data
30-06-2015 r.