[19155] Karta wstępnego zlecenia realizacji przyłącza - Biall-net

Transkrypt

[19155] Karta wstępnego zlecenia realizacji przyłącza - Biall-net
[19155] Karta wstępnego zlecenia realizacji przyłącza światłowodowego FTTH na etapie
inwestycji liniowej
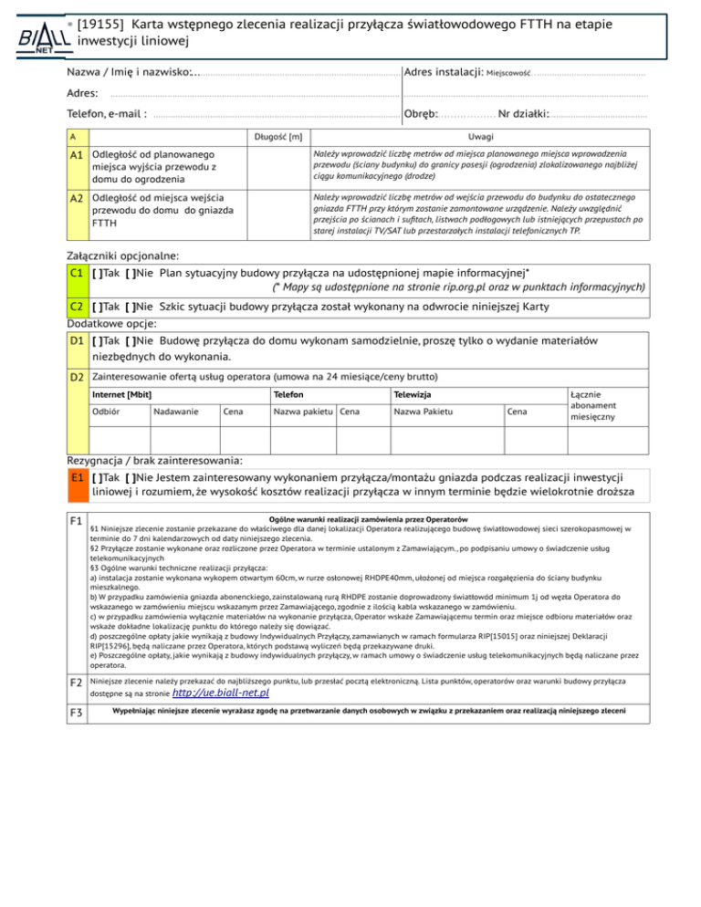
Nazwa / Imię i nazwisko:.................................................................................... Adres instalacji: Miejscowość…...........................................
Adres:
..................................................................................................................... ...................................................................................................
Telefon, e-mail : .................................................................................................... Obręb:.................. Nr działki:........................................
A
Długość [m]
Uwagi
A1 Odległość od planowanego
Należy wprowadzić liczbę metrów od miejsca planowanego miejsca wprowadzenia
przewodu (ściany budynku) do granicy posesji (ogrodzenia) zlokalizowanego najbliżej
ciągu komunikacyjnego (drodze)
A2 Odległość od miejsca wejścia
Należy wprowadzić liczbę metrów od wejścia przewodu do budynku do ostatecznego
gniazda FTTH przy którym zostanie zamontowane urządzenie. Należy uwzględnić
przejścia po ścianach i sufitach, listwach podłogowych lub istniejących przepustach po
starej instalacji TV/SAT lub przestarzałych instalacji telefonicznych TP.
miejsca wyjścia przewodu z
domu do ogrodzenia
przewodu do domu do gniazda
FTTH
Załączniki opcjonalne:
C1 [ ]Tak [ ]Nie Plan sytuacyjny budowy przyłącza na udostępnionej mapie informacyjnej*
(* Mapy są udostępnione na stronie rip.org.pl oraz w punktach informacyjnych)
C2 [ ]Tak [ ]Nie Szkic sytuacji budowy przyłącza został wykonany na odwrocie niniejszej Karty
Dodatkowe opcje:
D1 [ ]Tak [ ]Nie Budowę przyłącza do domu wykonam samodzielnie, proszę tylko o wydanie materiałów
niezbędnych do wykonania.
D2 Zainteresowanie ofertą usług operatora (umowa na 24 miesiące/ceny brutto)
Internet [Mbit]
Odbiór
Nadawanie
Cena
Telefon
Telewizja
Nazwa pakietu Cena
Nazwa Pakietu
Cena
Łącznie
abonament
miesięczny
Rezygnacja / brak zainteresowania:
E1 [ ]Tak [ ]Nie Jestem zainteresowany wykonaniem przyłącza/montażu gniazda podczas realizacji inwestycji
liniowej i rozumiem, że wysokość kosztów realizacji przyłącza w innym terminie będzie wielokrotnie droższa
F1
Ogólne warunki realizacji zamówienia przez Operatorów
§1 Niniejsze zlecenie zostanie przekazane do właściwego dla danej lokalizacji Operatora realizującego budowę światłowodowej sieci szerokopasmowej w
terminie do 7 dni kalendarzowych od daty niniejszego zlecenia.
§2 Przyłącze zostanie wykonane oraz rozliczone przez Operatora w terminie ustalonym z Zamawiającym., po podpisaniu umowy o świadczenie usług
telekomunikacyjnych
§3 Ogólne warunki techniczne realizacji przyłącza:
a) instalacja zostanie wykonana wykopem otwartym 60cm, w rurze osłonowej RHDPE40mm, ułożonej od miejsca rozgałęzienia do ściany budynku
mieszkalnego.
b) W przypadku zamówienia gniazda abonenckiego, zainstalowaną rurą RHDPE zostanie doprowadzony światłowód minimum 1j od węzła Operatora do
wskazanego w zamówieniu miejscu wskazanym przez Zamawiającego, zgodnie z ilością kabla wskazanego w zamówieniu.
c) w przypadku zamówienia wyłącznie materiałów na wykonanie przyłącza, Operator wskaże Zamawiającemu termin oraz miejsce odbioru materiałów oraz
wskaże dokładne lokalizację punktu do którego należy się dowiązać.
d) poszczególne opłaty jakie wynikają z budowy Indywidualnych Przyłączy, zamawianych w ramach formularza RIP[15015] oraz niniejszej Deklaracji
RIP[15296], będą naliczane przez Operatora, których podstawą wyliczeń będą przekazywane druki.
e) Poszczególne opłaty, jakie wynikają z budowy indywidualnych przyłączy, w ramach umowy o świadczenie usług telekomunikacyjnych będą naliczane przez
operatora.
F2
Niniejsze zlecenie należy przekazać do najbliższego punktu, lub przesłać pocztą elektroniczną. Lista punktów, operatorów oraz warunki budowy przyłącza
F3
Wypełniając niniejsze zlecenie wyrażasz zgodę na przetwarzanie danych osobowych w związku z przekazaniem oraz realizacją niniejszego zleceni
dostępne są na stronie http://ue.biall-net.pl
[19155] Karta wstępnego zlecenia realizacji przyłącza światłowodowego FTTH na etapie
inwestycji liniowej
Opcjonalny szkic sytuacyjny budowy przyłącza światłowodowego*
(*Odnajdź na głównej mapie obszaru inwestycji, jaka się znajduje w Społecznym Punkcie Informacyjnym, następnie pobierz odpowiedni dla danego sektora arkusz
mapy inwestycji, na którym wykonaj szkic, jak na rysunku. Jeżeli nie odnalazłeś właściwego arkusza mapy dla swojego domu wykonaj szkic ręcznie bez podkładu, jak
na poniższym przykładzie). W przypadku dowiązywania do Wspólnego Odcinka Przyłącza Magistralnego należy jednocześnie wypełnić formularz [15296]
Data i podpis właściciela nieruchomości : ..................................................................................................................................
* Przykład wykonania szkiców przyłącza – na mapie sektora (lewo) oraz ręczny szkicu (prawo)