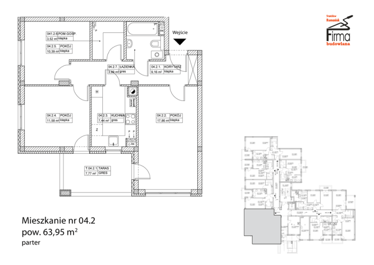
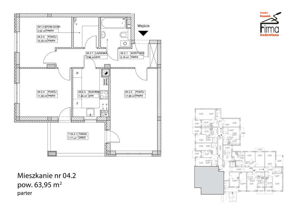
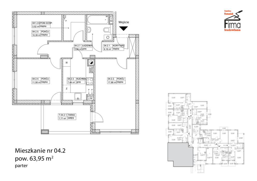
Mieszkanie nr 04.2 pow. 63,95 m2 - zrb

Transkrypt

Mieszkanie nr 04.2 pow. 63,95 m2 - zrb
Wejście
Mieszkanie nr 04.2
pow. 63,95 m2
parter