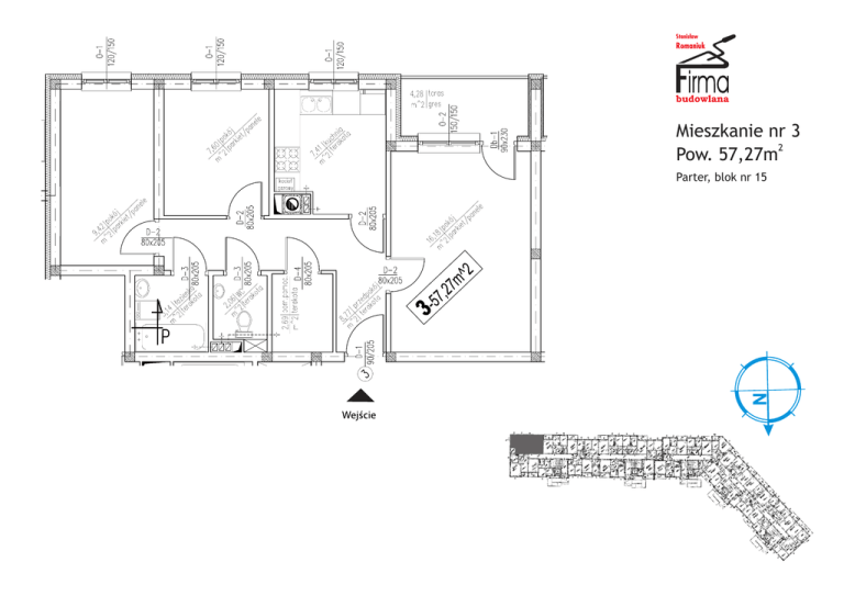
Mieszkanie nr 3 Pow. 57,27m - zrb

Transkrypt

Mieszkanie nr 3 Pow. 57,27m - zrb
Mieszkanie nr 3
2
Pow. 57,27m
Parter, blok nr 15