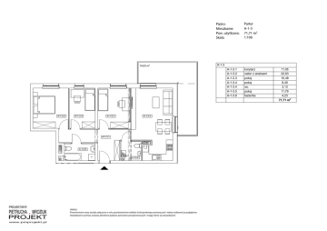
Piętro: Mieszkanie: Pow. użytkowa: Skala: Parter A-1

Transkrypt

Piętro: Mieszkanie: Pow. użytkowa: Skala: Parter A-1
Piętro:
Mieszkanie:
Pow. użytkowa:
Skala:
19,63 m2
A-1-3
A-1-3.1
A-1-3.2
A-1-3.3
A-1-3.4
A-1-3.4
A-1-3.5
A-1-3.6
A-1-3.5
A-1-3.4
A-1-3.3
A-1-3.2
A-1-3.1
O K
K
L
P
Ł
PROJEKTANT:
A-1-3.6
L
O
Ł
A-1-3.4
UWAGI:
Prezentowane rzuty zostały załączone w celu przedstawienia rozkładu funkcjonalnego pomieszczeń i należy traktować je poglądowo.
Ostatateczne wymiary zostaną określone podczas pomiarów powykonawczych i mogą różnić się od podanych.
Parter
A-1-3
71,71 m2
1:100
korytarz
salon z aneksem
pokoj
pokoj
wc
pokoj
łazienka
11,05
22,63
10,48
8,40
3,13
11,79
4,23
71,71 m2