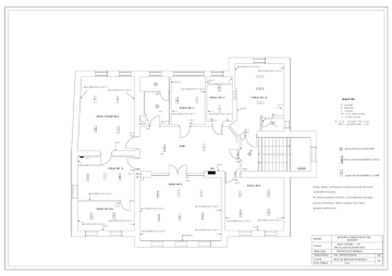
legenda oprawa Plexiform LUNA 60W Uwaga: oprawy

Transkrypt

legenda oprawa Plexiform LUNA 60W Uwaga: oprawy
POKOJ NR 12
POKOJ NR 13
legenda
POKOJ NR 11
wc
POKOJ DYREKTORA
wc
HAAL
oprawa Plexiform LUNA 60W
oprawa ewakuacyjna Begheli Astetica
POKOJ NR 10
TR2
oprawa Plexiform MONZA 2x36W
POKOJ NR 9
POKOJ NR 8
Uwaga: oprawy oswietleniowe w pomieszczeniech biurowych
wymieniono wczesniej
W pomieszczeniach nr 8,10,10a, 12 nie spełnione s wymogi
nat zenia o wietlenia. Nalezy uzupełnic ilosci opraw
POKOJ NR 10A
wg planu pomieszczen.
OBIEKT
TEMAT:
INWESTOR:
OPRACOWAŁ
AUTOR :
DATA OPRAC. :
BUDYNEK ADMINISTRACYJNO
BIUROWY
RZUT I PIETRA 1:50
INSTALACJE ELEKTRYCZNE
POWIAT KLUCZBORSKI
INZ. ANTONI KOZIOL
MGR INZ KRZYSZTOF REJMAN
2014
NR.
8E