legenda - Gmina Kobierzyce

Transkrypt

legenda - Gmina Kobierzyce
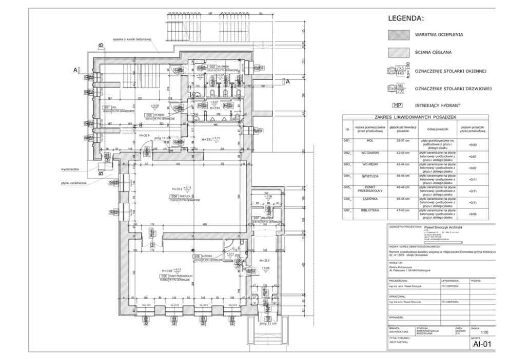
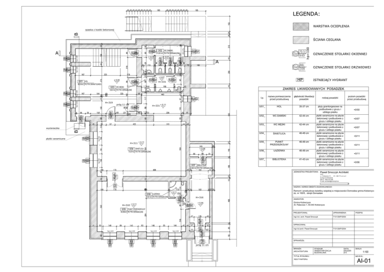
LEGENDA:
WARSTWA OCIEPLENIA
B
opaska z kostki betonowej
hp=100
0/02 WC DAMSKI
13,83 m2 PŁYTKI CERAMICZNE
hp=102
+ 0,07
+ 0,07
OZNACZENIE STOLARKI DRZWIOWEJ
+ 0,07
± 0,00
0/01
HOL
49,83m2 PŁYTKI GRANITOGRES
HP
H=331
hp=100
H=319
ISTNIEJĄCY HYDRANT
ZAKRES LIKWIDOWANYCH POSADZEK
hp=148
hp=100
0/03 WC MĘSKI
8,60 m2 PŁYTKI CERAMICZNE
próg 11 cm
H=331
+ 0,11
HP
l.p.
nazwa pomieszczenia
przed przebudową
głębokość likwidacji
posadzki
0/01_
HOL
35-37 cm
0/02_
0/03_
WC DAMSKI
WC MĘSKI
42-44 cm
42-44 cm
B
wycieraczka
hp=83
0/04_
0/05_
H=311 + 0,11
0/04 ŚWIETLICA
70,67m2 PŁYTKI CERAMICZNE
+ 0,06
0/06_
0/07_
hp=83
płytki ceramiczne
OZNACZENIE STOLARKI OKIENNEJ
A
hp=100
A
hp=100
ŚCIANA CEGLANA
ŚWIETLICA
46-48 cm
PUNKT
PRZEDSZKOLNY
46-48 cm
ŁAZIENKA
46-48 cm
BIBLIOTEKA
41-43 cm
0/07
BIBLIOTEKA
22,86 m2 PŁYTKI CERAMICZNE
rodzaj posadzki
poziom pozadzki
przez przebudową
płyty granitorgesowe na
podbudowie z gruzu i
ubitego piasku
+0/00
płytki ceramiczne na płycie
betonowej i podbudowie z
gruzu i ubitego piasku
płytki ceramiczne na płycie
betonowej i podbudowie z
gruzu i ubitego piasku
płytki ceramiczne na płycie
betonowej i podbudowie z
gruzu i ubitego piasku
płytki ceramiczne na płycie
betonowej i podbudowie z
gruzu i ubitego piasku
płytki ceramiczne na płycie
betonowej i podbudowie z
gruzu i ubitego piasku
płytki ceramiczne na płycie
betonowej i podbudowie z
gruzu i ubitego piasku
JEDNOSTKA PROJEKTOWA:
+0/07
+0/07
+0/11
+0/11
+0/11
+0/06
Paweł Smoczyk Architekt
adres:
u l. Forteczna 12 , 61 - 362 P o z n a ń
tel./fax 61 879 06 93
gsm 0 - 664-157-026
e-mail: [email protected]
NAZWA I ADRES OBIEKTU BUDOWLANEGO:
0/06
ŁAZIENKA
2,94 m2 PŁYTKI CERAMICZNE
Remont i przebudowa świetlicy wiejskiej w miejscowości Domosław gmina Kobierzyce
dz. nr 150/5, obręb Domasław
+ 0,11
H=316
+ 0,06
H=310 + 0,11
0/05 PUNKT PRZEDSZKOLNY
49,59m2 PŁYTKI CERAMICZNE
INWESTOR:
Gmina Kobierzyce
Al. Pałacowa 1, 55-040 Kobierzyce
PROJEKTOWAŁ:
UPRAWNIENIA:
mgr inż. arch. Paweł Smoczyk
7131/28/P/2004
PODPIS:
OPRACOWAŁ:
mgr inż.arch. Paweł Smoczyk
hp=103
hp=103
hp=103
7131/28/P/2004
hp=103
SPRAWDZIŁ:
próg 11 cm
BRANŻA:
ARCHITEKTURA
TYTUŁ RYSUNKU :
RZUT PARTERU
STADIUM:
INWENTARYZACJA
BUDOWLANA
DATA:
GRUDZIEŃ
2015
SKALA:
1:100
NR RYS.:
AI-01