1.05.Elementy OL90N i OL95 stosowane w oknach prostok tnych 7 3

Transkrypt

1.05.Elementy OL90N i OL95 stosowane w oknach prostok tnych 7 3
1.05.Elementy OL90N i OL95 stosowane w oknach prostokątnych
7
3
6
8
5
2
1
5
6
4
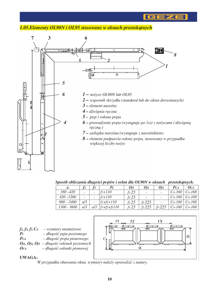
1 – noĪyce OL90N lub OL95
2 – wspornik skrzydła (standard lub do okien drewnianych)
3 – element naroĪny
4 – dĨwignia rĊczna
5 - prĊt i osłona prĊta
6 – prowadzenie prĊta (wystĊpuje po 1szt z noĪycami i dĨwignią
rĊczną )
7 – zaĞlepka naroĪna (wystĊpuje z naroĪnikiem)
8 – element podparcia osłony prĊta, stosowany w przypadku
wiĊkszej liczby noĪyc
Sposób obliczania długoĞci prĊtów i osłon dla OL90N w oknach prostokątnych.
a
380 –420
420 –1200
900 – 2400
1300 - 3600
f1, f2, f3, CA
Pf
PCA
Of1, Of2, Of3
OCA
f2
a/3
a/3
– wymiary montaĪowe
– długoĞü pĊta poziomego
– długoĞü prĊta pionowego
– długoĞü osłonek poziomych
– długoĞü osłonki pionowej
f3
a/3
Pf
f1+110
f1+110
f1+f2+110
f1+f2+f3110
Of1
f1-25
f1-25
f1-25
f1-25
Of2
f2-225
f2-225
CA
UWAGA:
W przypadku okuwania okna, wymiary naleĪy sprawdziü z natury.
10
Of3
-
f3-225
PCA
CA-160
CA-160
CA-160
CA-160
OCA
CA-168
CA-168
CA-168
CA-168
1.06.GEZE OL 90N w oknach skoĞnych i trapezowych
NoĪyce bez wspornika skrzydła
NaroĪnik z nastawnym kątem rozwarcia
ĝlizgowy wspornik skrzydła
Warunki geometryczne.
Kąt α
do 30o
bmin.
amin.
a1min.
400
420
700
o
o
550
360
650
o
o
650
320
550
o
o
750
270
450
600
420
-
30 - 40
40 - 50
50 - 60
∗ β min=60
o
* Obszar graniczny (unikaü w miarĊ moĪliwoĞci)
X – min. 20 mm,
D – min. 10 mm,
Pozostałe warunki
Kąt α = do 60o
CiĊĪar skrzydła
max 80 kg
max 40 kg
2
CiĊĪar wypełnienia
max 30 kg/m
DługoĞü boku skoĞnego P od 420 do 2000mm
11
Kąt βmin = 60o
max 25 kg/m2
od 420 do 1000mm
α = 60o - 150o
β = 150o - 60o
wariant
Elementy (przeniesienie napĊdu)
A
DĨwignia rĊczna – element naroĪny - noĪyce
B
DĨwignia rĊczna – element naroĪny – noĪyce - rygiel
C
DĨwignia rĊczna – element naroĪny – noĪyce – element naroĪny – rygiel
D
DĨwignia rĊczna – element naroĪny – rygiel – noĪyce – rygiel
E
DĨwignia rĊczna – rygiel – element naroĪny – noĪyce – element naroĪny - rygiel
F
DĨwignia rĊczna – element naroĪny - rygiel – noĪyce – element naroĪny - rygiel
G
DĨwignia rĊczna – rygiel - element naroĪny - rygiel – noĪyce – element naroĪny – rygiel - rygiel
b2 = Ğrednia wysokoĞü skrzydła
Na jednej krawĊdzi skoĞnej okna
moĪna zamontowaü tylko jedną
parĊ noĪyc, poniewaĪ w kaĪdym
punkcie jej długoĞci zmienia siĊ
odległoĞü rama/skrzydło.
Celem lepszego doszczelnienia
okna stosuje siĊ rygle, które są
sprzeĪone z okuciem OL90N.
12