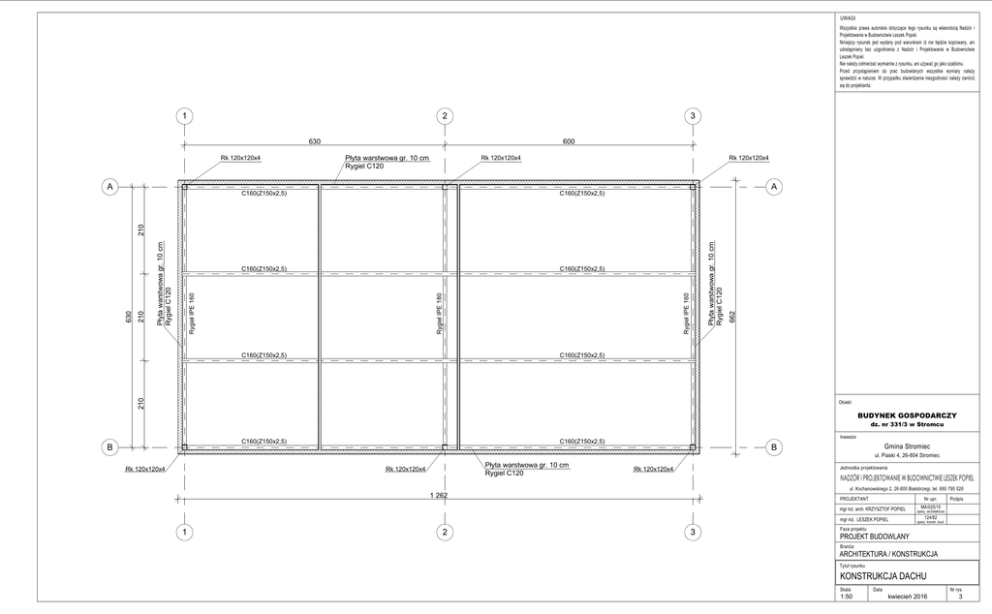
KONSTRUKCJA DACHU

Transkrypt

KONSTRUKCJA DACHU
UWAGI
Wszystkie prawa autorskie dotyczące tego rysunku są własnością Nadzór i
Projektowanie w Budownictwie Leszek Popiel.
Niniejszy rysunek jest wydany pod warunkiem iż nie będzie kopiowany, ani
udostępniany bez uzgodnienia z Nadzór i Projektowanie w Budownictwie
Leszek Popiel.
Nie należy odmierzać wymiarów z rysunku, ani używać go jako szablonu.
Przed przystąpieniem do prac budowlanych wszystkie wymiary należy
sprawdzić w naturze. W przypadku stwierdzenia niezgodności należy zwrócić
się do projektanta.
1
2
3
630
Rk 120x120x4
Płyta warstwowa gr. 10 cm
Rygiel C120
Rk 120x120x4
Rk 120x120x4
C160(Z150x2,5)
C160(Z150x2,5)
C160(Z150x2,5)
C160(Z150x2,5)
A
662
Płyta warstwowa gr. 10 cm
Rygiel C120
C160(Z150x2,5)
210
C160(Z150x2,5)
Rygiel IPE 160
Rygiel IPE 180
Rygiel IPE 160
Płyta warstwowa gr. 10 cm
Rygiel C120
210
630
210
A
600
Obiekt
BUDYNEK GOSPODARCZY
dz. nr 331/3 w Stromcu
C160(Z150x2,5)
B
Inwestor
C160(Z150x2,5)
Gmina Stromiec
B
ul. Piaski 4, 26-804 Stromiec
Rk 120x120x4
Płyta warstwowa gr. 10 cm
Rygiel C120
Rk 120x120x4
Jednostka projektowania
Rk 120x120x4
NADZÓR i PROJEKTOWANIE W BUDOWNICTWIE LESZEK POPIEL
ul. Kochanowskiego 2, 26-800 Białobrzegi, tel. 660 795 526
1 262
1
2
PROJEKTANT
3
Nr upr.
Podpis
MA/025/15
mgr inż. arch. KRZYSZTOF POPIEL
specj. architektura
mgr inż. LESZEK POPIEL
specj. konstr.-bud.
124/82
Faza projektu
PROJEKT BUDOWLANY
Branża
ARCHITEKTURA / KONSTRUKCJA
Tytuł rysunku
KONSTRUKCJA DACHU
Skala
1:50
Data
Nr rys.
kwiecień 2016
3