Magazyn - MOPS Katowice

Transkrypt

Magazyn - MOPS Katowice
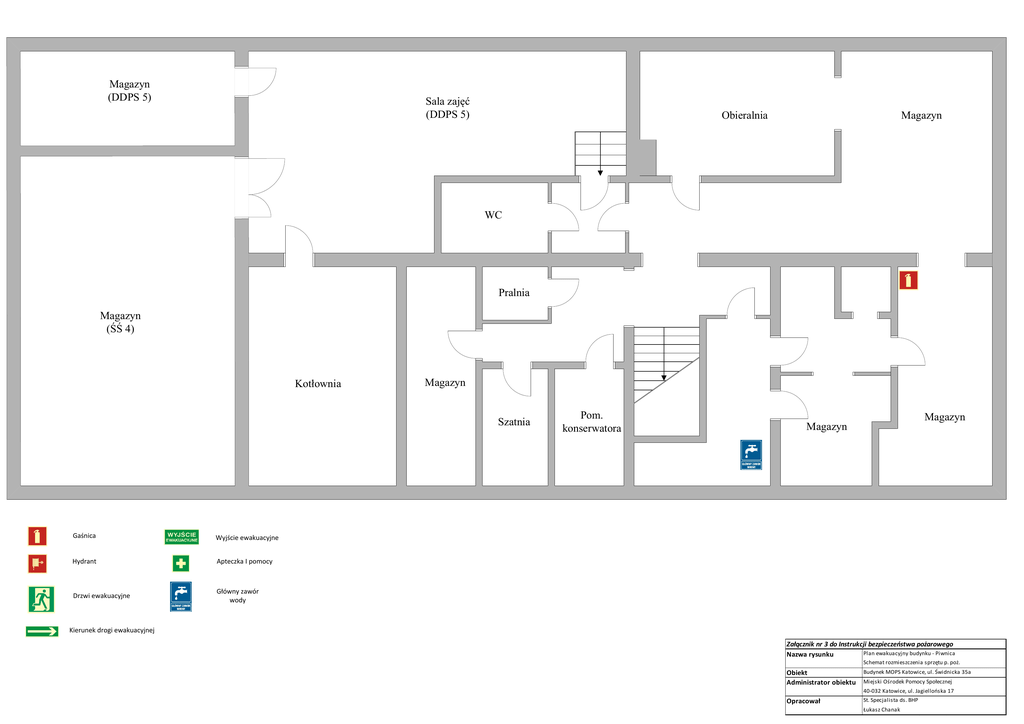
Magazyn
(DDPS 5)
Sala zajęć
(DDPS 5)
Obieralnia
Magazyn
WC
Pralnia
Magazyn
(ŚŚ 4)
Kotłownia
Magazyn
Szatnia
Gaśnica
Wyjście ewakuacyjne
Hydrant
Apteczka I pomocy
Drzwi ewakuacyjne
Główny zawór
wody
Pom.
konserwatora
Magazyn
Magazyn
Kierunek drogi ewakuacyjnej
Załącznik nr 3 do Instrukcji bezpieczeństwa pożarowego
Plan ewakuacyjny budynku - Piwnica
Nazwa rysunku
Schemat rozmieszczenia sprzętu p. poż.
Obiekt
Administrator obiektu
Budynek MOPS Katowice, ul. Świdnicka 35a
Miejski Ośrodek Pomocy Społecznej
40-032 Katowice, ul. Jagiellońska 17
Opracował
St. Specjalista ds. BHP
Łukasz Chanak