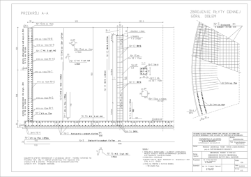
ZBROJENIE ŚCIANY ZBIORNIKA ZBROJENIE PŁYTY DNA

Transkrypt

ZBROJENIE ŚCIANY ZBIORNIKA ZBROJENIE PŁYTY DNA
pręty obwodowe od wys.2,5m
fi 10 co 12cm
pręty obwodowe do wys. 3m
fi 12 co 12cm
B U D OW L A N A
A n d r ze j B i a ł e ck i
P ro je k t B u do la n oW y k o n a w c zy
02- 784 War szaw a, ul . J ana Cyb isa 6 m 4 6
T emat :
PROJEKT ZB IOR NIKA
WO DY
PITN EJ (U ZDA TN ION EJ)
przy ul. IN śY NIERSKIEJ W ZIELON CE
Na zw a
ry s unku:
ZBI ORNIK WODY V=900 m3
ZBROJENI E ŚCIANY ZBI ORNI KA
ZBROJENI E PŁYTY DNA, SŁUPÓW
Pro jek tan t:
Skala:
Sprawdził:
Data: 04.2010
1:35
Nr rys.
K-3