Karta katalogowa

Transkrypt

Karta katalogowa
A
CZUJNIKI TEMPERATURY
Czujnik temperatury
seria FE3
Lp
DANE
DANE TECHNICZNE
TECHNICZNE
10
Zastosowanie:
Do pomiaru temperatury w œrodowisku silnie ¿r¹cych i agresywnych zasad, soli i kwasów, gazów agresywnych. Wysoka wytrzyma³oœæ dielektryczna umo¿liwia pomiar temperatury elektrolitów podczas procesu elektrolizy.
Os³ona czujnika jest wykonana z materia³u odpornego na chemiczny wp³yw œrodowiska. Umocowana w stalowej tulei noœnej
d³ugoœci Lt = 100mm wychodz¹cej z g³owicy. Mo¿liwoœæ mocowania czujnika g³owicowego uchwytem IT-UZ-11 lub IT-UZ-21
na tulei noœnej.
Zakres pomiarowy:
0... +500°C
dla wersji WG - g³owicowa
0... +250°C
dla wersji WP - przewodowa
Klasa elementu przetwarzaj¹cego *:
klasa B (standard) lub A (dla RTD)
Obwód pomiarowy (dla RTD):
2-, 3-, 4-przewodowy (dla pojedynczych)
2-, 3-przewodowy (dla podwójnych)
max pr¹d pomiarowy 5 mA
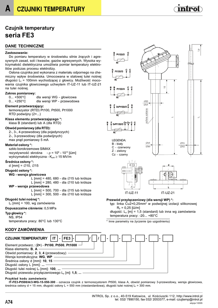
LEGENDA:
B - bia³y
C - czerwony
Z - zielony
Cz - czarny
Materia³ os³ony *:
szk³o borokrzemowe SIMAX
rezystywnoœæ skroœna - ρ = 108 - 1013 [Ωm]
wytrzyma³oœæ elektryczna - Kpsk ≥ 15 MV/m
Œrednica os³ony *:
d [mm] = ∅10, ∅15
D³ugoœæ os³ony *:
WG - wersja g³owicowa
L [mm] = 480,
L [mm] = 280,
WP - wersja przewodowa
L [mm] = 500,
L [mm] = 300,
L
o s ³o n a s z k la n a
Element przetwarzaj¹cy:
termorezystor (RTD) Pt100, Pt500, Pt1000
RTD podwójny (2×...)
L1
∅22
∅15
∅15
∅1 5
∅1 0
∅10
680 - dla ∅15 lub krótsze
480 - dla ∅10 lub krótsze
700 - dla ∅15 lub krótsze
500 - dla ∅10 lub krótsze
IT-UZ-21
IT-UZ-11
D³ugoœæ tulei noœnej *:
Lt [mm] = 100, wg zamówienia
Przewód przy³¹czeniowy (dla wersji WP) *:
typ: linka Cu2×0,25mm2 w podwójnej izolacji silikonowej
Rp = 0,25 [Ω/m]
d³ugoœæ: Lp [m] = 1,5 (standard) lub inna wg zamówienia
temperatura pracy: -20... +80°C
Dopuszczalne ciœnienie: 0,5 MPa
Typ g³owicy *:
NS, IP54
temperatura pracy: 80°C lub 130°C
* Inne parametry na ¿yczenie (po uzgodnieniu)
SPOSÓB
OZNACZANIA I ZAMAWIANIA
KODY
ZAMÓWIENIA
CZUJNIK TEMPERATURY
IT - FE3 -
/
/
-
-
-
-
-
Element przetwarz.: (2×) - Pt100, Pt500, Pt1000
Klasa elementu: B, A
Obwód pomiarowy: 2, 3, 4 (przewodowy)
Wersja konstrukcyjna: WG, WP
Œrednica os³ony d [mm]: 10, 15
D³ugoœæ os³ony L [mm]: ...
D³ugoœæ tulei noœnej Lt [mm]: 100, ...
D³ugoœæ przewodu przy³¹czeniowego Lp [m]: 1,5; ...
Przyk³ad kodu zamówienia:
IT-FE3-Pt500/A/3-WG-15-550-300 - oznacza czujnik z termorezystorem Pt500, klasa A, obwód pomiarowy 3-przewodowy, wersja g³owicowa,
œrednica os³ony d = 15 mm, d³ugoœæ os³ony L = 550 mm (niestandardowa), d³ugoœæ tulei noœnej Lt = 300 mm.
A74
INTROL Sp. z o.o., 40-519 Katowice, ul. Ko ściusz ki 112, http://www.introl.pl
tel. 032/ 7890150, fax 032/ 2053377, e-mail: [email protected]
edycja 1/2005