Karta katalogowa

Transkrypt

Karta katalogowa
A
CZUJNIKI TEMPERATURY
Czujnik temperatury
seria FI5
DANE
DANE TECHNICZNE
TECHNICZNE
84
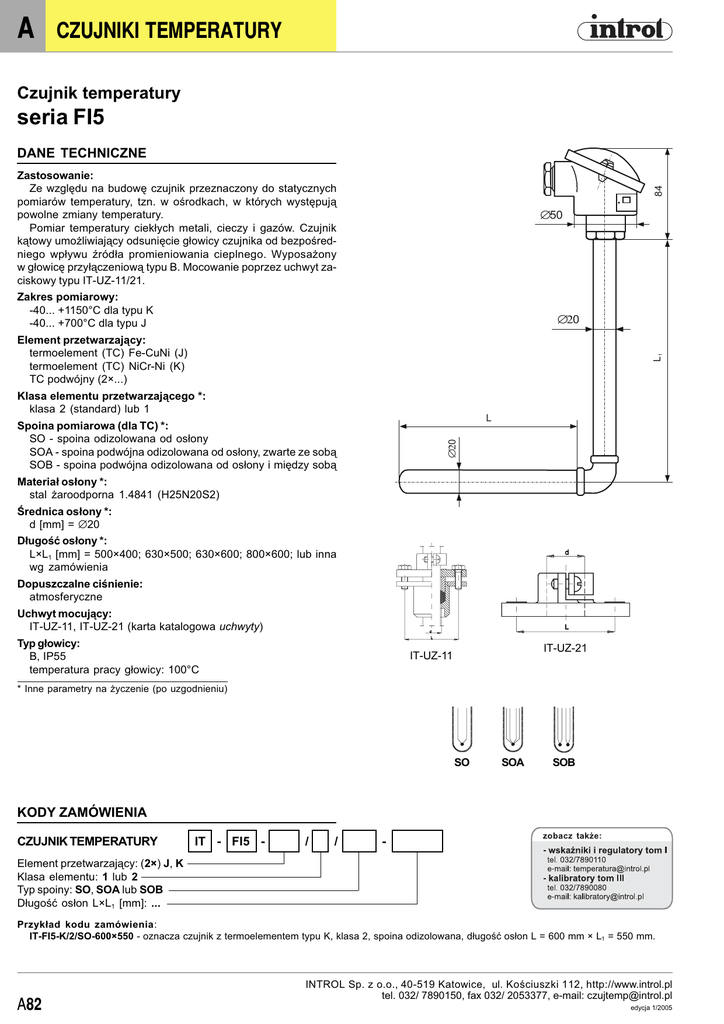
Zastosowanie:
Ze wzglêdu na budowê czujnik przeznaczony do statycznych
pomiarów temperatury, tzn. w oœrodkach, w których wystêpuj¹
powolne zmiany temperatury.
Pomiar temperatury ciek³ych metali, cieczy i gazów. Czujnik
k¹towy umo¿liwiaj¹cy odsuniêcie g³owicy czujnika od bezpoœredniego wp³ywu Ÿród³a promieniowania cieplnego. Wyposa¿ony
w g³owicê przy³¹czeniow¹ typu B. Mocowanie poprzez uchwyt zaciskowy typu IT-UZ-11/21.
∅50
Zakres pomiarowy:
-40... +1150°C dla typu K
-40... +700°C dla typu J
∅20
L1
Element przetwarzaj¹cy:
termoelement (TC) Fe-CuNi (J)
termoelement (TC) NiCr-Ni (K)
TC podwójny (2×...)
Klasa elementu przetwarzaj¹cego *:
klasa 2 (standard) lub 1
L
∅20
Spoina pomiarowa (dla TC) *:
SO - spoina odizolowana od os³ony
SOA - spoina podwójna odizolowana od os³ony, zwarte ze sob¹
SOB - spoina podwójna odizolowana od os³ony i miêdzy sob¹
Materia³ os³ony *:
stal ¿aroodporna 1.4841 (H25N20S2)
Œrednica os³ony *:
d [mm] = ∅20
D³ugoœæ os³ony *:
L×L1 [mm] = 500×400; 630×500; 630×600; 800×600; lub inna
wg zamówienia
Dopuszczalne ciœnienie:
atmosferyczne
Uchwyt mocuj¹cy:
IT-UZ-11, IT-UZ-21 (karta katalogowa uchwyty)
Typ g³owicy:
B, IP55
temperatura pracy g³owicy: 100°C
IT-UZ-21
IT-UZ-11
* Inne parametry na ¿yczenie (po uzgodnieniu)
SO
SOA
SOB
SPOSÓB
OZNACZANIA I ZAMAWIANIA
KODY
ZAMÓWIENIA
CZUJNIK TEMPERATURY
IT - FI5 -
/
/
-
Element przetwarzaj¹cy: (2×) J, K
Klasa elementu: 1 lub 2
Typ spoiny: SO, SOA lub SOB
D³ugoœæ os³on L×L1 [mm]: ...
Przyk³ad kodu zamówienia:
IT-FI5-K/2/SO-600×550 - oznacza czujnik z termoelementem typu K, klasa 2, spoina odizolowana, d³ugoœæ os³on L = 600 mm × L1 = 550 mm.
A82
INTROL Sp. z o.o., 40-519 Katowice, ul. Ko ściusz ki 112, http://www.introl.pl
tel. 032/ 7890150, fax 032/ 2053377, e-mail: [email protected]
edycja 1/2005