Visio-Projekt PUP Płock całość .vsd

Transkrypt

Visio-Projekt PUP Płock całość .vsd
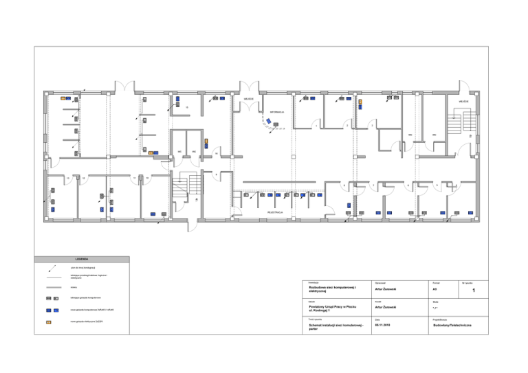
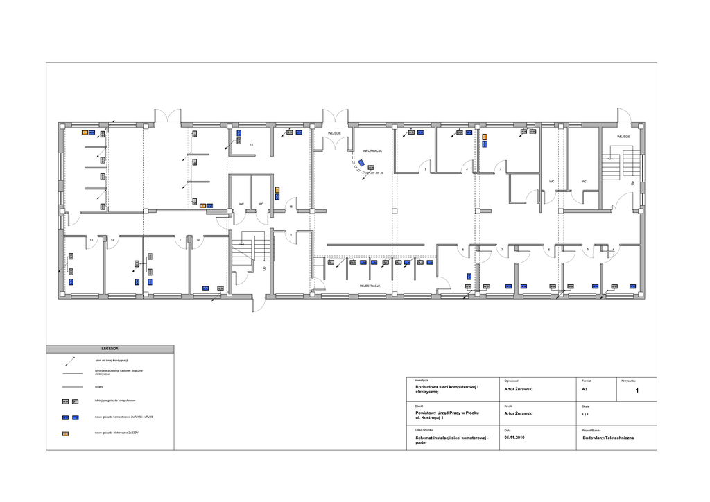
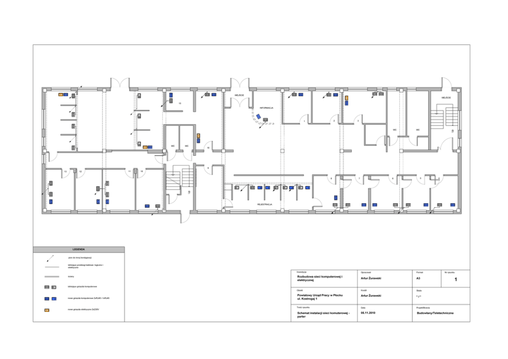
WEJŚCIE
WEJŚCIE
15
INFORMACJA
3
WC
WC
WC
WC
Up
2
1
16
9
13
12
11
10
7
6
5
4
Up
8
REJESTRACJA
LEGENDA
pion do innej kondygnacji
istniejące przebiegi kablowe: logiczne i
elektryczne
ściany
Inwestycja
Opracował
Format
Rozbudowa sieci komputerowej i
elektrycznej
Artur Żurawski
A3
Obiekt
Kreślił
Skala
Powiatowy Urząd Pracy w Płocku
ul. Kostrogaj 1
Artur Żurawski
Treść rysunku
Data
Projekt/Branża
Schemat instalacji sieci komuterowej parter
05.11.2010
Budowlany/Teletechniczna
Nr rysunku
istniejące gniazda komputerowe
nowe gniazda komputerowe 2xRJ45 i 1xRJ45
nowe gniazda elektryczne 2x230V
*/*
1
GPD
RE
SERWEROWNIA
WC
29
30
31
32
33
34
35
28
Up
27
WC
28b
28a
26
25
24
23
22
21
36
Up
SALA KONFERENCYJNA
21a
26a
26b
pion do innych kondygnacji: parter,
piwnica
RE
RE - Istniejąca rozdzielnica elektryczna
istniejące przebiegi kablowe: logiczne i
elektryczne
GPD
LEGENDA
GPD - Główny Punkt Dystrybucyjny
istniejąca szafa teletechniczna
ściany
Inwestycja
Opracował
Format
Rozbudowa sieci komputerowej i
elektrycznej
Artur Żurawski
A3
Obiekt
Kreślił
Skala
Powiatowy Urząd Pracy w Płocku
ul. Kostrogaj 1
Artur Żurawski
Treść rysunku
Data
Projekt/Branża:
Schemat instalacji sieci komuterowej piętro
05.11.2010
Budowlany/Teletechniczny
Nr rysunku
istniejące gniazda komputerowe
nowe gniazda komputerowe 2xRJ45 i 1xRJ45
nowe gniazda elektryczne 2x230V
*/*
2
GPD
RE
SERWEROWNIA
WC
WC
29
XX
26
30
31
32
33
34
35
XX
Up
27
26
25
24
23
22
21
36
Up
SALA KONFERENCYJNA
21a
26a
26b
RE
zejście z nad sufitu podwieszanego
RE - Istniejąca rozdzielnica elektryczna
GPD
LEGENDA
GPD - Główny Punkt Dystrybucyjny
istniejąca szafa teletechniczna
istniejący kanał metalowy 100x42
Inwestycja
Opracował
Format
Rozbudowa sieci komputerowej i
elektrycznej
Artur Żurawski
A3
Obiekt
Kreślił
Skala
proponowane nowe trasy kabli w kanałach
PCV w miejsce usuniętych starych
Powiatowy Urząd Pracy w Płocku
ul. Kostrogaj 1
Artur Żurawski
proponowane nowe trasy kabli w peszlu lub
rurce PCV nad sufitem podwieszanym
Treść rysunku
Data
Projekt/Branża:
Rozmieszczenie tras i kanałów
kablowych - piętro
05.11.2010
Budowlany/Teletechniczny
peszel lub rurka PCV
istniejące gniazda komputerowe
istniejące kanały PCV
Nr rysunku
nowe gniazda komputerowe 2xRJ45 i 1xRJ45
proponowane nowe trasy kabli w
kanałach metalowych
nowe gniazda elektryczne 2x230V
*/*
3
Up
Archiwum
Kanał Wentylacyjny
Up
Up
Kotłownia
Archiwum
Archiwum
Archiwum
LEGENDA
pion do innych kondygnacji: parter,
piwnica
istniejące przebiegi kablowe: logiczne i
elektryczne
ściany
Inwestycja
Opracował
Format
Rozbudowa sieci komputerowej i
elektrycznej
Artur Żurawski
A3
Obiekt
Kreślił
Skala
Powiatowy Urząd Pracy w Płocku
ul. Kostrogaj 1
Artur Żurawski
Treść rysunku
Data
Projekt/Branża:
Rozmieszczenie tras i kanałów
kablowych - piwnica
05.11.2010
Budowlany/Teletechniczny
Nr rysunku
istniejący kanał metalowy 100x42
proponowane nowe trasy kabli w
kanałach metalowych
proponowane nowe trasy kabli w kanałach
PCV
*/*
4