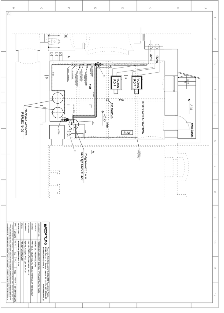
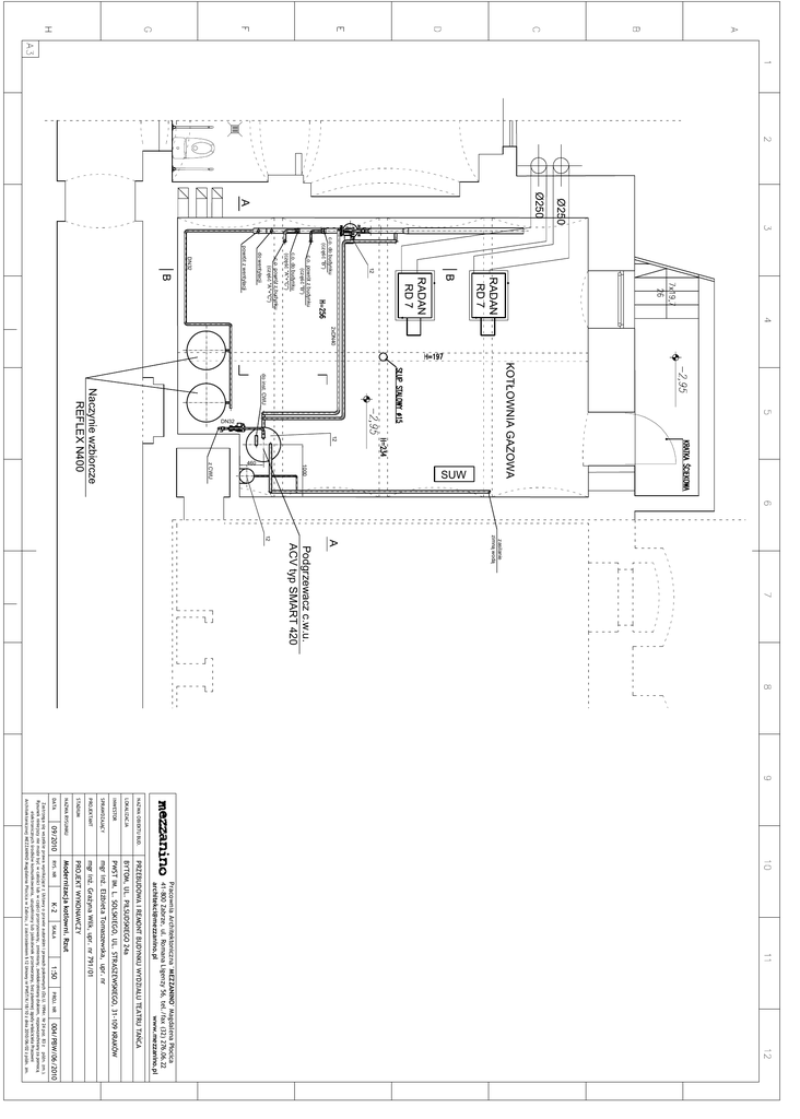
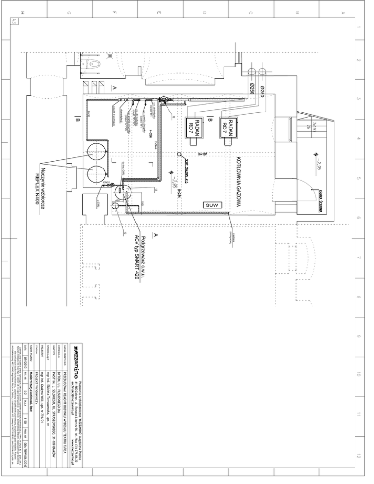
rys. nr 2

Transkrypt

rys. nr 2
12
RADAN
RD 7
RADAN
RD 7
B
c.o. do budynku
(część "B")
c.o. powrót z budynku
(część "B")
c.o. do budynku
(część "A"+"C")
c.o. powrót z budynku
(część "A"+"C")
do wentylacji
powrót z wentylacji
2xDN40
12
KOTŁOWNIA GAZOWA
do inst. CWU
1000
SUW
Ø250
Ø250
A
DN32
B
z CWU
460
Naczynie wzbiorcze
REFLEX N400
DN32
zasilanie
zimną wodą
Podgrzewacz c.w.u.
ACV typ SMART 420
A
12
LOKALIZACJA
NAZWA OBIEKTU BUD.
mgr inż. Elżbieta Tomaszewska, upr. nr
PWST IM. L. SOLSKIEGO, UL. STRASZEWSKIEGO, 31-109 KRAKÓW
BYTOM, UL. PIŁSUDSKIEGO 24a
PRZEBUDOWA I REMONT BUDYNKU WYDZIAŁU TEATRU TAŃCA
Pracownia Architektoniczna ' MEZZANINO' Magdalena Płocica
41-800 Zabrze, ul. Romana Ligenzy 56, tel./fax (32) 276.06.22
[email protected]
www.mezzanino.pl
INWESTOR
004/PBW/06/2010
SPRAWDZAJĄCY
PROJ. NR
mgr inż. Grażyna Wilk, upr. nr 791/01
1:50
PROJEKTANT
SKALA
PROJEKT WYKONAWCZY
K-2
STADIUM
RYS. NR
Modernizacja kotlowni. Rzut
09/2010
NAZWA RYSUNKU
DATA
Zastrzega się wszelkie prawa wynikające z Ustawy o prawie autorskim i prawach pokrewnych (Dz.U. 1994r. Nr 24 poz. 83 z późn. zm.).
Rysunek niniejszy nie może być w całości lub w części przerysowany, zmieniany, zwielokrotniany drukiem, rozpowszechniany za pomocą
elektronicznych środków komunikowania, uzupełniony lub jakkolwiek przetworzony, bez pisemnej zgody właściciela Pracowni
Architektonicznej MEZZANINO Magdalena Płocica w Zabrzu, z zastrzeżeniem § 12 Umowy nr PWST/K/18/10 z dnia 2010/06/02 z późn. zm.