SPOŁEM PSS W BRZESKU: Sklep

Transkrypt

SPOŁEM PSS W BRZESKU: Sklep
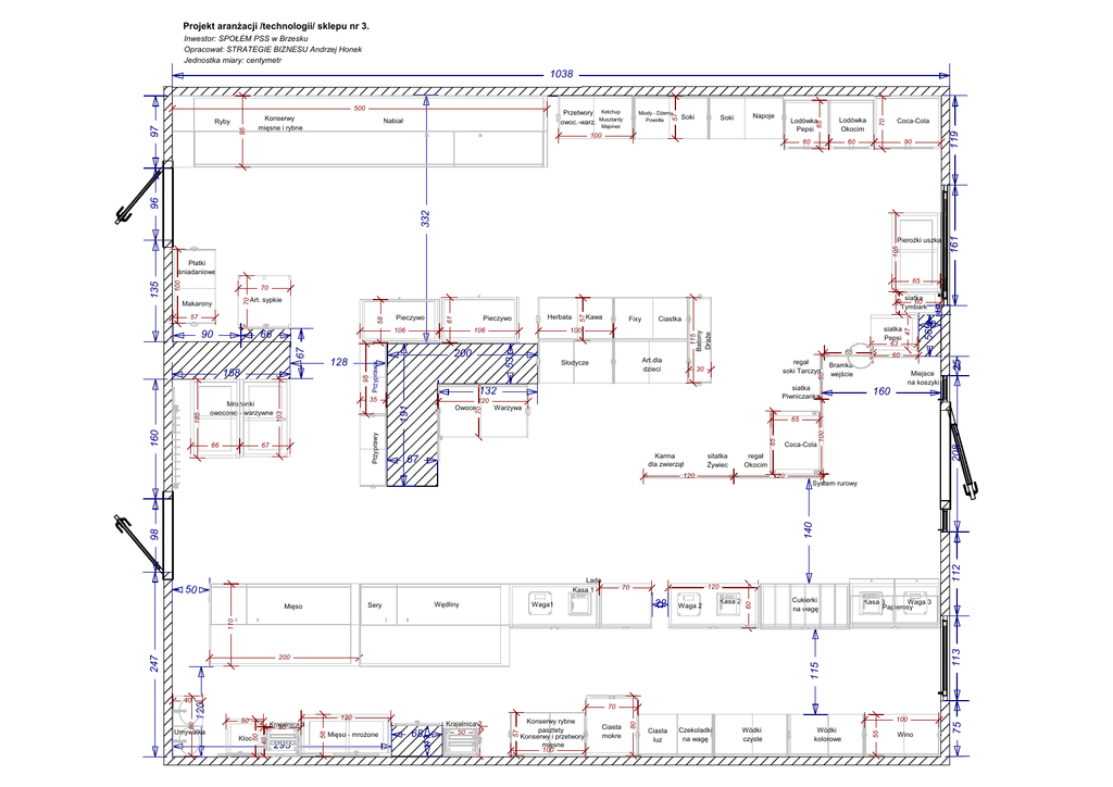
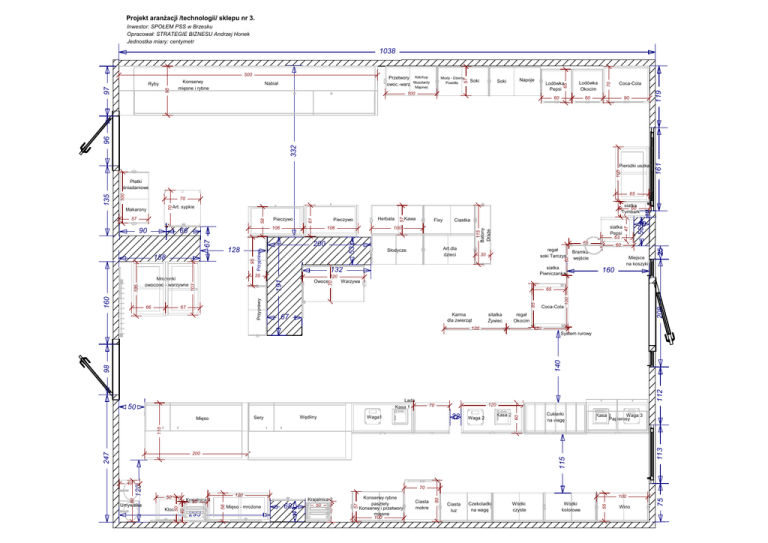
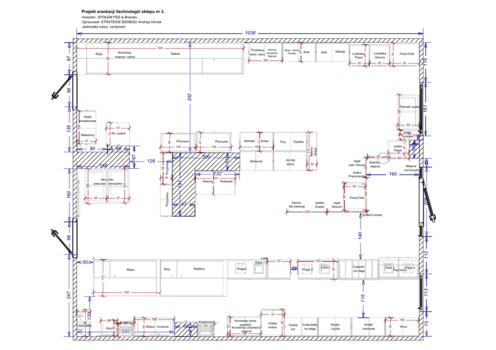
Projekt aranŜacji /technologii/ sklepu nr 3.
Inwestor: SPOŁEM PSS w Brzesku
Opracował: STRATEGIE BIZNESU Andrzej Honek
Jednostka miary: centymetr
1038
Soki
Napoje
Soki
Lodówka
Pepsi
100
Lodówka
Okocim
60
90
105
PieroŜki uszka
161
332
96
60
Coca-Cola
119
Miody - DŜemy
Powidła
70
Ketchup
Musztardy
Majonez
65
95
97
Przetwory
owoc.-warz.
Nabiał
57
500
Konserwy
mięsne i rybne
Ryby
65
100
siatka
60
Tymbark
Art. sypkie
30
65
70
60
Bramka
wejście
siatka
Piwniczanka
Miejsce
na koszyki
25
regał
soki Tarczyn
30
30
56
115
Batony
DraŜe
Art.dla
dzieci
Słodycze
60
53
siatka
Pepsi
63
47
Ciastka
120
Owoce
191
160
Warzywa
sitatka
śywiec
Coca-Cola
208
Karma
dla zwierząt
67
100
65
85
Przyprawy
Fixy
132
35
67
Kawa
100
200
103
105
160
MroŜonki
owocowo - warzywne
Herbata
Pieczywo
106
95
Przyprawy
128
158
66
Pieczywo
106
66
67
90
57
58
57
61
Makarony
12
70
70
135
Płatki
śniadaniowe
regał
Okocim
120
120
112
98
140
System rurowy
Wędliny
Sery
22
Waga 2
Kasa 2
Cukierki
na wagę
Waga 3
Kasa 3
Papierosy
113
110
Mięso
120
70
Waga1
60
Lada
Kasa 1
50
100
Ciasta
luz
Czekoladki
na wagę
Wódki
czyste
Wódki
kolorowe
Wino
75
Ciasta
mokre
80
Konserwy rybne
pasztety
Konserwy i przetwory
mięsne
100
55
57
68
Krajalnica 2
50
40
293
Mięso - mroŜone
41
Kloc
Krajalnica
1
50
56
Umywalka
70
120
50
50
40
80
40
120
115
247
200