Dostawa taśm i wkładów barwiących dla UMKK IIIetap

Transkrypt

Dostawa taśm i wkładów barwiących dla UMKK IIIetap
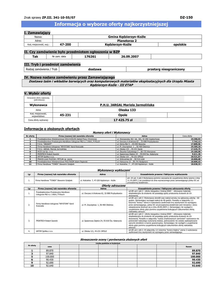
DZ-150
Znak sprawy ZP.III. 341-10-55/07
Informacja o wyborze oferty najkorzystniejszej
I. Zamawiający
Gmina Kędzierzyn-Koźle
Planetorza 2
Kędzierzyn-Koźle
Nazwa:
Adres:
47-200
Kod, miejscowość, woj.:
opolskie
II. Czy zamówienie było przedmiotem ogłoszenia w BZP
Tak
176261
Nr zam. data
26.09.2007
III. Tryb i przedmiot zamówienia
dostawa
Rodzaj zamówienia / Tryb
przetarg nieograniczony
IV. Nazwa nadana zamówieniu przez Zamawiającego
Dostawa taśm i wkładów barwiących oraz komputerowych materiałów eksploatacyjnych dla Urzędu Miasta
Kędzierzyn-Koźle - III ETAP
V. Wybór oferty
Oznaczenie oferty częściowej,
(jeśli dotyczy):
Wykonawca
P.H.U. JARGAL Mariola Jarmolińska
Adres
Oleska 133
Kod, miejscowość,
województwo:
45-231
Opole
17 425.75 zł
Cena oferty wybranej:
Informacje o złoŜonych ofertach
Numery ofert i Wykonawcy
Nr oferty
Firma (nazwa) lub nazwisko oferenta
1
2
3
4
5
6
7
8
9
10
11
Adres
Przedsiębiorstwo WielobranŜowe SOLO-KOLOS Zakład Pracy Chronionej
Przedsiębiorstwo Produkcyjno-Handlowo Usługowe P&J s.c J.Klich, P.PiŜuch
F.H.U. "GRAWIT"
Firma Handlowo-Usługowa "KRYSTIAN" Karol Kwoczała
P.H.U. JARGAL Mariola Jarmolińska
MCSI Ltd Sp. z o.o.
PRINTECH Robert Sawicki
ARTIM Spółka z o.o.
PRAXIS Łódź PILECKA i PETLAK sp. jawna
Przedsiębiorstwo WielobranŜowe MULTIKOM Adam Papierski
Firma Handlowa "TONEX" Sławomir Gołąbek
Cena oferty
ul. Warszawska 363 lok. 365, 42-200 Częstochowa
ul. Owczary k.Krakowa 62 , 32-088 Przybysławice
ul. Górny Bór 5 , 43-430 Skoczów
ul. Pl. Zwycięstwa 1 , 56-400 Oleśnica
ul. Oleska 133 , 45-231 Opole
ul. Zbyszka Cybulskiego 3 , 00-725 Warszawa
ul. Spacerowa Ziębice 24 , 55-010 Św. Katarzyna
ul. Oleska 121 , 45-231 OPOLE
ul. Wólczańska 66 , 90-516 Łódź
ul. Fabryczna 15 , 85-741 Bydgoszcz
ul. Kościelna 7 , 47-220 Kędzierzyn - Koźle
19.390,93
7.742,12
17.809,56
19.369,10
17.425,75
19.269,90
9.611,20
18.521,67
18.800,08
18.809,43
18.028,33
Wykonawcy wykluczeni
Lp
Firma (nazwa) lub nazwisko oferenta
1.
Firma Handlowa "TONEX" Sławomir Gołąbek
Adres
ul. Kościelna 7, 47-220 Kędzierzyn - Koźle
Uzasadnienie prawne i faktyczne wykluczenia
art. 24 ust. 2 pkt.3 Wykonawca pomimo wezwania do uzupełnienia oferty (pismo z dnia
11.10.2007r.) nie przedłoŜył do dnia wyznaczonego przez zamawiającego polisy OC od
prowadzonej działalności.
Oferty odrzucone
Lp
Firma (nazwa) lub nazwisko oferenta
Adres
1.
Przedsiębiorstwo Produkcyjno-Handlowo
Usługowe P&J s.c J.Klich, P.PiŜuch
ul. Owczary k.Krakowa 62, 32-088 Przybysławice
2.
Firma Handlowo-Usługowa "KRYSTIAN" Karol
Kwoczała
ul. Pl. Zwycięstwa 1, 56-400 Oleśnica
3.
PRINTECH Robert Sawicki
ul. Spacerowa Ziębice 24, 55-010 Św. Katarzyna
4.
ARTIM Spółka z o.o.
ul. Oleska 121, 45-231 OPOLE
Uzasadnienie prawne i faktyczne odrzucenia oferty
art.89 ust.1 pkt 2 - oferta niezgodna z treścią SIWZ - oferowane materiały
eksploatacyjne do drukarek nie posiadają zgody producenta drukarek do ich
stosowania.
art.89 ust.1 pkt 2. Wykonawca określił czas reakcji serwisu na zgłoszoną usterkę - 60
godzin. Zamawiający wymagał reakcji do 48 godzin. Ponadto w załączniku 1/1
kolumna "tonery" wiersz 6 wykonawca zaoferował inny asortyment niŜ wymagany
przez zamawiającego, polisa OC od prowadzonej działalności jest niewaŜna ( okres
ubezpieczenia skończył się w dniu 20.09.2007r.). Zamawiający nie wystąpił o
uzupełnienie oferty gdyŜ pomimo uzupełnienia brakujących dokumentów ofertę
naleŜałoby odrzucić.
art.89 ust.1 pkt 2 - oferta niezgodna z treścią SIWZ - oferowane materiały
eksploatacyjne do drukarek nie posiadają zgody producenta drukarek do ich
stosowania. Ponadto w załączniku "wykaz zrealizowanych zamówień" wykonawca nie
potwierdził naleŜytego wykonania dostaw, jednocześnie nie zostały zaakceptowane
warunki określone w karcie gwarancyjnej. Zamawiający nie wystąpił o uzupełnienie
oferty gdyŜ pomimo uzupełnienia brakujących dokumentów ofertę naleŜałoby
odrzucić.
art.89 ust.1 pkt 2. W załączniku 1/1 kolumna "tonery+bębny" wiersz 2 wykonawca
zaoferował inny asortyment niŜ wymagany przez zamawiającego
Streszczenie oceny i porównania złoŜonych ofert
Liczba punktów w kryterium
Nr oferty
1
3
5
6
9
10
cena
89.870
97.840
100.000
90.430
92.690
92.640
Razem
89.870
97.840
100.000
90.430
92.690
92.640