rys1i - Centrum Edukacji Nauczycieli w Białymstoku

Transkrypt

rys1i - Centrum Edukacji Nauczycieli w Białymstoku
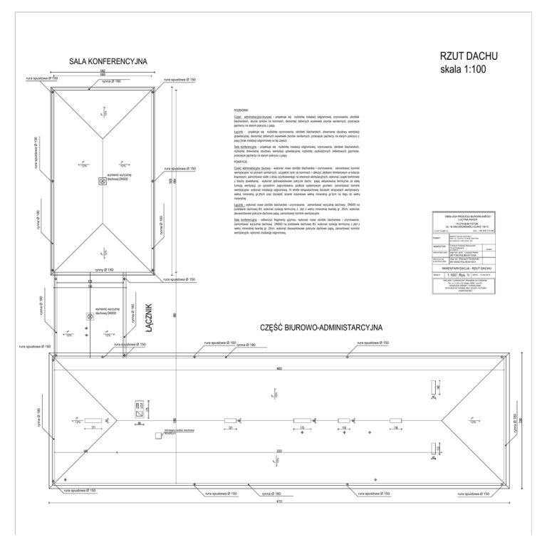
RZUT DACHU
skala 1:100
7
12%
SALA KONFERENCYJNA
administracyjno-biurowa - projektuje
blacharskich, skucie
na kominach,
- projektuje
grawitacyjnej,
instalacji odgromowej, orynnowania,
wywiewek
sanitarnych,
orynnowania,
blacharskich, drewnianej obudowy wentylacji
wywiewek
sanitarnych,
na starym pokryciu z
Sala konferencyjna - projektuje
instalacji odgromowej, orynnowania,
drewnianej obudowy wentylacji grawitacyjnej
uszkodzonych
7
12%
blacharskich,
POKRYCIE
7
12%
administracyjno biurowa nowe
blacharskie i orynnowanie,
kominki
wentylacyjne na pionach sanitarnych,
tynk na kominach i
klinkierowym w kolorze
siatki z drutu ocynkowanego na otworach wentylacyjnych,
czapki kominowe
z blachy powlekanej,
jednowarstwowe pokrycie dachu
termicznie ze
wentylacji, po uprzednim zagruntowaniu
systemowym gruntem,
kominki
wentylacyjne,
W strefie stropodachowej
stropodach wentylowany
gr.25cm oraz
kolankowe
gr.5cm na kleju do
mineralnej.
nowe
podstawie dachowej B3,
blacharskie i orynnowanie,
z
z
DN500 na
mineralnej twardej gr. 25cm,
Sala konferencyjna -
fragmenty gzymsu,
nowe
blacharskie i orynnowanie,
DN500 na podstawie dachowej B3,
z
z
mineralnej twardej gr. 25cm,
dwuwarstwowe pokrycie dachowe
kominki
kom.: +48| 888 018 489
e:mail: [email protected]
REMONT DACHU BUDYNKU
TEMAT:
INWESTOR:
Centrum Edukacji Nauczycieli
7
12%
podpis
ARCHITEKTURA
INSTALACJE
ELEKTRYCZNE
INWENTARYZACJA - RZUT DACHU
SKALA
1:100 Rys. 1i
DATA : 10.04.2015
PROJEKT CHRONIONY PRAWEM AUTORSKIM
Dz. U. nr 24 z 23 lutego 1994r. poz.83
WSZELKIE ZMIANY, POWIELANIE,
WYKORZYSTYWANIE BEZ ZGODY AUTORA
ZABRONIONE !
7
12%
7
15%
7
12%
7
12%
7
12%
7
15%
90x80cm