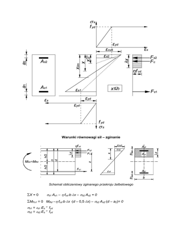
zginanie ΣX = 0 σs1⋅As1 – η⋅fcd⋅b⋅λx – σs2⋅As2 = 0 ΣMFs1 = 0

Transkrypt

zginanie ΣX = 0 σs1⋅As1 – η⋅fcd⋅b⋅λx – σs2⋅As2 = 0 ΣMFs1 = 0
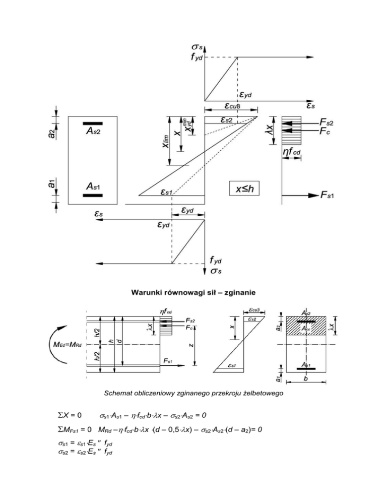
Warunki równowagi sił – zginanie
Schemat obliczeniowy zginanego przekroju żelbetowego
ΣX = 0
σs1⋅As1 – η⋅fcd⋅b⋅λx – σs2⋅As2 = 0
ΣMFs1 = 0 MRd –η⋅fcd⋅b⋅λx ⋅(d – 0,5⋅λx) – σs2⋅As2⋅(d – a2)= 0
σs1 = εs1⋅Es ≤ fyd
σs2 = εs2⋅Es ≤ fyd
Przypadki obliczeniowe
Zginanie
1o
2o
3o
4o
0<x
<x
<x
x
x-ydmin
xydmin
≤ x-ydmin
≤ xydmin
≤ xlim
> xlim
(σs1 = fyd, σs2 = - fyd)
(σs1 = fyd, - fyd < σs2 < fyd)
(σs1 = fyd, σs2 = fyd)
(σs1 < fyd, σs2 = fyd, x = xlim)
Zestawienie wypadkowych sił wewnętrznych w żelbetowym przekroju
podwójnie zbrojonym
x
Fs1
Fs2
Fc
Przypadek
- fyd As 2
ηfcd bλx
x - a2
E s As 2
x
ηfcd bλx
fyd As1
fyd As 2
ηfcd bλx
Fs1 < fyd As1
fyd As 2
ηfcd bλx lim
1
0 < x ≤ x -min
yd
fyd As1
2
min
x -min
yd < x ≤ x yd
fyd As1
3
min
x yd
< x ≤ x lim
4
x > x lim
εcu 3