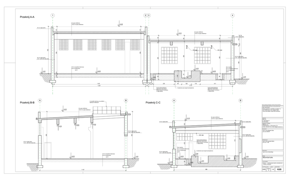
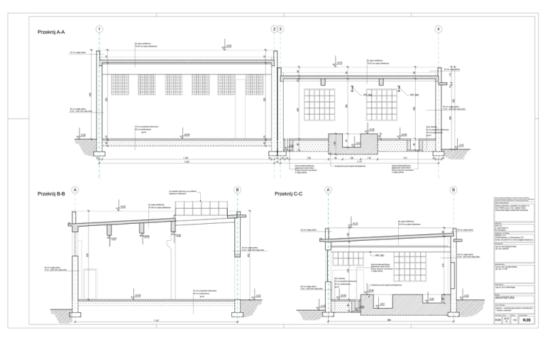
K.03 Zadanie 1

Transkrypt

K.03 Zadanie 1
1
Przekrój A-A
2
2x papa asfaltowa
15-20 cm płyta żelbetowa
3
4
+6,30
91
2x papa asfaltowa
15-20 cm płyta żelbetowa
+5,10
84
632
15
20
84
64
24 cm cegła pełna
112
91
24 cm cegła pełna
IPE 360
40 cm cegła pełna
2 cm tynk cem.wap.wew.
458
426
40 cm cegła pełna
2 cm tynk cem.wap.wew.
426
390
585
539
539
IPE 360
10 cm posadzka betonowa
40 cm podbudowa
grunt
36
±0,00
20
1 197
20
1 237
43
32 32
276
99
Przekrój B-B
128
43
2x świetlik dachowy na profilach
kątowych stalowych
B
80
119
411
-0,75
20
20
1 117
kanał podposadzkowy
głębokość około 80cm
ściany boczne murowane
z cegły pełnej
A
-0,61
~145
-0,80
80
40
40
97
10
±0,00
10
-0,02
4cm lastriko
8 cm posadzka betonowa
40 cm podbudowa
grunt
+0,36
kanał podposadzkowy
głębokość około 80cm
ściany boczne murowane
z cegły pełnej
fundament pod zespół wentylatorów
A
Przekrój C-C
B
PRAWA AUTORSKIE ZASTRZEŻONE. WYKORZYSTYWANIE, KOPIOWANIE
I ROZPOWSZECHNIANIE DOKUMENTACJI BEZ ZGODY PROJEKTANTA ZABRONIONE.
PROJEKTANT ZASTRZEGA SOBIE PRAWO DO WPROWADZANIA ZMIAN.
TEMAT OPRACOWANIA:
2x papa asfaltowa
15-20 cm płyta żelbetowa
+6,30
Roboty budowlane z podziałem na zadania 1-4.
Dz.nr 792/54, przy ul. Ks. Ludwika Tunkla
Gmina Ruda Śląska, Obręb 0009 Kochłowice.
2x papa asfaltowa
15-20 cm płyta żelbetowa
+5,10
INWESTOR:
+4,57
100
+4,82
+4,72
60
24 cm cegła pełna
24 cm cegła pełna
GSU S.A.
ul. Jana Pawła II 2
44-100 Gliwice
JEDNOSTKA AUTORSKA:
SAR Sp. z o.o.
40-009 Katowice, ul. Warszawska 17/5
tel./fax: 032 253 67 00, e-mail: [email protected]
PROJEKTANT:
mgr inż. arch Zbigniew Gliwa
upr. bud. 2/98 B-B
632
WSPÓŁPRACA:
fundament pod zespół wentylatorów
mgr inż. arch. Michał Major
±0,00
-0,02
-0,02
-0,24
-0,75
mgr inż. arch Jarosław Mańka
upr. bud. 171/98
+0,36
80
±0,00
40 cm cegła pełna
2 cm tynk cem.wap.wew.
4cm lastriko
8 cm posadzka betonowa
40 cm podbudowa
grunt
SPRAWDZAJĄCY:
414
kanał podposadzkowy
głębokość około 80cm
ściany boczne murowane
z cegły pełnej
410
40 cm cegła pełna
2 cm tynk cem.wap.wew.
10 cm posadzka betonowa
40 cm podbudowa
grunt
40 cm cegła pełna
2 cm tynk cem.wap.wew.
IPE 360
-0,80
-0,61
60
630
40 cm cegła pełna
2 cm tynk cem.wap.wew.
BRANŻA:
ARCHITEKTURA
TYTUŁ RYSUNKU:
Zadanie 1 - inwentaryzacja budynku wentylatorowni
– przekrój budowlany
FAZA PROJ: DATA:
1 147
886
KON
2016
10
SKALA:
1:50
NR RYSUNKU:
K.03