PARTER: Lokal 1– Lokal handlowy 25,3 m² ( w tym: powierzchnia

Transkrypt

PARTER: Lokal 1– Lokal handlowy 25,3 m² ( w tym: powierzchnia
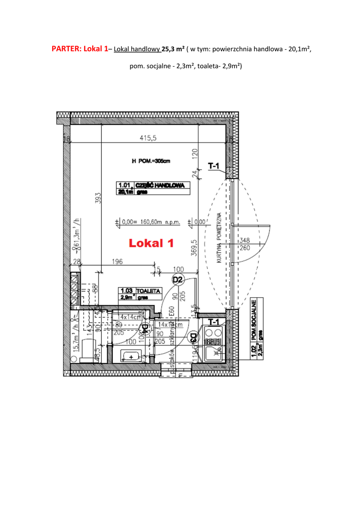
PARTER: Lokal 1– Lokal handlowy 25,3 m² ( w tym: powierzchnia handlowa - 20,1m²,
pom. socjalne - 2,3m², toaleta- 2,9m²)