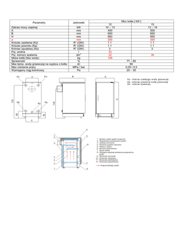
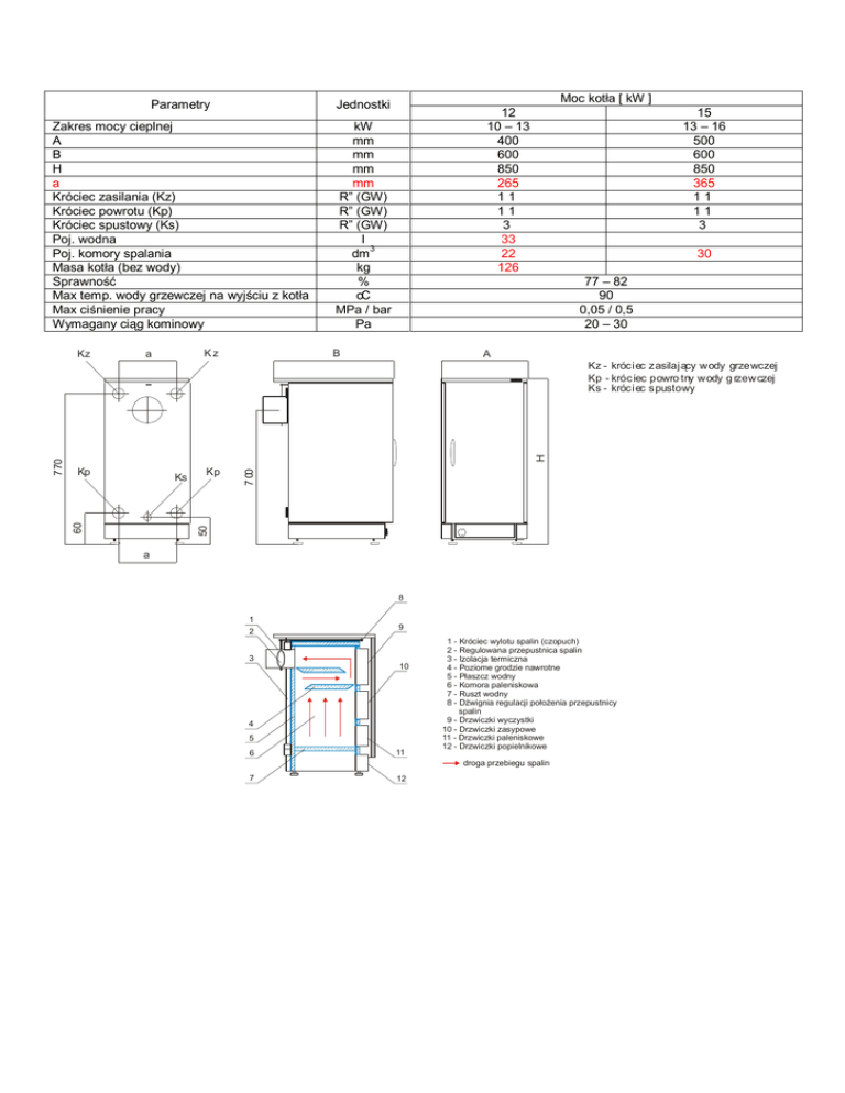
Moc kot a [ kW ] ł Parametry Jednostki 12 15 Zakres mocy cieplnej

Transkrypt

Moc kot a [ kW ] ł Parametry Jednostki 12 15 Zakres mocy cieplnej
Parametry
Jednostki
Zakres mocy cieplnej
A
B
H
a
Króciec zasilania (Kz)
Króciec powrotu (Kp)
Króciec spustowy (Ks)
Poj. wodna
Poj. komory spalania
Masa kotła (bez wody)
Sprawność
Max temp. wody grzewczej na wyjściu z kotła
Max ciśnienie pracy
Wymagany ciąg kominowy
kW
mm
mm
mm
mm
R” (GW)
R” (GW)
R” (GW)
l
3
dm
kg
%
oC
MPa / bar
Pa
Kz
Kz
a
Moc kotła [ kW ]
12
10 – 13
400
600
850
265
11
11
3
33
22
126
15
13 – 16
500
600
850
365
11
11
3
30
77 – 82
90
0,05 / 0,5
20 – 30
B
A
H
Ks
50
Kp
7 00
Kp
60
770
Kz - króciec zasilaj ący wody grzewczej
Kp - króc iec powro tny wody g rzewczej
Ks - króciec spustowy
a
8
1
2
9
3
10
4
5
6
11
7
12
1 - Króciec wylotu spalin (czopuch)
2 - Regulowana przepustnica spalin
3 - Izolacja termiczna
4 - Poziome grodzie nawrotne
5 - Płaszcz wodny
6 - Komora paleniskowa
7 - Ruszt wodny
8 - Dźwignia regulacji położenia przepustnicy
spalin
9 - Drzwiczki wyczystki
10 - Drzwiczki zasypowe
11 - Drzwiczki paleniskowe
12 - Drzwiczki popielnikowe
droga przebiegu spalin