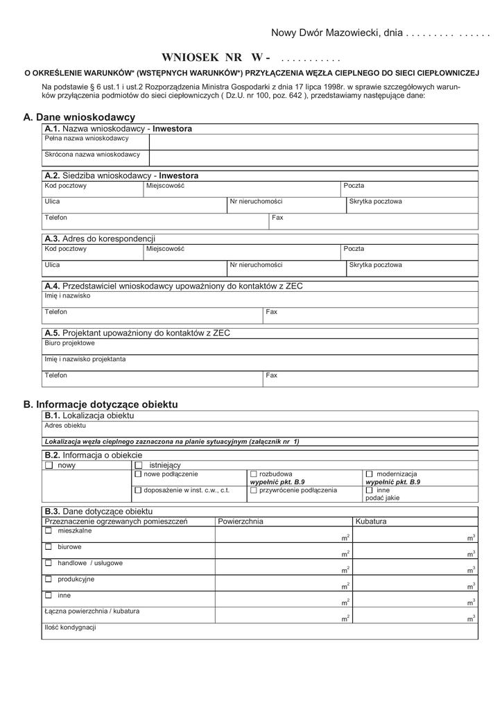
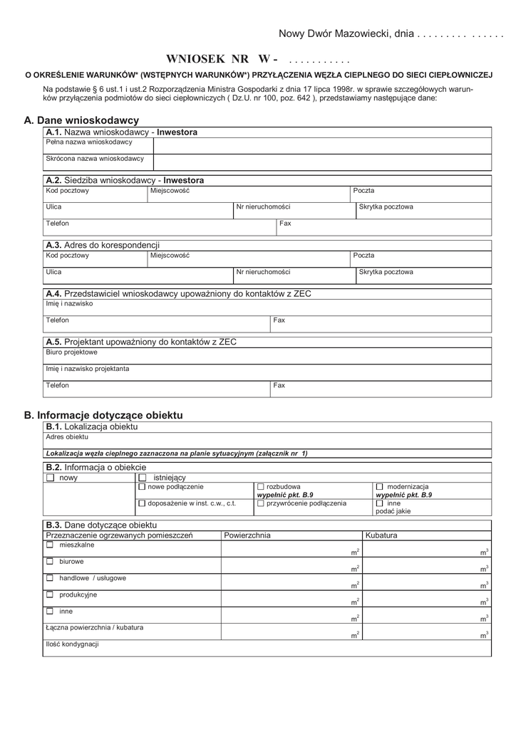
Nowy Dwór Mazowiecki, dnia . . . . . . . . . . . . . . . WNIOSEK NR W

Transkrypt

Nowy Dwór Mazowiecki, dnia . . . . . . . . . . . . . . . WNIOSEK NR W
Nowy Dwór Mazowiecki, dnia . . . . . . . . . . . . . . .
WNIOSEK NR W - . . . . . . . . . . .
O OKREŚLENIE WARUNKÓW* (WSTĘPNYCH WARUNKÓW*) PRZYŁĄCZENIA WĘZŁA CIEPLNEGO DO SIECI CIEPŁOWNICZEJ
Na podstawie § 6 ust.1 i ust.2 Rozporządzenia Ministra Gospodarki z dnia 17 lipca 1998r. w sprawie szczegółowych warunków przyłączenia podmiotów do sieci ciepłowniczych ( Dz.U. nr 100, poz. 642 ), przedstawiamy następujące dane:
A. Dane wnioskodawcy
A.1. Nazwa wnioskodawcy - Inwestora
Pełna nazwa wnioskodawcy
Skrócona nazwa wnioskodawcy
A.2. Siedziba wnioskodawcy - Inwestora
Kod pocztowy
Miejscowość
Poczta
Ulica
Nr nieruchomości
Telefon
Skrytka pocztowa
Fax
A.3. Adres do korespondencji
Kod pocztowy
Miejscowość
Poczta
Ulica
Nr nieruchomości
Skrytka pocztowa
A.4. Przedstawiciel wnioskodawcy upowaŜniony do kontaktów z ZEC
Imię i nazwisko
Telefon
Fax
A.5. Projektant upowaŜniony do kontaktów z ZEC
Biuro projektowe
Imię i nazwisko projektanta
Telefon
Fax
B. Informacje dotyczące obiektu
B.1. Lokalizacja obiektu
Adres obiektu
Lokalizacja węzła cieplnego zaznaczona na planie sytuacyjnym (załącznik nr 1)
B.2. Informacja o obiekcie
nowy
istniejący
nowe podłączenie
doposaŜenie w inst. c.w., c.t.
rozbudowa
wypełnić pkt. B.9
przywrócenie podłączenia
modernizacja
wypełnić pkt. B.9
inne
podać jakie
B.3. Dane dotyczące obiektu
Przeznaczenie ogrzewanych pomieszczeń
Powierzchnia
Kubatura
mieszkalne
2
m
2
m
2
m
2
m
2
m
2
m
m
3
biurowe
m
handlowe / usługowe
m
produkcyjne
m
inne
m
3
3
3
3
Łączna powierzchnia / kubatura
m
Ilość kondygnacji
3
B.4. Zamówiona moc cieplna (całkowita)
1.
centralne ogrzewanie
Qc.o.
=
kW
2.
ciepła woda uŜytkowa (średnia godzinowa)
Qc.w. śr.
=
kW
3.
ciepła woda uŜytkowa (max. godzinowa)
Qc.w.
=
kW
4.
wentylacja
Qwent.
=
kW
5.
technologia
Qc.t.
=
kW
6.
inne
Qinne
=
kW
Całkowita moc cieplna zamówiona (suma poz. 1, 2, 4, 5, 6)
Qcałk..
=
kW
Minimalny pobór mocy cieplnej poza sezonem grzewczym
Qmin.
=
kW
max
B.5. Proponowany przez wnioskodawcę termin rozpoczęcia poboru ciepła
W przypadku etapowania odbioru podać harmonogram
2
B.6. Roczne zapotrzebowanie na ogrzanie m powierzchni
2
GJ/ m rok
dla obiektów nowych
3
B.7. Wskaźnik zapotrzebowania na ciepło dla m kubatury
kW/ m3
dla obiektów istniejących
B.8. Informacje dotyczące instalacji odbiorczych
nowa
istniejąca
modernizowana
Rodzaj instalacji odbiorczych
Parametry
temp. obliczeniowa
1.
centralne ogrzewanie
2.
ciepła woda uŜytkowa
3.
wentylacja
4.
technologia
5.
inne
[ C]
o
ciśnienie dop.
Materiał instalacji odbiorczych
[ kPa]
B.9. Miejsce, warunki i sposób zasilania
wypełnić w przypadku rozbudowy i modernizacji
Źródło ciepła
Zasilanie instalacji c.o.
węzeł indywidualny
węzeł grupowy
Zasilanie instalacji c.w.
Zasilanie instalacji c.t.
Zasilanie instalacji wentylacyjnej
B.10. Obliczenie przepływu wody sieciowej (dla celów regulacji) **
dla zimy
Gs zima=...... 10-3 (Qco+ Qct + Qcwśr ) [m 3/h]
Q [kW]
Gs zima=
[m3/h]
dla lata
Gs lato=........ 10-3 Qcwmax [m 3/h]
Q [kW]
Gs lato=
B.11. Przewidywany sposób uŜytkowania instalacji ciepłej wody uŜytkowej
Ilość osób
dla obiektów mieszkalnych
Ilość punktów czerpalnych
dla obiektów niemieszkalnych
Okres wykorzystania w ciągu doby
dla obiektów niemieszkalnych
B.12. Inne załoŜenia przedprojektowe
Podać dane mające wpływ na załoŜenia techniczne do projektowania
[m 3/h]
B.13. Informacja o wynikach audytu energetycznego
posiada
( załącznik nr 4)
nie posiada
B.14. Charakterystyka techniczna obiektu
Wypełnić w przypadku braku audytu energetycznego
Przewidywany sposób podgrzewania ciepłej wody
węzeł cieplny
piecyki gazowe
elektryczne
inne
System wentylacji ogrzewanych pomieszczeń
Straty cieplne w warunkach obliczeniowych
kW
Współczynnik przenikania ciepła przegród budowlanych :
Przegroda budowlana
Współczynnik k
Przegroda budowlana
Współczynnik k
C. ZAŁĄCZNIKI
Nr
Załącznik
1.
Plan zabudowy bądź szkic sytuacyjny obiektu, do którego dostarczone będzie ciepło w stosunku do istniejącej sieci ciepłowniczej oraz innych obiektów i urządzeń uzbrojenia terenu z zaznaczonym usytuowaniem
węzła cieplnego wg pktu B.1. (2 egzemplarze )
Harmonogram poboru mocy cieplnej na cele technologiczne wg pktu B.5.
Karta audytu energetycznego wg pktu B.13.
UpowaŜnienie wnioskodawcy
2.
3.
4.
Data
złoŜenia
Uwagi
Objaśnienia:
* - zaznaczyć właściwe pozycje
** - liczby podane we wzorach stanowią iloczyn wielkości stałych
*** - w przypadku podłączenia do sieci ciepłowniczej więcej niŜ jednego węzła, naleŜy wypełnić punkty B i C dla kaŜdego dodatkowego węzła cieplnego
- zaznaczyć właściwe pole „X”
..............................................
podpis projektanta
......................................................
miejscowość i data wypełnienia wniosku
.................................................
podpis i pieczęć osoby uprawnionej do
składania oświadczeń woli w imieniu
wnioskodawcy

Podobne dokumenty