inwentaryzacja

Transkrypt

inwentaryzacja
4.05
Pokój II
4.04
Pokój I
Gazowy podgrzewacz wody
Numer pomieszczenia
Temperatura wewnętrzna zimą
LEGENDA:
LEGENDA
3.05
Pokój II
TG
Kuchenka gazowa
Rura ochronna
4.06
Pokój III
4.01
Przedsionek
RO
Kurek odcinający
Nr pionu
Gazomierz
KO
G
P
1
4.03
Kuchnia
4.02
Łazienka
KO
RO
2
P
KO
TG
KO
RO
G
G KO
RO
TG
KO
5.03
Kuchnia
5.02
Łazienka
5.01
Przedsionek
1
P
KO
RO
02
Klatka schodowa
UL. WALISZEWSKIEGO
5.04
Pokój I
3
P
KO
TG
RO
KO
G
RO
6.02
Łazienka
KO
6.03
Kuchnia
5.05
Pokój I
6.05
Pokój II
6.04
Pokój I
Sprawdził
Projektował
mgr inż.
Dorota Raniowska
mgr inż.
Marcin Raniowski
SLK/3889/POOS/11
SLK/3499/PWOS/11
Obiekt : Budynek mieszkalny
Inwestor: Wspólnota mieszkaniowa
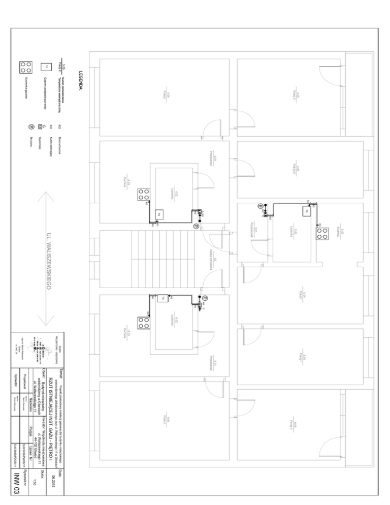
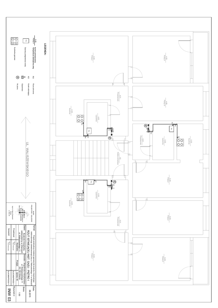
ul. Waliszewskiego 11
wielorodzinny w Gliwicach
44-102 Gliwice
ul. Waliszewskiego 11
Nazwisko
Podpis
Upraw. Nr
RZUT ISTNIEJĄCEJ INST. GAZU - PIĘTRO I
Skala:
INW 03
Rysunek nr
1:50
06.2015
Temat:
Projekt przebudowy instalacji gazowej dla budynku mieszkalnego
Data:
wielorodzinnego zlokalizowanego przy ul. Waliszewskiego 11 w Gliwicach
6.01
Przedsionek
BIURO
PROJEKTOWO - USŁUGOWE
mgr inż. Marcin Raniowski
Gliwice
ul. ONZ 2/5