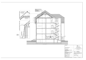
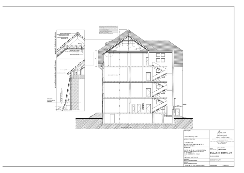
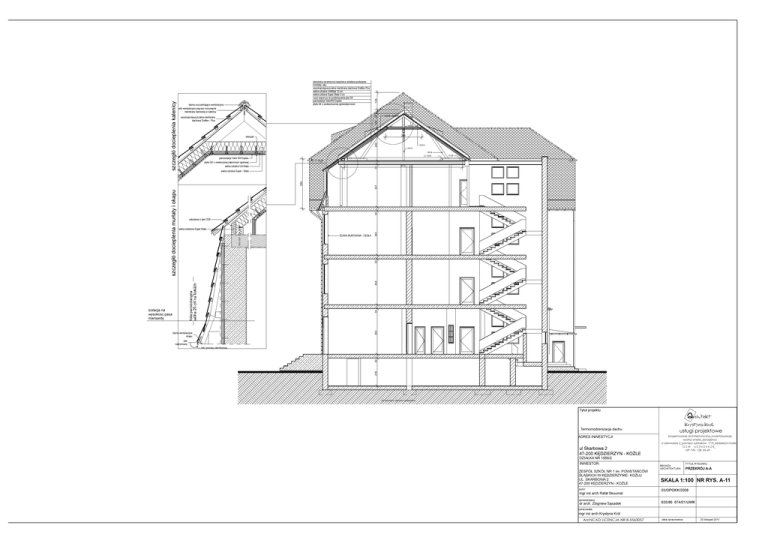
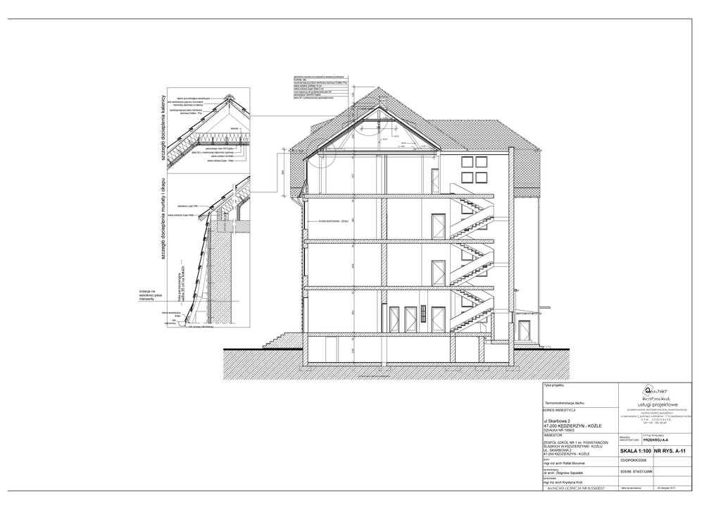
(dach ZS Nr 1). - BIP Zespołu Szkół nr 1 w Kędzierzynie

Transkrypt

(dach ZS Nr 1). - BIP Zespołu Szkół nr 1 w Kędzierzynie
murek ogniowy
124
wysokoprzepuszczalna membrana
dachowa Draftex - Plus
14x14
281
242
wieszak
12X14
14x14
14X16
2 x 16X8
31
paroizolacja Vario KM Duplex
płyta GK o zwiekszonej odporności ogniowej
wełna szkalna Uni-Mata
17x20
913
wełna szklana Super - Mata
327
30
zabudowa z płyt OSB
354
30
ŚCANA MUROWANA - CEGŁA
30
353
izolacja na
wysokosc pasa
mansardy
343
wełna szklanna Super Mata
folia paroizolacyjna
wełna 20 cm na kołkach
szczegłó docieplenia murłaty i okapu
134
29
taśma uszczelniająco-wentylacyjna
wlot wentylacyjny poprzez rozsunięcie
membrany dachowej w kalenicy
384
szczegłó docieplenia kalenicy
dachówka ceramiczna karpiówka układana podwójnie
kontrłaty, łaty
wysokoprzepuszczalna membrana dachowa Draftex-Plus
wełna szkalna UniMata 15 cm
wełna szklana Super Mata 5 cm
ruszt wsporczy do podwieszania płyt GK
paroizolacja VarioKM Duplex
płyta GK o podwyższonej ognioodporności
taśma wentylacyjna
okapu
pas
nadrynnowy
216
30
hak rynnowy nakrokwiowy
nie dokonano odkrywki fundanentów
Tytuł projektu
architekt
krystyna król
Termomodrenizacja dachu
ADRES INWESTYCJI
ul Skarbowa 2
47-200 KĘDZIERZYN - KOŹLE
usługi projektowe
projektowanie architektoniczne_inwentaryzacje,
wystroj wnetrz_doradztwo
ul szenwalda 2_pamięci sybiraków 17/II_kędzierzyn-koźle
G S M 6 0 3 6 0 4 6 2 8_
NIP 749- 128- 83-49
DZIAŁKA NR 1956/2
INWESTOR:
ZESPÓŁ SZKÓŁ NR 1 im. POWSTAŃCÓW
ŚLĄSKICH W KĘDZIERZYNIE- KOŹLU
UL. SKARBOWA 2
47-200 KĘDZIERZYN - KOŹLE
autor:
mgr inż arch Rafał Skoumal
sprawdzajacy:
dr arch. Zbigniew Sąsadek
BRANŻA
ARCHITEKTURA
TYTUŁ RYSUNKU
PRZEKRÓJ A-A
SKALA 1:100 NR RYS. A-11
03/OPOKK/2008
635/86 674/01/UWK
opracowała:
mgr inż arch Krystyna Król
ArchiCAD LICENCJA NR 8-5563057
data opracowania
20 listopad 2011