rys.2 - bip.grebkow.pl

Transkrypt

rys.2 - bip.grebkow.pl
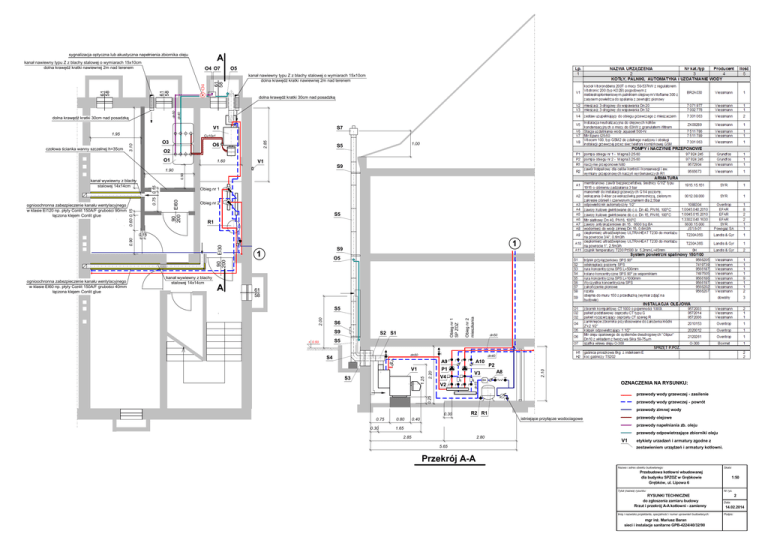
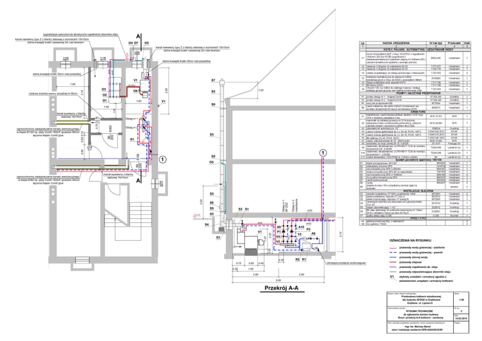
sygnalizacja optyczna lub akustyczna nape nienia zbiornika oleju
kana nawiewny typu Z z blachy stalowej o wymiarach 15x10cm
dolna kraw
kratki nawiewnej 2m nad terenem
A
kana nawiewny typu Z z blachy stalowej o wymiarach 15x10cm
dolna kraw
kratki nawiewnej 2m nad terenem
dolna kraw
dn50
kratki 30cm nad posadzk
O5
kratki 30cm nad posadzk
dn40
dolna kraw
61
58
61
58
61
58
O4 O7
S7
V1
1.95
2.85
3.10
czo owa cianka wanny szczelnej h=35cm
Cu10x1
O3
O6
O2
O1
1.60
V1
S9
0.90
1.90
Obieg nr 1
90
EI60
200
0.60 0.15
0.75 0.15
kana wywiewny z blachy
stalowej 14x14cm
ognioochronna zabezpieczenie kana u wentylacyjnego
w klasie EI120 np. p yty Conlit 150A/F grubo ci 90mm
czona klejem Conlit glue
1.00
S5
Obieg nr 2
S5
R1
O5
61
58
S6
S9
S2 S1
Obieg nr 2
mieszkania
Obieg nr 1
SP ZOZ
S5
dn50
S5
dn50
dn40
V1
S3
P1
V4
V2
A10
P2
A8
V3
2.10
A9
BA
OZNACZENIA NA RYSUNKU:
dn15
S4
2.20
+ 0.00
przewody wody grzewczej - zasilenie
0.25
A
1
1.25
kana wywiewny z blachy
stalowej 14x14cm
1
S9
2.00
ognioochronna zabezpieczenie kana u wentylacyjnego
w klasie EI60 np. p yty Conlit 150A/F grubo ci 40mm
czona klejem Conlit glue
90 EI30
200
0.90
0.15
przewody wody grzewczej - powrót
0.30
0.75
0.30
0.80
przewody zimnej wody
R2 R1
przewody olejowe
istniej ce przy cze wodociagowe
0.40
przewody nape niania zb. oleju
1.65
przewody odpowietrzaj ce zbiorniki oleju
2.85
2.80
5.65
V1
etykiety urzadze i armatury zgodne z
zestawieniem urz dze i armatury kot owni.
Przekrój A-A
Nazwa i adres obiektu budowlanego:
Skala:
Przebudowa kot owni wbudowanej
dla budynku SPZOZ w Gr bkowie
Gr bków, ul. Lipowa 6
Tytu (nazwa) rysunku:
Nr rys.
RYSUNKI TECHNICZNE
do zg oszenia zamiaru budowy
Rrzut i przekrój A-A kot owni - zamienny
Imi i nazwisko projektanta, specjalno
1:50
i numer uprawnie budowlanych:
mgr in . Mariusz Baran
sieci i instalacje sanitarne GPB-4224/40/32/90
2
Data:
14.02.2014
Podpis: