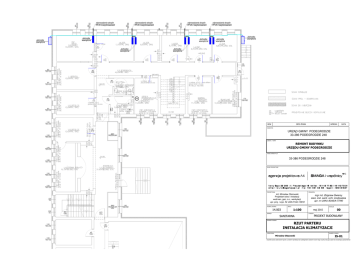
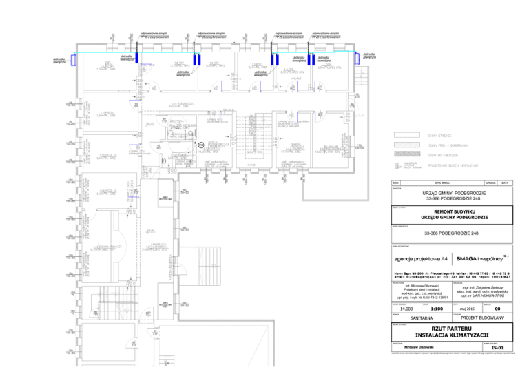
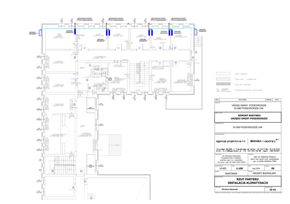
rzut parteru instalacja klimatyzacji

Transkrypt

rzut parteru instalacja klimatyzacji
odprowadzenie skroplin
PP 25 z zasyfonowaniem
odprowadzenie skroplin
PP 25 z zasyfonowaniem
Jednostka
wewnętrzna
Jednostka
zewnętrzna
Jednostka
wewnętrzna
Jednostka
wewnętrzna
Jednostka
wewnętrzna
odprowadzenie skroplin
PP 25 z zasyfonowaniem
Jednostka
wewnętrzna
Jednostka
zewnętrzna
6x17,5
29
odprowadzenie skroplin
PP 25 z zasyfonowaniem
11x17
29
-0.02
PK
REW
OPIS ZMIAN
WPROW.
DATA
INWESTOR
URZĄD GMINY PODEGRODZIE
33-386 PODEGRODZIE 248
OBIEKT / TEMAT
REMONT BUDYNKU
URZĘDU GMINY PODEGRODZIE
ADRES INWESTYCJI
+0.06
33-386 PODEGRODZIE 248
BIURO PROJEKTOWE
7x16
28,5
PROJEKTOWAŁ
3x20
28
SPRAWDZIŁ
inż. Mirosław Olszowski
Projektant sieci i instalacji
wod-kan, gaz, c.o., wentylacji
upr. proj. i wyk. Nr UAN-7342-139/91
10x16,5
30
NUMER ZADANIA
11x16,5
30
SKALA
14.003
mgr inż. Zbigniew Świerzy
sieci, inst. sanit. ochr. środowiska
upr. nr UAN.I-8340/A-77/90
DATA
1:100
BRANŻA
REWIZJA
STADIUM
SANITARNA
NAZWA RYSUNKU
00
maj 2015
PROJEKT BUDOWLANY
RZUT PARTERU
INSTALACJA KLIMATYZACJI
OPRACOWAŁ
NUMER RYSUNKU
Mirosław Olszowski
IS-01
wszystkie prawa zastrzeżone łącznie z prawem reprodukcji lub udostępniania osobom trzecim tego rysunku lub jego części bez wyraźnego upoważnieniaè