Przekroj A_A zmiana - biuletyn informacji publicznej gminy nowe

Transkrypt

Przekroj A_A zmiana - biuletyn informacji publicznej gminy nowe
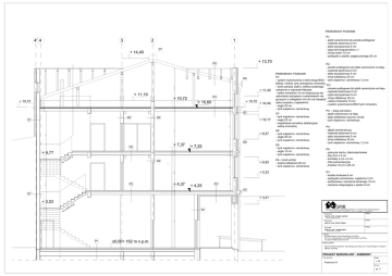
PRZEGRODY POZIOME
P1-
4' 4
3
2
1
- wylewka betonowa 5 cm
- papa termozgrzewalna x 1
- chudy beton 15 cm
+ 14,40
+ 13,70
P2- wylewka betonowa 5 cm
PRZEGRODY PIONOWE
S1- tynk wapienno- cementowy 1,2 cm
P2'-
+ 11,40
+ 11,19
- wylewka betonowa 5 cm
wykonanie styropianu o parametrach nie
+ 10,72
+ 10,72
zatopione w zaprawie klejowej
+ 10,60
+ 10,72
+ 10,40
- tynk wapienno- cementowy
S1'- tynk wapienno- cementowy
+ 10,17
- tynk wapienno- cementowy
P4-
+ 8,27
S2- tynk wapienno- cementowy
- wylewka betonowa 5 cm
- tynk wapienno- cementowy
+ 7,37
S3- tynk wapienno- cementowy
+ 7,25
+ 6,77
- tynk wapienno- cementowy 1,2 cm
P5-
- tynk wapienno- cementowy
4x
15
7,8
x2
+ 6,93
S4- ( szyb windy)
- tynk wapienno- cementowy
+ 5,33
+ 4,37
- folia paroizolacyjna
- krokiew 10 cm x 20 cm
D1- kostka brukowa 6 cm
- podsypka cementowo- wapienna 3 cm
+ 4,25
+ 3,31
+ 3,03
8x
2
,8x
16
7,8
GRIB
Generalny Realizator Inwestycji B
tel. / fax. (012) 412-26-95 ; (012) 266-02-35 ; e-mail - [email protected]
[email protected]
Podpis:
RP-Upr. 436/94 MP-1320
Podpis:
Podpis:
MP-0542 BPP. Upr.193/81
Inwestor:
tel. (48) 6741098 fax (48) 6742179
Nazwa projektu:
PROJEKT BUDOWLANY - ZAMIENNY
Skala:
1: 50
Nr.rys:
A. 7