(rys 6 - szczeg\363\263 wpustu)

Transkrypt

(rys 6 - szczeg\363\263 wpustu)
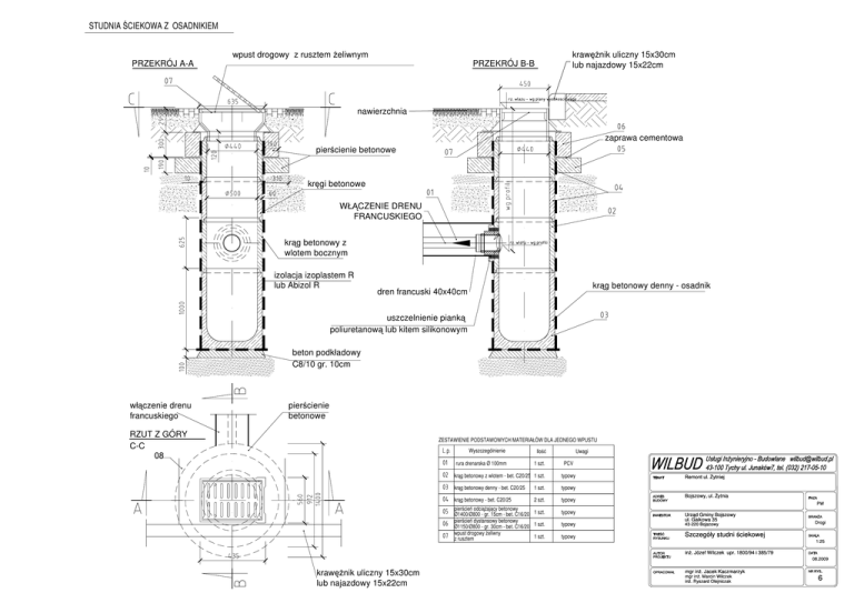
STUDNIA ŚCIEKOWA Z OSADNIKIEM
PRZEKRÓJ A-A
wpust drogowy z rusztem żeliwnym
krawężnik uliczny 15x30cm
lub najazdowy 15x22cm
PRZEKRÓJ B-B
nawierzchnia
zaprawa cementowa
pierścienie betonowe
kręgi betonowe
WŁĄCZENIE DRENU
FRANCUSKIEGO
krąg betonowy z
wlotem bocznym
izolacja izoplastem R
lub Abizol R
krąg betonowy denny - osadnik
dren francuski 40x40cm
uszczelnienie pianką
poliuretanową lub kitem silikonowym
beton podkładowy
C8/10 gr. 10cm
włączenie drenu
francuskiego
pierścienie
betonowe
RZUT Z GÓRY
C-C
08
ZESTAWIENIE PODSTAWOWYCH MATERIAŁÓW DLA JEDNEGO WPUSTU
Wyszczególnienie
Ilość
rura drenarska Ø 100mm
1 szt.
Uwagi
PCV
krąg betonowy z wlotem - bet. C20/25 1 szt.
typowy
krąg betonowy denny - bet. C20/25
1 szt.
typowy
krąg betonowy - bet. C20/25
2 szt.
typowy
pierścień odciążający betonowy
Ø1400/Ø800 - gr. 15cm - bet. C16/20 1 szt.
pierścień dystansowy betonowy
Ø1150/Ø800 - gr. 30cm - bet. C16/20 1 szt.
wpust drogowy żeliwny
1 szt.
z rusztem
typowy
typowy
typowy
Remont ul. Żytniej
Bojszowy, ul. Żytnia
PW
Urząd Gminy Bojszowy
ul. Gaikowa 35
43-220 Bojszowy
Drogi
Szczegóły studni ściekowej
1:25
inż. Józef Wilczek upr. 1800/94 i 385/79
08.2009
krawężnik uliczny 15x30cm
lub najazdowy 15x22cm
mgr inż. Jacek Kaczmarzyk
mgr inż. Marcin Wilczek
inż. Ryszard Olejniczak
6