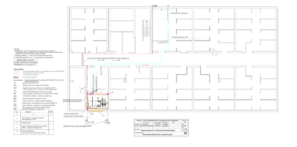
3. Plan instalacji elektrycznej w pompowni ppoż.

Transkrypt

3. Plan instalacji elektrycznej w pompowni ppoż.
ZL ZKP
w/g PGE
N
Pomieszczenie wodomierza
Rozdzielnica główna ,,RG”
UWAGI:
1. Rozdzielnica ,,R Z” stanowi dostawę z wyposażeniem pompowni.
Rozdzielnicę należy wyposażyć w sterownik przystosowany do monitorowania
-przepływu, Pwej. Pwyj.,stany awaryjne, włamania.
2. Instalację układać p.t. w odl. 0,2m od sufitu rurkach RL Φ 15.
3. Wyłączniki instalować na wys. 1,3m a gniazda 1m od posadzki.
Proj. przewód zaslający ognioodporny HDGS 5 x 6mm2( niepalny 3h)
Ltrasy = 50m
Lprzewodu = 60m
UKŁAD SIECI ,,TN-C-S”
SZYBKIE SAMOCZYNNE WYŁĄCZENIE
URZĄDZENIA W II KL. IZOLACJI
OZNACZENIA
2
Przewód ognioodporny HDGS 5 x 6mm - układany n/t w rurze PEHD 32x2,9mm
Przewód YDY żo 5x,2,5/3x2,5/3x1,5mm2.
Przewód YDY żo 2xx2,5mm2.
RPp-poż
Proj. rozdzielnica popowni.
- Oprawa hermetyczna do świetlówek OCEANIK OF 236, 2x36W
- Stopień ochrony IP 56.
- gniazdo 24V typ 2629-120
- gniazdo 220V/10A z bolcem (2P+Z) typ421
1
- gniazdo wtyczkowe w obudowie z wyłącznikiem IP 54
(3P+N+Z)16A+ 2P=N - zestaw C16-18N1 (elektromet).
3
2
3
- wyłącznik jednobiegunowy n/t typ 430- szczelny
- zestaw pompowy typu ZH- ICL/S2.10.4B/1,5kW+OT40w
- rozdzielnica zasilająca - dostawa z pompownią
ZH
,,RZ”
- puszka instalacyjna szczelna do 2,5mm2
PI
- złącze licznikowe - zasilanie pompowni RPp-poż.
ZL
2
Przejście przewodów przez mur
zabezpieczyć przeciwpożarowo
.
.
- przejście przez ścianę kabla w rurze osłonowej HDPE 75
- złącze z kablowe - pomiarowe w/g dokumentacji PGE
- proj. połączenie wyrównawcze FeZn 25x4mm
- proj. złącze kontrolne - zaciski M-10
ZKP
ZK
L.p.
.
4
.
3
2
3
Otwór do zamurowania
2
3
Istniejące okno do zamurowania
1
2
3
,,RZ”
Ilość
Element
1
ZH
Drzwi stalowe w ościeżnicy stalowej
przeciwpożrowe E160
Przejście p-poż.
Bloczki silikatowe grubośći 18 cm pokryte
tynkiem - cementowo-wapiennym.
ZK
..
. R< 10Ω
Podłączyć do istn. uziomu otokowego budynku
..
R< 10Ω
.
ZK
WOSAN - USŁUGI PROJEKTOWE, ul. Karbońska 5/10, 25-640 Kielce
Imię I Nazwisko
Projektował:
Sprawdził:
Zestaw hydroforowy
Typ ZH- ICL/S2.10.4B/1,5kW+OT40w
KL215/89
inż.A. Jezierski
mgr inż.Jan Cieśla-Fijałkowski KL 632/94
Specjalność
Podpis
inż.elektryk
inż.elektryk
P.B.
Data
06.2015
Skala
Inwestycja:
4
Numer uprawnień
Opracowanie:
1 : 100
Pompownia pożarowa w Kielcach ul. Kochanowskiego 5
Przedmiot rysunku:
Plan instalacji elektrycznych w pompowni p-poż.
Numer rysunku
2E