D8 _ 0. Kondygn. - Specjalistyczny Zespół Opieki Zdrowotnej nad

Transkrypt

D8 _ 0. Kondygn. - Specjalistyczny Zespół Opieki Zdrowotnej nad
A
B
4
73
A
4 7
otwór bez zadaszenia
68
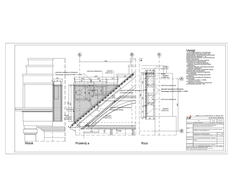
żaluzji systemowej (np Luxalon lub
równoważna), na konstrukcji systemowej i
podkonstrukcji stalowej z rur
kwadratowych 40x40x3, zamocowanej do
ściany murowanej
2) Niewidoczne elementy stalowe
zabezpieczyć antykorozyjnie:
- oczyścić do II stopnia czystości
- malować czerwoną tlenkową farbą
podkładową
- malować lakierem chlorokauczukowym
w kolorze popielatym.
3) Stalowe elementy montażowe żaluzji
wykonać jako ocynkowane.
4) W obudowie wykonać segmenty
demontowalne
umożliwiające obsługę jednostek
chłodzenia.
5) Jednostki zewnętrzne chłodzenia
freonowego
centrali linii LNW-1 i LNW2
mocowane do ściany
attykowej na konstrukcji wsporczej.
6) Obudowę wykonać 1 szt.
jednostki zewnętrzne chłodzenia
freonowego centrali linii LNW-1 i LNW2
102
4
302
4
segment 102x68 demontowalny
na potrzeby obsługi
98
85
93
5
104
4
40
2915
102
80
40x40x3
L=520 mm
słupek
40x40x3
h=2450 mm
4
4 44 4
104
84
4
6
4
4
65
7 4 44 46
40x40x3
l=2915 mm
55
jednostki zewnętrzne chłodzenia
freonowego centrali linii LNW-1 i LNW2
6
a
350
góra bez zadaszenia
Uwagi:
1) Obudowa złożona z aluminiowej
otwór bez zadaszenia
350
1
38
40x40x3
l=2915 mm
70
segment 104x98 demontowalny
na potrzeby obsługi
4
241
245
4
10
słupek
40x40x3
l=2450mm
40x40x3
l=3810 mm
6
5
ra
7
52
ktu
ite
ch
ar acje
z
ali
re tycje
es
inw
6
spółka z o.o. 61-623 Poznań, ul. Wilczak 16A
tel./fax (0-61) 820-85-93
PW
STADIUM DOKUMENTACJI
ZAMAWIAJĄCY:
ARCH.
Z 08.05.09
BRANŻA
UMOWA NR
SPECJALISTYCZNY ZESPÓŁ OPIEKI ZDROWOTNEJ NAD MATKĄ I DZIECKIEM
SAMODZIELNY PUBLICZNY ZAKŁAD OPIEKI ZDROWOTNEJ
61-825 POZNAŃ,UL.BOLESŁAWA KRYSIEWICZA 7/8
100
25
OBIEKT:
B
+6.84
PRZEBUDOWA ISTNIEJĄCEGO BUDYNKU NA ODDZIAŁ UROLOGII
POZNAŃ UL.JAROCHOWSKIEGO 18
TEMAT:
PROJEKTOWAŁ:
OPRACOWAŁ:
Widok
Przekrój a
Rzut
GŁ.PROJEKTANT:
OBUDOWA ZEWNĘTRZNEJ
JEDNOSTKI CHŁODZENIA.SKALA 1:25
RYS NR:
DATA:
D8
06.2009
dr inż. arch. EUGENIUSZ SKRZYPCZAK 244/84/PW
K.RENZ
dr inż. arch. EUGENIUSZ SKRZYPCZAK 244/84/PW
IMIĘ I NAZWISKO - UPRAWNIENIA NR
PROJEKT JEST CHRONIONY PRAWEM AUTORSKIM
Ustawa z dnia 4 lutego 1994 o prawie autorskim i prawach pokrewnych
(Dz.U. z 1994 Nr 24 poz. 83 z późniejszymi zmianami)
PODPIS