parter - BIP Urząd Gminy Lewin Kłodzki

Transkrypt

parter - BIP Urząd Gminy Lewin Kłodzki
Oko adzina spocznika i schodów
z p yt garniatowych p omieniowanych
B
117
205
117
205
117
205
117
205
hp= 85
hp= 85
hp= 82
hp= 82
hp= 82
hp= 88
hp= 88
hp= 88
hp= 88
hp= 88
hp= 88
117
205
117
205
O2
O2
O2
O2
O2
O2
O2
O2
O2
140
305
D3
16
90
200
481
90
200
90
200
40
Okno o twierane
z poziomu posadzki
16
100
90
200
wietlik
1,80x4,80m
5 38
635
28
Barierka h=1,10m ze stali nierdzewnej
634
wietlik
1,80x1,80m
3 579
200
42
342
165
298
O2
A
O2
wietlik
1,80x1,80m
33
2 077
25
hp= 83
O2
O4
O2
bojler
2,0kW
133
C
O2
92
80
200
HP25
hp= 88
205
117
205
O2
12
117
205
O2
92
90
200
16
10
78
hp= 88
117
205
O2
hp= 88
117
205
O2
hp= 88
117
205
O2
hp= 88
117
205
hp= 88
117
205
hp= 88
62
hp= 88
117
205
hp= 88
117
205
hp= 88
205
hp= 85
80
200
10 92
34
23
117
200
5
52
263
148
26
10
60
200
22
117
hp= 85
117
205
hp= 85
165
342
13
966
80
200
117
205
60
275
305
125
12
24
348
tablica
tablica
21
117
205
88
60
200
Okno o twierane
z poziomu posadzki
19
22
HP25
140
220
24
60
200
275
305
90
196
12
157
816
135
60
200
150
202
426
1 537
90
196
12
30
139
24
563
119
10
200
80
71
10
208
EI60
261
210
D17
EI30
D14
261
EI60
90
199
272
698
64
20
150
90
200
35
O10
117
205
hp= 85
EI30
hp= 85
Okno otwierane
z poziomu posadzki
wietlik
1,80x1,80m
180
197
6
187
hp= 285
Okno o twierane
z poziomu posadzki
O10
O2
180
hp= 285
O2
84
90
200
126
O2
30
ciana REI60
30
O2
O9
140
305
100
150
138
12
ciana REI60
180
215
38 5
90
190
180
197
6
C
O2
117
205
205
117
117
205
12
O2
12
1 131
117
205
O2
142
36
62
117
205
12x16,2
27
D14
173
10
hp= 85
HP25
117
205
62
O1
hp= 85
O2
10
hp= 85
12
117
O1
O2
19
28
B
O1
108
200
O1
108
200
108
200
O1
14
108
200
O1
O2
1 634
86
hp= 90
65
hp= 90
205
hp= 90
108
200
108
200
Wymiana na wietlik sta y
3,0x24,0m
1 782
52
5
28
78
100
16
EI60
90
200
90
200
26
D18
244
200
848
Uszczelnienie stropu nad
pom. w piwnicy
hp= 83
O5
90
200
hp= 285
wietlik
1,80x1,80m
31
478
165
200
hp= 83
133
O4
275
305
396
16
90
200
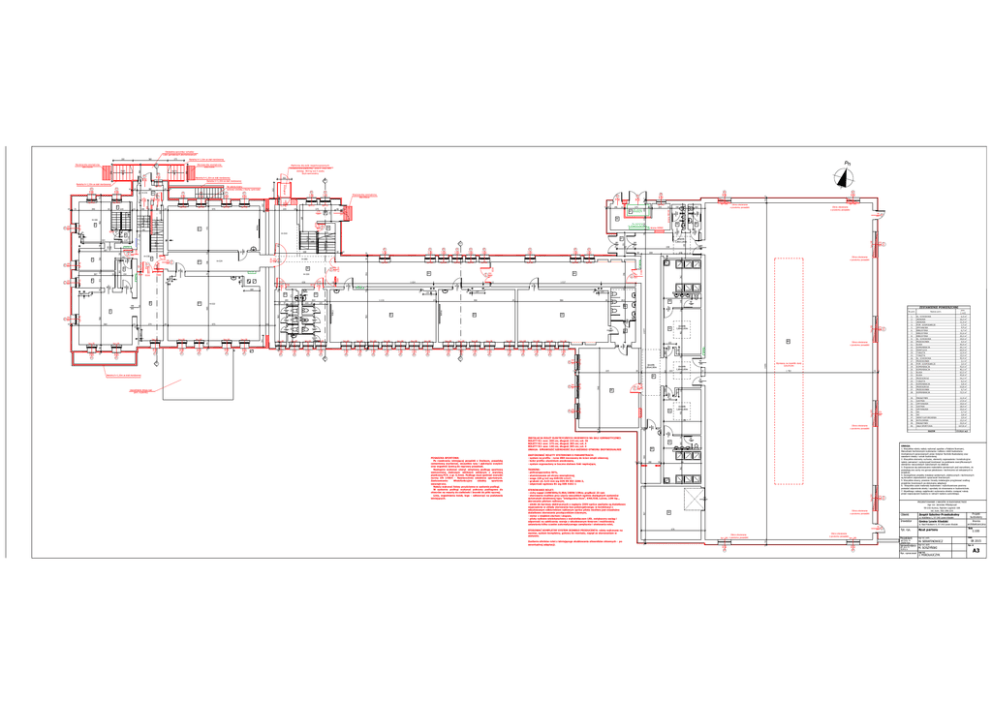
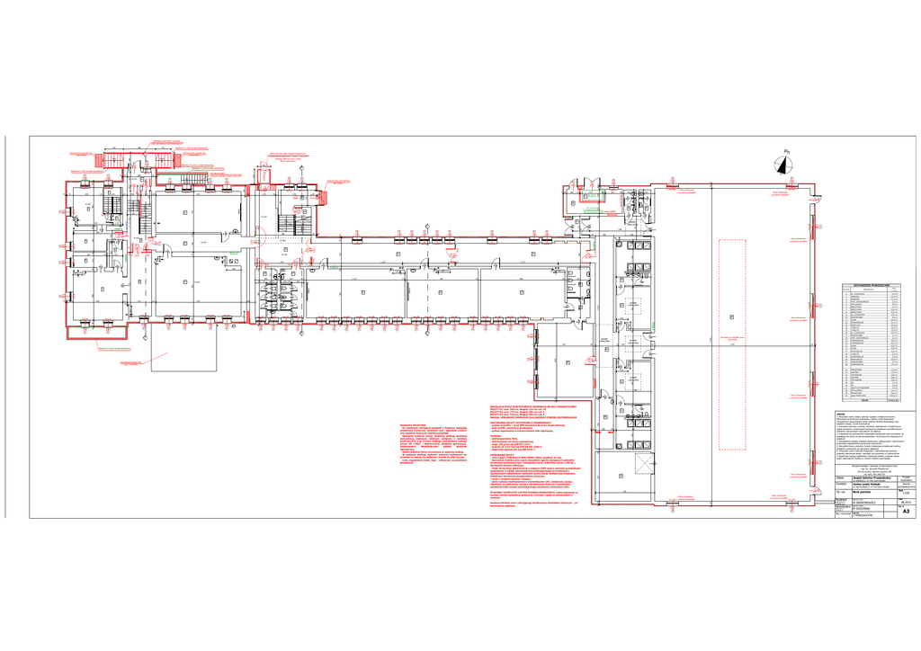
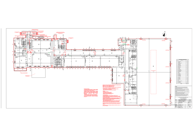
INSTALACJA ROLET ELEKTRYCZNYCH OKIENNYCH NA SALI GIMNASTYCZNEJ:
ROLETY R1: szer. 300 cm, d ugo 115 cm; szt. 36
ROLETY R2: szer. 275 cm, d ugo 305 cm; szt. 4
ROLETY R3: szer. 140 cm, d ugo 305 cm; szt. 4
UWAGA: SPRAWDZI SZEROKO
DLA KA DEGO OTWORU INDYWIDUALNIE
149
294
16
208
30
396
275
305
O10
hp= 285
28
PROJEKTOWANIE I NADZÓR W BUDOWNICTWIE
mgr in . Jaros aw Miko ajczyk
59-216 Kunice, P tnów Legnicki 10A
tel. kom. 502-296-226
Okno o twierane
z poziomu posadzki
39
90
200
676
Okno otwierane
z poziomu posadzki
Okno otwierane
hp= 285 z poz iomu posadzki
O9
140
305
5
140
305
52
hp= 285
O9
Obiekt
Zespó Szkolno-Przedszkolny
Inwestor
Gmina Lewin K odzki
ul. Ko cielna 1, 57-343 Lewin K odzki
ul. Nad Potokiem 4, 57-343 Lewin K odzki
D3
567
235
215
STOSOWA KOMPLETNY SYSTEM JEDNEGO PRODUCENTA: rolety wykonane na
wymiar, system kompletny, gotowy do monta u, nap d ze sterowaniem w
zestawie.
Zasilanie silników rolet z istniej cego okablowania si owników okiennych - po
ewentualnej adaptacji.
UWAGA:
1. Wszystkie roboty nale y wykona zgodnie z Polskimi Normami,
Warunkami technicznymi wykonania i odbioru robót budowlanomonta owych opracowanych przez Instytut Techniki Budowlanej oraz
zasadami wiedzy i sztuki budowlanej.
2. Wszystkie elementy ruchome, elementy wyposa enia i konstrukcyjne
nale y zamawia i wykonywa /montowa na podstawie zweryfikowanych
obmiarów rzeczywistych wykonanych na obiekcie
3. Dopuszcza si zastosowanie materia ów zamiennych pod warunkiem, e
posiadaj one cechy nie gorsze jako ciowo i technicznie od wskazanych w
projekcie.
4. Szczegó owe projekty instalacji sanitarnych, elektrycznych i technicznych
tematem odpowiednich opracowa bran owych.
5. Wszystkie otwory, prze cia i bruzdy instalacyjne przyjmowa wed ug
projektów bran owych po dokonaniu adaptacji.
6. Wszystkie u yte materia y budowlane i wyko czeniowe powinny
posiada odpowienie atesty i aprobaty do stosowania w budownictwie.
7. Wszelkiego rodzaju w tpliwo ci wykonania obiektu rowi za nale y
przed rozpocz ciem budowy w ramach nadzoru autorskiego.
92
342
5 42
TKANINA:
- pó transparentna 50%,
- aluminiowana od strony zewn trznej,
- waga 220 g/m2 wg DIN EN 12127,
- grubo ok. 0,43 mm wg DIN EN ISO 2286-3,
- odporno ogniowa B1 wg DIN 4102-1
STEROWANIE ROLET:
- cichy nap d 230W50Hz/0,90A/200W/15Nm; pr dko 23 rpm
- sterowanie mo liwe przy u yciu wszystkich ogólnie dost pnych systemów
automatyki obiektowej typu "inteligentny Dom", KNX/EIB, Lutron, LON itp..,
sterowanie pilotem radiowym,
- silniki do karniszy elektrycznych o napi ciu 230V oprócz zasilania s dodatkowo
wyposa one w uk ady sterowania bez-potencja owego; w kombinacji z
wbudowanym odbiornikiem radiowym oprócz pilota mo liwe jest niezale ne
dodatkowe sterowanie prze cznikiem ciennym,
- motor z mi kkim startem i stopem,
- piloty radiowe wielokana owe z wy wietlaczem LED, zwi kszony zasi g i
odporno na zak ócenia; wersje z wbudowanym timerem i mo liwo ci
ustawiania kilku czasów automatycznego zamykania i otwierania rolet,
10
582
ZASTOSOWA ROLETY SYSTEMOWE O PARAMETRACH:
- system na profilu - rurze Ø80 mocowany do cian wn ki okiennej,
- kolor profilu: aluminium anodowane,
- system wyposa ony w boczne stalowe linki napinaj ce,
32
30
80
200
5 38
POSADZKA SPORTOWA
Po rozebraniu istniej cej posadzki z linoleum, posadzk
cementow wyrówna , wszystkie rysy i p kni cia oczy ci
oraz wype ni ywic do naprawy posadzek.
Nastepnie wykona u
winylow pod og sportow
wzmocnion
matowym w óknem szklanym z warstw
piankow PCV, o gr. 6,5mm. Pod oga musi spe nia warunki
normy EN 14904 - Nawierzchnie obiektów sportowych.
Zastosowanie:
Wielofunkcyjne
obiekty
sportowe
wewn trzne.
Nale y wykona listwy przy cienne w systemie podlogi.
W systemie pod ogi wykona pokrywy pod ogowe do
otworów na maszty do siatkówki i bramki do pi ki r cznej.
Linie, wype nienia boisk, logo - odtworzy na podstawie
istniej cych.
Okno o twierane
z poziomu posadzki
90
200
10
5 38
14
65
O1
hp= 90
120
117
60
200
hp= 90
117
264
10
10
60
200
162
16
294
42
10
975
12
D15
117
205
50
12
15
88
563
279
D16
EI30
bojler
2,0kW
88
10
60
200
558
51
16
150
210
90
200
90
200
EI30
30
122
H=322
685
730
13
hp= 90
hp= 90
108
200
O1
hp= 90
569
186
H=320
108
53
80
200
8
istn . wym ienn ik i
c.o . ko mp le ksu sportowego .
60
EI30
hp= 285
hp= 60
193
16
27
638
D15
271
istn. cen trala
37 wentylacyjna
H=286
HP25
12
18
8x16,2
27
120
230
D13
EI30
H=324
14
72
146
176
16
EI60
EI30
70
871
90
200
15
12
206
D12
140
230
7
14
5 38
12
170
220
O9
O8
D4
38
638
168
196
263
60
17
10
249
108
200
375
179
223
200
12x16,2
27
EI30
110
200+130
9
D11
100
200+130
EI60
D5
hp= 52
28
tablica
471
12x16,8
27
6x16,8
29
116
HP25
154
Wycieraczka zewn trzna
90x150cm
117
205
hp= 52
235
704
H=330
80
200
10
285
117
205
163
platforma
60
140
282
120
162
189
18
86
200
12
108
200
14
hp= 90
14
107
28
11
EI30
D10
126
236
12
50
6
173
hp= 90
O1
182
90
200
5
387
108
200
975
O2
287
294
136
TL
hp= 90
O1
3
50
O2
H=318
HP25
569
108
200
108
200
119
TG
110
105
200
50
10
4
60
5
200+130
90
70
200
424
hp= 90
65
12
10
EI30
25
hp= 90
O1
80
200
208
148
140
70
200
108
200
hp= 90
O1
155
51
148
55
219
O1
108
200
O1
90
200
1
168
79
hp= 233
10
440
2
hp= 90
O1
H=320
14
EI30
251
88
150
140
205
44
10
D9
340
180
166
157
280
H=231
52
108
200
44
Na uskoku ciany
wykona obróbk z blachy cynk-tytan
108
200
108
200
14
152
Barierka h=1,10m ze stali nierdzewnej
222
A
O1
Pn
Platforma dla osób niepe nosprawnych.
Powierzchnia platformy: 1000 x 1400 mm
Ud wig: 400 kg lub 4 osoby
Szyb samono ny.
Barierka h=1,10m ze stali nierdzewnej
hp= 53
O1
hp= 90
72
Wycieraczka zewn trzna
90x150cm
44
Barierka h=1,10m ze stali nierdzewnej
14
Barierka h=1,10m ze stali nierdzewnej
6x15
35
O6
D1
14
180
7x15
35
hp= 285
175
Wycieraczka zewn trzna
90x150cm
D2
368
176
210
Projekt
budowlany
Bran a
architektoniczna
Rzut parteru
Skala
Projektant
mgr in . arch.
Data
Sprawdzaj cy
mgr in . arch.
Rys. nr
Rys. opracowa
mgr in .
Tyt. rys.
upr. proj. nr
230/87/Uw
upr. proj. nr
30/84/Lw
W. SERAFINOWICZ
M. SOSZY SKI
J. MIKO AJCZYK
1:100
08 2015
A3