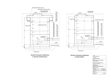
uszczelnienie krąg

Transkrypt

uszczelnienie krąg
płyta Ŝelbetowa pokrywowa typ cięŜki
pierścień Ŝelbet. odciąŜający wg zestaw.
uszczelnienie np.
CX5 Ceresit
rura PVC 200, 200×5,9 PVC-U_SDR34
odpływ ścieków sanitarnych z projekt. bud.
13.5
100
100
0
30
100
Kręgi Ŝelbetowe DN 1200
13.5
DN
DN
uszczelnienie np.
CX5 Ceresit
krąg DN 1200
szczelne przejście przez ścianę betonową studni
tuleja ochronna typ długi L240mm Dn200mm
Kręgi Ŝelbetowe DN 1000
krąg DN 1000
Właz Ŝeliwny typu
cięŜkiego D 400
152,68
100
13.5
rura PVC 200, 200×5,9 PVC-U_SDR34
odpływ wód opadowych z projekt. bud.
100
100
13.5
szczelne przejście przez ścianę betonową studni
tuleja ochronna typ długi L240mm Dn200mm
152,68
Podsypka cem-piaskowa -5 cm
stabilizcja pod pierścień odciąŜ.
Właz Ŝeliwny deszczowy,
typu cięŜkiego D 400
0
30
150.69
10
10
150.69
15
postawa studni DN 1200
10
10
15
postawa studni DN 1000
kineta betonowa
kineta betonowa
Studnia rewizyjna Ŝelbetowa
w terenie utwardzonym
Studnia rewizyjna Ŝelbetowa
w pasie zieleni
Inwestor
Gmina Góra Kalwaria
ul. 3 Maja 10
05 - 530 Góra Kalwaria
Projekt
Budowa przedszkola integracyjnego
w Górze Kalwarii
.
zlokalizowanego na działce o numerze
ew. 7, 110, 112, obręb 3-02 przy ul. Bema,
Budowlanych, Kalwaryjskiej
Nazwa rysunku
Studnia betonowa
SCHEMAT STUDNI śELBETOWEJ
Faza
Projekt budowlany
Projektował
Nr uprawnień
inŜ. Wojciech Raczkiewicz - LUB/0034/PWOS/09
Sprawdzający
Nr uprawnień
mgr inŜ. Krystyna śółkiewska - GP-II-7342/109/94
Skala rysunku
1 : 10
Faza opracowania
Nr rys.
2011-09-15
IS 005