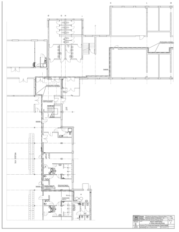
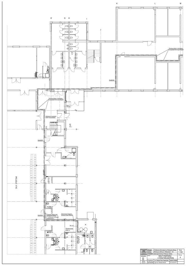
Rzut parteru do hali sportowej - Urząd Miasta i Gminy Połczyn – Zdrój

Transkrypt

Rzut parteru do hali sportowej - Urząd Miasta i Gminy Połczyn – Zdrój
K
G'
G
H
L
M
I
J
Obudowa płytami z kartongipsu
na wysokość 20 cm pod stropem
Dn50/50
Obudowa płytami z kartongipsu
na wysokość 20 cm pod stropem
Obniżenie do wysokości
2,08 m nad posadzką
Dn50/50
Dn50/50
Przewody układać obok
istniejących instalacji
( 7 przewodów na stropem
podwieszanym )
Zdemontować fragment
obudowy kanału 60x60cm
Istn. w.z.
Obudowa kanału
60x60 cm
Pracownia Projektowa
75-839 Koszalin
ul. Łużycka 70/1
NIP 669-23-03-813
BRANŻA:
DATA:
05.2010 r.
Publiczne Gimnazjum w Połczynie Zdroju
Obiekt:
Połczyn Zdrój ul. Mieszka I 19
Adres:
Inwestor: Zarząd Gminy Połczyn Zdrój
TEMAT:
RZUT PARTERU
z nową halą sportową
Projektant: inż. Renata Pluto-Prądzyńska UAN/N/7210/80/85
GT-V-63/147/77
Sprawdziła mgr inż. Elżbieta Klimek
Skala
1:100
Nr rys.
4