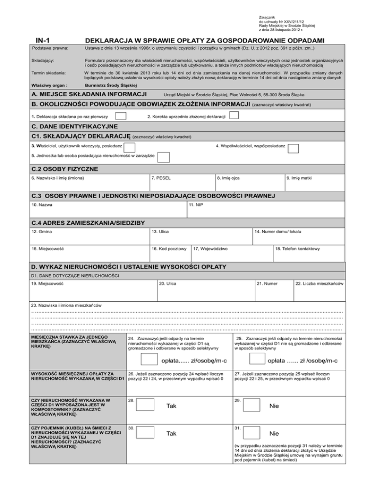
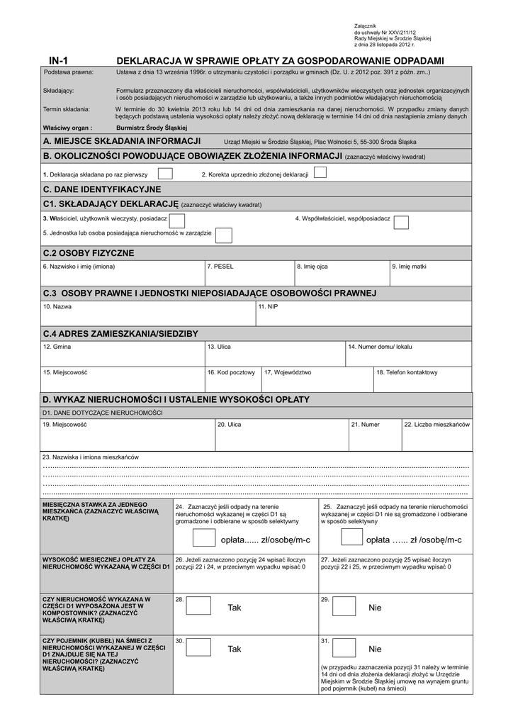
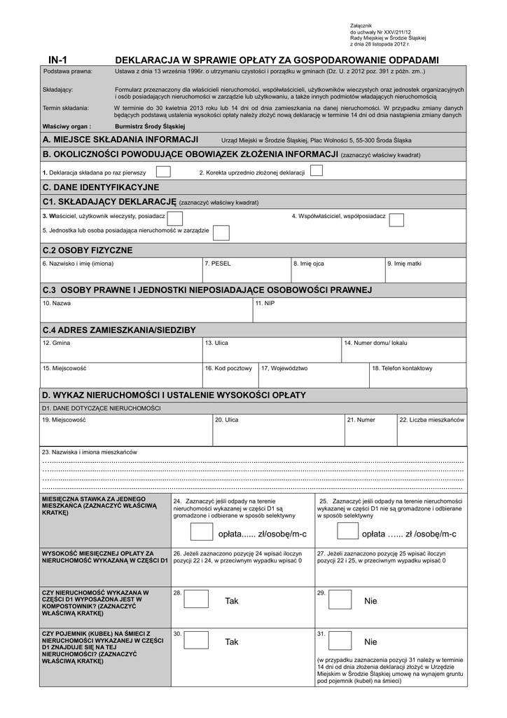
IN-1 - Gmina i Miasto Środa Śląska

Transkrypt

IN-1 - Gmina i Miasto Środa Śląska
Załącznik
do uchwały Nr XXV/211/12
Rady Miejskiej w Środzie Śląskiej
z dnia 28 listopada 2012 r.
IN-1
DEKLARACJA W SPRAWIE OPŁATY ZA GOSPODAROWANIE ODPADAMI
Podstawa prawna:
Ustawa z dnia 13 września 1996r. o utrzymaniu czystości i porządku w gminach (Dz. U. z 2012 poz. 391 z późn. zm..)
Składający:
Formularz przeznaczony dla właścicieli nieruchomości, współwłaścicieli, użytkowników wieczystych oraz jednostek organizacyjnych
i osób posiadających nieruchomości w zarządzie lub użytkowaniu, a także innych podmiotów władających nieruchomością
Termin składania:
W terminie do 30 kwietnia 2013 roku lub 14 dni od dnia zamieszkania na danej nieruchomości. W przypadku zmiany danych
będących podstawą ustalenia wysokości opłaty należy złożyć nową deklarację w terminie 14 dni od dnia nastąpienia zmiany danych
Właściwy organ :
Burmistrz Środy Śląskiej
A. MIEJSCE SKŁADANIA INFORMACJI
Urząd Miejski w Środzie Śląskiej, Plac Wolności 5, 55-300 Środa Śląska
B. OKOLICZNOŚCI POWODUJĄCE OBOWIĄZEK ZŁOŻENIA INFORMACJI
1. Deklaracja składana po raz pierwszy
(zaznaczyć właściwy kwadrat)
2. Korekta uprzednio złożonej deklaracji
C. DANE IDENTYFIKACYJNE
C1. SKŁADAJĄCY DEKLARACJĘ (zaznaczyć właściwy kwadrat)
3. Właściciel, użytkownik wieczysty, posiadacz
4. Współwłaściciel, współposiadacz
5. Jednostka lub osoba posiadająca nieruchomość w zarządzie
C.2 OSOBY FIZYCZNE
6. Nazwisko i imię (imiona)
7. PESEL
8. Imię ojca
9. Imię matki
C.3 OSOBY PRAWNE I JEDNOSTKI NIEPOSIADAJĄCE OSOBOWOŚCI PRAWNEJ
10. Nazwa
11. NIP
C.4 ADRES ZAMIESZKANIA/SIEDZIBY
12. Gmina
13. Ulica
15. Miejscowość
16. Kod pocztowy
14. Numer domu/ lokalu
17, Województwo
18. Telefon kontaktowy
D. WYKAZ NIERUCHOMOŚCI I USTALENIE WYSOKOŚCI OPŁATY
D1. DANE DOTYCZĄCE NIERUCHOMOŚCI
19. Miejscowość
20. Ulica
21. Numer
22. Liczba mieszkańców
23. Nazwiska i imiona mieszkańców
…...................................................................................................................................................................................................
…...................................................................................................................................................................................................
…...................................................................................................................................................................................................
......................................................................................................................................................................................................
MIESIĘCZNA STAWKA ZA JEDNEGO
MIESZKAŃCA (ZAZNACZYĆ WŁAŚCIWĄ
KRATKĘ)
24. Zaznaczyć jeśli odpady na terenie
nieruchomości wykazanej w części D1 są
gromadzone i odbierane w sposób selektywny
25. Zaznaczyć jeśli odpady na terenie nieruchomości
wykazanej w części D1 nie są gromadzone i odbierane
w sposób selektywny
opłata...... zł/osobę/m-c
opłata …... zł /osobę/m-c
WYSOKOŚĆ MIESIĘCZNEJ OPŁATY ZA
26. Jeżeli zaznaczono pozycję 24 wpisać iloczyn
NIERUCHOMOŚĆ WYKAZANĄ W CZĘŚCI D1 pozycji 22 i 24, w przeciwnym wypadku wpisać 0
27. Jeżeli zaznaczono pozycję 25 wpisać iloczyn
pozycji 22 i 25, w przeciwnym wypadku wpisać 0
CZY NIERUCHOMOŚĆ WYKAZANA W
CZĘŚCI D1 WYPOSAŻONA JEST W
KOMPOSTOWNIK? (ZAZNACZYĆ
WŁAŚCIWĄ KRATKĘ)
28.
29.
CZY POJEMNIK (KUBEŁ) NA ŚMIECI Z
NIERUCHOMOŚCI WYKAZANEJ W CZĘŚCI
D1 ZNAJDUJE SIĘ NA TEJ
NIERUCHOMOŚCI? (ZAZNACZYĆ
WŁAŚCIWĄ KRATKĘ)
30.
Tak
Nie
31.
Tak
Nie
(w przypadku zaznaczenia pozycji 31 należy w terminie
14 dni od dnia złożenia deklaracji złożyć w Urzędzie
Miejskim w Środzie Śląskiej umowę na wynajem gruntu
pod pojemnik (kubeł) na śmieci)
D2. DANE DOTYCZĄCE NIERUCHOMOŚCI
32. Miejscowość
33. Ulica
34. Numer
35. Liczba mieszkańców
36. Nazwiska i imiona mieszkańców
…...................................................................................................................................................................................................
…...................................................................................................................................................................................................
…...................................................................................................................................................................................................
......................................................................................................................................................................................................
......................................................................................................................................................................................................
MIESIĘCZNA STAWKA ZA JEDNEGO
MIESZKAŃCA (ZAZNACZYĆ WŁAŚCIWĄ
KRATKĘ)
37. Zaznaczyć jeśli odpady na terenie
nieruchomości wykazanej w części D2 są
gromadzone i odbierane w sposób selektywny)
38. Zaznaczyć jeśli odpady na terenie nieruchomości
wykazanej w części D2 nie są gromadzone i odbierane
w sposób selektywny)
opłata...... zł/osobę/m-c
opłata...... zł/osobę/m-c
WYSOKOŚĆ MIESIĘCZNEJ OPŁATY ZA
39. Jeżeli zaznaczono pozycję 37 wpisać iloczyn
NIERUCHOMOŚĆ WYKAZANĄ W CZĘŚCI D2 pozycji 35 i 37, w przeciwnym wypadku wpisać 0
40. Jeżeli zaznaczono pozycję 38 wpisać iloczyn
pozycji 35 i 38, w przeciwnym wypadku wpisać 0
CZY NIERUCHOMOŚĆ WYKAZANA W
CZĘŚCI D2 WYPOSAŻONA JEST W
KOMPOSTOWNIK? (ZAZNACZYĆ
WŁAŚCIWĄ KRATKĘ)
41.
42.
CZY POJEMNIK (KUBEŁ) NA ŚMIECI Z
NIERUCHOMOŚCI WYKAZANEJ W CZĘŚCI
D2 ZNAJDUJE SIĘ NA TEJ
NIERUCHOMOŚCI? (ZAZNACZYĆ
WŁAŚCIWĄ KRATKĘ)
43.
Nie
Tak
44.
Tak
Nie
(w przypadku zaznaczenia pozycji 44 należy w terminie
14 dni od dnia złożenia deklaracji złożyć w Urzędzie
Miejskim w Środzie Śląskiej umowę na wynajem gruntu
pod pojemnik (kubeł) na śmieci)
D3. ŁĄCZNA WYSOKOŚĆ OPŁATY
45. Wpisać sumę kwot z pozycji 26 i 39
46. Wpisać sumę kwot z pozycji 27 i 40
47. Wpisać sumę kwot z pozycji 45 i 46
E. ADRES DO KORESPONDENCJI
48. Miejscowość
(Należy wypełnić jeżeli jest inny niż w C.2.)
49.Kod pocztowy i poczta
50. Ulica
51. Numer domu/ lokalu
F. UZASADNIENIE ZMIANY
52. W przypadku zaznaczenia w części B pozycji 2 opisać powód korekty deklaracji wraz z podaniem daty, od której nastąpiły zmiany
G. OŚWIADCZENIE I PODPIS SKŁADAJĄCEGO / OSOBY REPREZENTUJĄCEJ SKŁADAJĄCEGO
Oświadczam, że podane przeze mnie dane są zgodne z prawdą.
53. Nazwisko i imię (imiona)
54. Data wypełnienia
55. Podpis składającego / osoby reprezentującej składającego
H. ADNOTACJE URZĘDOWE
56. Uwagi organu podatkowego
57. Data
58. Podpis przyjmującego formularz
Pouczenie:
1) należy wypełnić wyłącznie pola jasne, drukowanymi literami, kolorem czarnym lub niebieskim,
2) Na podstawie art 3a ustawy z dnia 17 czerwca 1996 r o postępowaniu egzekucyjnym w administracji niniejsza deklaracja stanowi
podstawę do wystawienia tytułu wykonawczego.
3) Opłata za za gospodarowanie odpadami komunalnymi uiszczana jest w kasie Urzędu Miejskiego w Środzie Śląskiej lub przelewem
na rachunek bankowy Gminy Środa Ślaska nr 10 1020 5242 0000 2102 0160 1996.