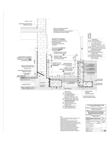
DETALE _ 0. poddasze

Transkrypt

DETALE _ 0. poddasze
cokół nim. 10 cm
ćwierćwałek przy zastosowaniu
GERFLOR -Creation
RUCH PIESZY
RUCH KOŁOWY
barierka z pochwytem drewnianym
odwzorowujaca dokladnie
balustrade na balkonach od strony dziedzińca
oraz balustrade na klatce schodowej
8cm
8cm
tynki zewnetrzne renowacyjne
RENOPAL firmy SCHOMBURG
wyprowadzic do poziomu ok 215cm
ponad poziom terenu
charakterystyczne zalamanie
na elewacji
4cm
6cm
15
55
20
pręty stalowe
fi12mm żebrowane
20
30°
nalezy przewidziec otwory
o śrendicy 60mm
2%
2%
pręty stalowe
fi12mm żebrowane
2x papa na lepiku
termozgrzewalna
20
60°
16
rura drenarska
Ø100mm
17
35
pręty stalowe
fi12mm żebrowane
18
pręty stalowe
fi12mm żebrowane
żwir 0\32 mm
pręty stalowe
fi12mm żebrowane
20
wylewka betonowa 7cm
16
18
30cm
5cm
8cm
flizelina filtrujaca
10cm
odwierty w odstępach 10-12cm,
Ø18mm pod kątem max 30 °
GRUNT RODZIMY
120
55
styropian XPS 5cm
WARSTWA ODSĄCZAJAC A
piasek o frakcji ziaren do 2mm
20
ćwierćwałek przy zastosowaniu
GERFLOR -Creation
Izolacja pozioma
Aquafin-2K
styropian XPS 4cm
ryflowany klejony na
Combidic-1K
styropian XPS 8cm
obróbka blacharska
ryflowany klejony na ażurowa prowadzic do
Combidic-1K
konca pochylni
Szpachla na siatce
Renotherm-VWS-Pulverkleber
tynk w kolorze elewacji
PODBUDOWA WŁAŚCIWA
piasek o frakcji 30-60mm
uzupełniona od góry kruszywem
o frakcji do 30mm
5%
75
90
faseta z zaprawy cementowej
z dodatkiem ASOPLAST -MZ
cokół nim.10 cm
10
Szpachla na siatce
Renotherm-VWS-Pulverkleber
tynk w kolorze elewacji
5%
min 160
tynki wewnetrzne renowacyjne
THERMOPAL firmy SCHOMBURG
wyprowadzic do poziomu 160cm
ponad poziom posadzki
100
25cm
45cm
110
obróbka blacharska ażurowa
prowadzic do konca pochylni
PODSYPKA piasek o frakcji do 2mm
lub grysu lub żwirku o ziarnach 1-4mm
5cm
10cm
w szczelinach staosowac
piasek suchy o frakcji ziaren 1-2mm
Izolacja pionowa Combiflex-C2
wyprowadzic nim.30 cm
nad poziom terenu
10
LIBET DECCO ,
Colormix Krakowska ;
mix -Pastello \ Kolory jesieni
LIBET DECCO ,
Colormix Krakowska ;
mix -Pastello \ Kolory jesieni
w szczelinach staosowac
piasek suchy o frakcji ziaren 1-2mm
PODSYPKA piasek o frakcji do 2mm
lub grysu lub żwirku o ziarnach 1-4mm
PODBUDOWA WŁAŚCIWA
piasek o frakcji 30-60mm
uzupełniona od góry kruszywem
o frakcji do 30mm
WARSTWA ODSĄCZAJAC A
piasek o frakcji ziaren do 2mm
podbetonowanie
podstawy
ława betonowa B20
mur oporowy żel-bet 25cm
wykończyc zgodnie elewacja
STUDIO PROJEKTOWE
URSZULA ŁODZIŃSKA
34-300 Żywiec
ul. Wodna 20
INWESTOR
Starostwo Powiatowe w Żywcu
34-300 Żywiec, ul. Krasińskiego 13
PROJEKT
Projekt adaptacji budynku położonego w
Żywcu przy Al. Wolności 2 dla potrzeb
Wydziałów Starostwa Powiatowego
ADRES INWESTYCJI
34-300 Żywiec al.Wolności 2
UWAGA
1. PRZED PRZYSTĄPIENIEM DO PRAC WYMIARY SPRAWDZIĆ NA BUDOWIE.
2. NINIEJSZY PROJEKT ROZPATRYWAĆ ŁĄCZNIE Z PROJEKTAMI
BRANŻOWYMI BUDYNKU.
3. PODANI PRODUCENCI ROZWIĄZAŃ SYSTEMOWYCH SĄ JEDYNIE
PRZYKŁADOWYMI. WYKONAWCA MOŻE ZASTOSOWAĆ INNYCH
PRODUCENTÓW ZAMIENNE ROZWIAZANIA POD WARUNKIEM ZACHOWANIA
PARAMETRÓW TECHNICZNYCH I ESTETYCZNYCH ZAWARTYCH W PROJEKCIE
BUDOWLANYM ORAZ PISEMNEJ AKCEPTACJI AUTORA NINIEJSZEJ
DOKUMENTACJI I INSPEKTORANADZORU INWESTORSKIEGO.
4. NINIEJSZY PROJEKT JEST PODSTAWĄ DO OPRACOWANIA
PRZEZ WYKONAWCĘ WŁASNEGO PROJEKTU WARSZTATOWEGO
POSZCZEGÓLNYCH ELEMENTÓW BUDYNKU BĘDĄCYCH PRZEDMIOTEM
PROJEKTU. WYKONAWCAJEST ZOBOWIĄZANY DO UZGODNIENIA
OPRACOWANEGO PRZEZ SIEBIE PROJEKTU WARSZTATOWEGO
Z ARCHITEKTEM - AUTOREM NINIEJSZEGO PROJEKTU- W ZAKRESIE
DOBORU MATERIAŁÓW, KOLORYSTYKI I ROZWIAZAŃ FUNKCJONALNYCH
działka nr 1249\2
TREŚĆ RYSUNKU
SKALA
DETAL RAMPY POCHYLNI NP
FAZA PROJEKTU
PROJEKT BUDOWLANO-WYKONWCZY
PROJEKTOWAŁ
mgr inż. arch. Wojciech Łodziński
1:10
DATA
nr uprawnień
VII. 2008
PODPIS
MPOIA/041/2007
mgr inż. arch. Rafał Mirek
mgr inż. arch. Urszula Łodzińska
stud. arch. Grzegorz Mirek
SPRAWDZIŁ
mgr inż. arch. Andrzej Łapa
BRANŻA
ARCHITEKTURA
NR RYS.
19