pobrania tutaj

Transkrypt

pobrania tutaj
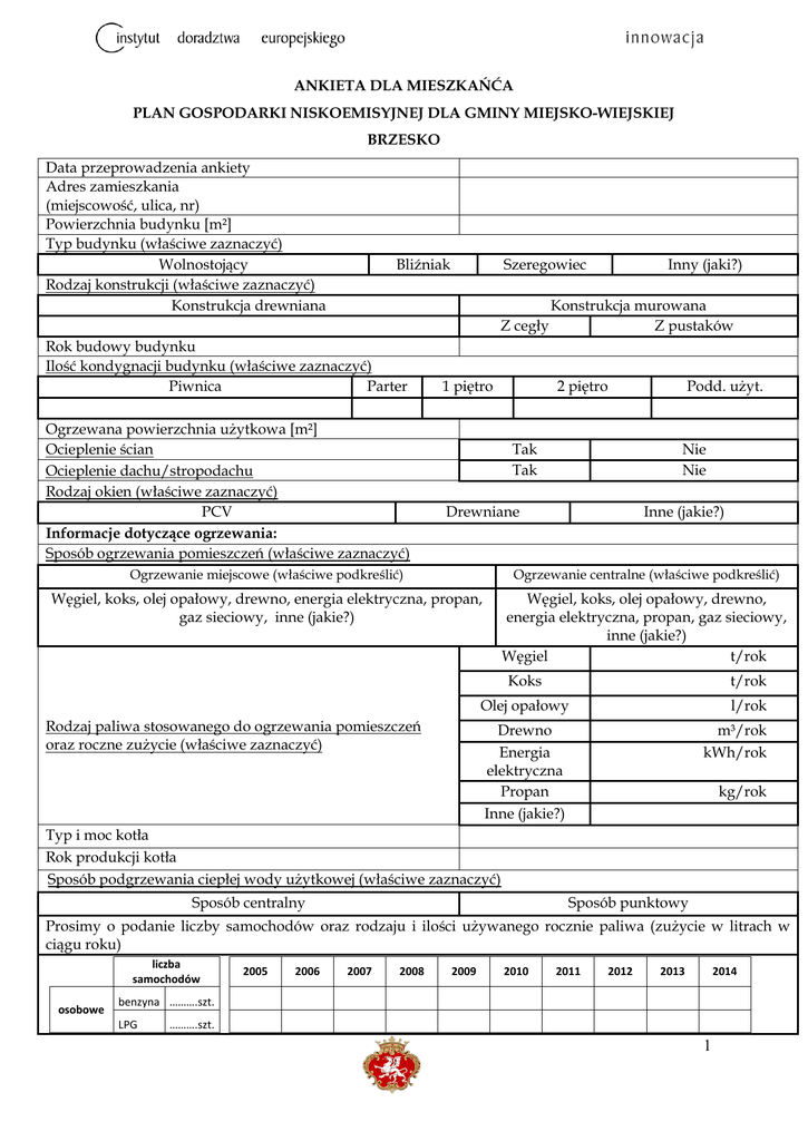
ANKIETA DLA MIESZKAŃĆA
PLAN GOSPODARKI NISKOEMISYJNEJ DLA GMINY MIEJSKO-WIEJSKIEJ
BRZESKO
Data przeprowadzenia ankiety
Adres zamieszkania
(miejscowość, ulica, nr)
Powierzchnia budynku [m²]
Typ budynku (właściwe zaznaczyć)
Wolnostojący
Rodzaj konstrukcji (właściwe zaznaczyć)
Konstrukcja drewniana
Bliźniak
Szeregowiec
Inny (jaki?)
Konstrukcja murowana
Z cegły
Z pustaków
Rok budowy budynku
Ilość kondygnacji budynku (właściwe zaznaczyć)
Piwnica
Parter
Ogrzewana powierzchnia użytkowa [m²]
Ocieplenie ścian
Ocieplenie dachu/stropodachu
Rodzaj okien (właściwe zaznaczyć)
PCV
Informacje dotyczące ogrzewania:
Sposób ogrzewania pomieszczeń (właściwe zaznaczyć)
1 piętro
2 piętro
Podd. użyt.
Tak
Tak
Nie
Nie
Drewniane
Inne (jakie?)
Ogrzewanie miejscowe (właściwe podkreślić)
Ogrzewanie centralne (właściwe podkreślić)
Węgiel, koks, olej opałowy, drewno, energia elektryczna, propan,
gaz sieciowy, inne (jakie?)
Węgiel, koks, olej opałowy, drewno,
energia elektryczna, propan, gaz sieciowy,
inne (jakie?)
Węgiel
t/rok
Rodzaj paliwa stosowanego do ogrzewania pomieszczeń
oraz roczne zużycie (właściwe zaznaczyć)
Koks
t/rok
Olej opałowy
l/rok
Drewno
Energia
elektryczna
Propan
Inne (jakie?)
m³/rok
kWh/rok
kg/rok
Typ i moc kotła
Rok produkcji kotła
Sposób podgrzewania ciepłej wody użytkowej (właściwe zaznaczyć)
Sposób centralny
Sposób punktowy
Prosimy o podanie liczby samochodów oraz rodzaju i ilości używanego rocznie paliwa (zużycie w litrach w
ciągu roku)
liczba
samochodów
osobowe
2005
2006
2007
2008
2009
2010
2011
2012
2013
2014
benzyna ……….szt.
LPG
……….szt.
1
diesel
……….szt.
benzyna ……….szt.
dostawcze LPG
……….szt.
diesel
ciężarowe
……….szt.
benzyna ……….szt.
diesel
……….szt.
Czy są Państwo zainteresowani wymianą obecnego źródła ciepła na nowe, niskoemisyjne ? (właściwe
zaznaczyć)
Tak, w przypadku gdy otrzymam dofinansowanie 50%Tak, także gdy nie
Nie
75%
otrzymam
dofinansowania
W przypadku wyrażenia zainteresowania wymianą obecnego źródła ciepła na nowe, niskoemisyjne, proszę
podać na jakie ?
Kocioł gazyfikujący na drewno kawałkowe
Kocioł pelletowy ze ślimakowym podajnikiem elastycznym
Nie dotyczy
Kocioł pelletowy z zasobnikiem przykotłowym
Kocioł pelletowy z załadunkiem pneumatycznym
Kondensacyjny kocioł gazowy
Czy są Państwo zainteresowani montażem kolektorów słonecznych wspomagających podgrzewanie ciepłej
wody użytkowej ? (w przypadku wyrażania zainteresowania proszę podać ilość osób na stałe zamieszkujących
budynek)
Tak
Nie
osób
Czy są Państwo zainteresowani montażem ogniw fotowoltaicznych wspomagających produkcję energii
elektrycznej ? (w przypadku wyrażania zainteresowania proszę podać roczne zużycie energii elektrycznej w
kWh)
Tak
Nie
kWh
Czy są Państwo zainteresowani montażem pompy ciepła wspomagającej ogrzewanie budynku oraz produkcję
ciepłej wody użytkowej ?
Tak
Nie
Zostałem poinformowany, iż przekazane informacje zostaną wykorzystane wyłącznie w
celu opracowania Planu Gospodarki Niskoemisyjnej
dla Gminy miejsko-wiejskiej Brzesko
oraz wyrażam na to zgodę.
..........................................................
Data i podpis osoby ankietowanej
2