II etap wyk elew przek _ 1. PRZ

Transkrypt

II etap wyk elew przek _ 1. PRZ
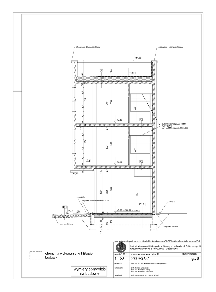
ofasowanie - blacha powlekana
ofasowanie - blacha powlekana
160
117
+11,98
+10,81
328
90
230
825
310
25
825
30
18
43
D1
P2
95
+7,10
90
330
230
825
3025
25
825
275
225
18
SUFIT PODWIESZANY FIRMY
AMSTRONG
płyty ULTIMA, zawiesia PRELUDE
P3
P2
290
380
275
364
3395
+3,38
145
15
18
95
+3,80
obrzeże
opaska żwirowa szerokość 18 cm
obrzeże
P1.2
P4
±0,00 = 204,60 m n.p.m.
34
10
2%
opaska żwirowa
10
40
płyty chodnikowe
130
96
56
10
5
5
-0,03
pracownia architektoniczna arch. elżbieta kierska-łukaszewska 30-086 kraków, ul.wojciecha halczyna 25/1
Instytut Meteorologii i Gospodarki Wodnej w Krakowie, ul. P. Borowego 14
Rozbudowa budynku B - dobudowa i przebudowa
elementy wykonanie w I Etapie
budowy
wymiary sprawdzić
na budowie
sierpień 2011
projekt wykonawczy - etap II
1 : 50
przekrój CC
projektant
arch. Elżbieta Kierska-Łukaszewska UAN-Upr.296/85
opracowanie
arch. Tomasz Chowaniec
stud. WA. Katarzyna Maury
stud. WA. Kazimierz Barnowski
weryfikacja
arch. Marta Bruzda UAN-Upr. Nr 178/87
ARCHITEKTURA
rys. 8