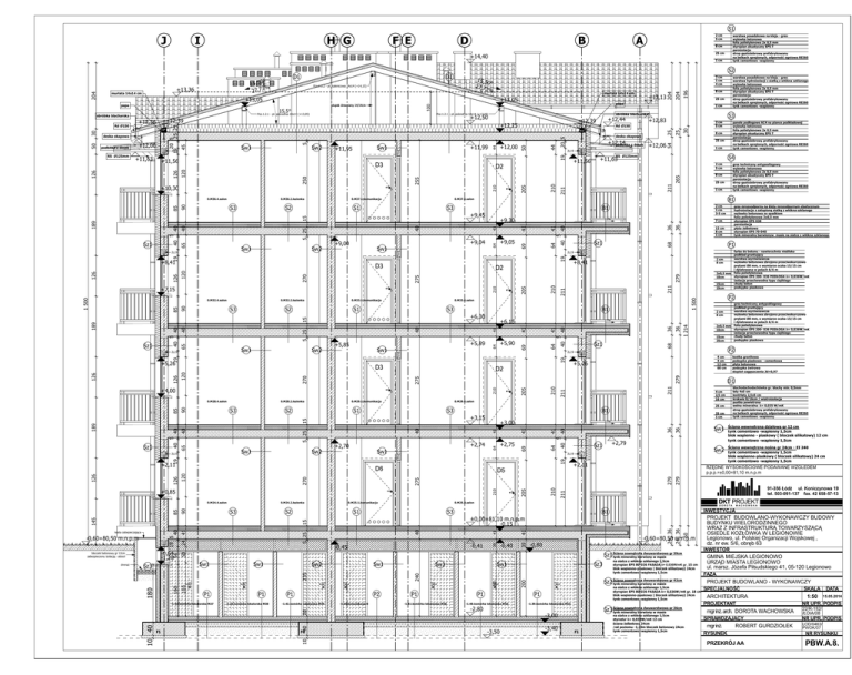
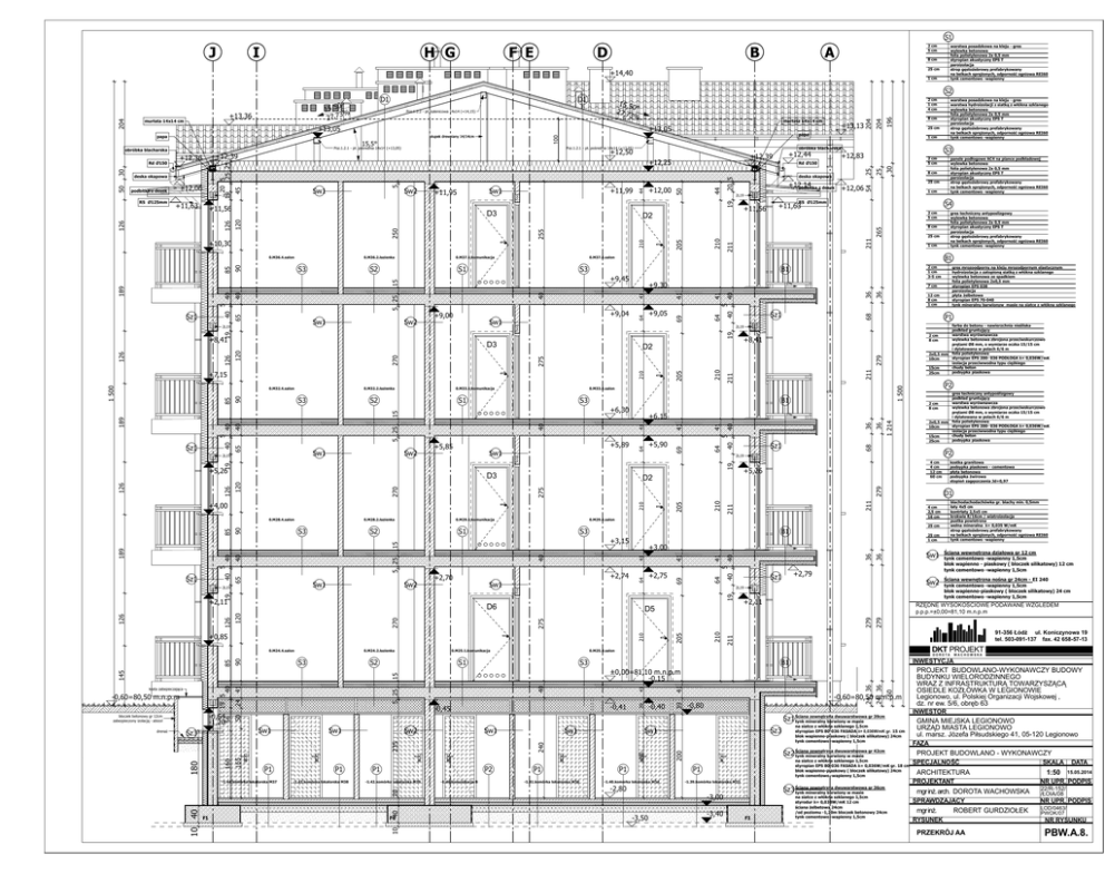
PBW kozłówka 24 lustro _ 3. Kon

Transkrypt

PBW kozłówka 24 lustro _ 3. Kon
S1
J
I
H G
F E
D
B
2 cm
5 cm
A
warstwa posadzkowa na kleju - gres
wylewka betonowa
folia polietylenowa 2x 0,5 mm
styropian akustyczny EPS T
paroizolacja
strop gęstożebrowy prefabrykowany
na belkach sprężonych, odporność ogniowa REI60
tynk cementowo -wapienny
8 cm
25 cm
+14,40
1 cm
20 5
44
196
30
265
279
211
1 500
gres techniczny antypoślizgowy
podkład gruntujący
warstwa wyrównawcza
wylewka betonowa zbrojona przeciwskurczowo
prętami Ø8 mm, o wymiarze oczka 15/15 cm
i dylatowana w polach 6/6 m
2x0,5 mm folia polietylenowa
styropian EPS 200- 036 PODŁOGA λ= 0,036W/mK
10cm
izolacja przeciwwodna typu ciężkiego
chudy beton
15cm
podsypka piaskowa
25cm
40
Sz1
1 214
36
40
41
64
5
41
36
1%
69
64
+5,90
P2
2 cm
8 cm
P2
19
2L19
4 cm
4 cm
12 cm
60 cm
+5,26
279
D2
kostka granitowa
podsypka piaskowo - cementowa
płyta betonowa
podsypka żwirowa
stopień zagęszczenia Jd=0,97
D1
211
211
205
210
0.M29.1.komunikacja
210
275
270
120
blachodachodachówka gr. blachy min. 0,5mm
łaty 4x5 cm
kontrłaty 2,5x5 cm
krokwie 8/16cm / wiatroizolacja
pustka powietrzna
wełna mineralna λ= 0,035 W/mK
strop gęstożebrowy prefabrykowany
na belkach sprężonych, odporność ogniowa REI60
tynk cementowo -wapienny
4 cm
2,5 cm
16 cm
0.M29.4.salon
S3
36
41
40
64
+2,75
69
Sw1
64
+2,74
Ściana wewnętrzna działowa gr 12 cm
tynk cementowo -wapienny 1,5cm
blok wapienno - piaskowy ( bloczek silikatowy) 12 cm
tynk cementowo -wapienny 1,5cm
Sw2
Ściana wewnętrzna nośna gr 24cm - EI 240
tynk cementowo -wapienny 1,5cm
blok wapienno-piaskowy ( bloczek silikatowy) 24 cm
tynk cementowo -wapienny 1,5cm
19
2L19
D6
+2,11
RZĘDNE WYSOKOŚCIOWE PODAWANE WZGLEDEM
p.p.p.=±0,00=81,10 m.n.p.m
279
D5
0.M24.2.łazienka
0.M25.1.komunikacja
91-356 Łódź ul. Koniczynowa 19
tel. 503-091-137 fax. 42 658-57-13
211
205
210
+0,85
210
275
270
+2,79
Sz1
279
+2,70
+2,11
120
Sw1
5
41
40
1%
+3,00
19
Sw2
0.M24.4.salon
25 cm
1 cm
36
+3,15
5 25
65
Sw1
B1
40
S1
41
S2
15
S3
40
40
farba do betonu - nawierzchnia nieśliska
podkład gruntujący
warstwa wyrównawcza
wylewka betonowa zbrojona przeciwskurczowo
prętami Ø8 mm, o wymiarze oczka 15/15 cm
i dylatowana w polach 6/6 m
2x0,5 mm folia polietylenowa
styropian EPS 200- 036 PODŁOGA λ= 0,036W/mK
10cm
izolacja przeciwwodna typu ciężkiego
chudy beton
15cm
podsypka piaskowa
25cm
25 cm
90
85
0.M28.2.łazienka
5
40
36
40
19
211
210
205
210
41
40
15
5 25
Sw1
D3
2L19
126
P1
+8,41
+6,15
19
126
126
12 cm
8 cm
1 cm
2 cm
8 cm
275
270
120
90
40
65
5
40
189
40
+5,89
+5,85
gres mrozoodporny na kleju mrozodpornym elastycznym
hydroizolacja z zatopioną siatką z włókna szklanego
wylewka betonowa ze spadkiem
folia polietylenowa 2x0,5 mm
styropian EPS 038
paroizolacja
płyta żelbetowa
styropian EPS 70-040
tynk mineralny barwionyw masie na siatce z włókna szklanego
7 cm
B1
+4,00
189
2 cm
1 cm
3-5 cm
Sz1
S3
+6,30
Sw2
0.M28.4.salon
1 cm
0.M33.4.salon
S1
+5,26
126
211
211
210
40
+9,05
D2
0.M33.1.komunikacja
S2
Sw1
25 cm
1%
19
126
126
85
0.M32.2.łazienka
gres techniczny antyposlizgowy
wylewka betonowa
folia polietylenowa 2x 0,5 mm
styropian akustyczny EPS T
paroizolacja
strop gęstożebrowy prefabrykowany
na belkach sprężonych, odporność ogniowa REI60
tynk cementowo -wapienny
8 cm
2L19
+7,15
2L19
2 cm
5 cm
5
Sw1
D3
S3
S4
+11,63
+9,30
41
40
40
5 25
+9,04
+9,00
+8,41
1 500
RS Ø125mm
+11,56
B1
+9,45
Sw2
0.M32.4.salon
1 cm
2L19
S3
41
40
65
Sw1
25 cm
B1
64
S1
panele podłogowe AC4 na piance podkładowej
wylewka betonowa
folia polietylenowa 2x 0,5 mm
styropian akustyczny EPS T
paroizolacja
strop gęstożebrowy prefabrykowany
na belkach sprężonych, odporność ogniowa REI60
tynk cementowo -wapienny
8 cm
0.M37.4.salon
41
S2
2 cm
5 cm
36
0.M37.1.komunikacja
15
S3
5
40
189
205
210
0.M36.2.łazienka
2L19
Sz1
+12,14
podbitka z desek
+12,06
D2
255
250
90
85
0.M36.4.salon
Sz1
deska okapowa
19
D3
+10,30
Sz1
+12,00
50
+11,95
+11,56
126
+11,99
Sw1
S3
+12,83
Rd Ø150
69
+11,63
126
RS Ø125mm
Sw2
44
2L19
Sw1
64
+12,06
120
podbitka z desek
5
deska okapowa
+12,44
+12,39
+12,25
45
20 5
19
25 25
Rd Ø150
1 cm
obróbka blacharska
+12,50
+12,39
+12,36
25 cm
68
obróbka blacharska
Poz.1.2.1 - pł. pośrednia 14x14 (+13,05)
warstwa posadzkowa na kleju - gres
warstwa hydroizolacji z siatką z włókna szklanego
wylewka betonowa
folia polietylenowa 2x 0,5 mm
styropian akustyczny EPS T
paroizolacja
strop gęstożebrowy prefabrykowany
na belkach sprężonych, odporność ogniowa REI60
tynk cementowo -wapienny
8 cm
papa
25
Poz.1.2.1 - pł. pośrednia 14x14 (+13,05)
204
+13,05
słupek drewniany 14/14cm
+13,13
204
+13,05
15,5°
30
murłata 14x14 cm
25
Poz.1.2.2 - pł. kalenicowa 14x14 (+14,15)
papa
50
15,5
0°
27,73
%
68
+13,36
murłata 14x14 cm
2 cm
1 cm
4 cm
54
0°
15 ,5
%
27,73
D1
100
204
S2
D1
DKT PROJEKT
0.M25.4.salon
S3
60
24 36
41
41
40
5 25
39
24
Sw1
Sw2
Sw1
P1
P1
P1
P2
-1.42.komórka lokatorska M39
40
20
-1.43.komórka lokatorska M38
10
F6
Sw1
Sw1
240
235
165
160
180
40
-0,80
zewnętrzna dwuwarstwowa gr 39cm
Sz1 Ściana
tynk mineralny barwiony w masie
-1.44.komórka lokatorska M37
F1
-0,40
-1.46.komunikacja B
P1
-1.41.komórka lokatorska M36
P1
Sz2
P1
-1.40.komórka lokatorska M34
Ściana zewnętrzna dwuwarstwowa gr 42cm
tynk mineralny barwiony w masie
na siatce z włókna szklanego 1,5cm
styropian EPS 80-036 FASADA λ= 0,036W/mK gr. 18 cm
blok wapienno-piaskowy ( bloczek silikatowy) 24cm
tynk cementowo -wapienny 1,5cm
zewnętrzna dwuwarstwowa gr 36cm
Sz3 Ściana
tynk mineralny barwiony w masie
-3,00
-3,40
WACHOWSKA
PROJEKT BUDOWLANO-WYKONAWCZY BUDOWY
BUDYNKU WIELORODZINNEGO
WRAZ Z INFRASTRUKTURĄ TOWARZYSZĄCĄ
OSIEDLE KOZŁÓWKA W LEGIONOWIE
Legionowo, ul. Polskiej Organizacji Wojskowej ,
dz. nr ew. 5/6, obręb 63
INWESTOR
GMINA MIEJSKA LEGIONOWO
URZĄD MIASTA LEGIONOWO
ul. marsz. Józefa Piłsudskiego 41, 05-120 Legionowo
FAZA
PROJEKT BUDOWLANO - WYKONAWCZY
SPECJALNOŚĆ
ARCHITEKTURA
PROJEKTANT
-1.39.komórka lokatorska M33
-2,80
-3,50
na siatce z włókna szklanego 1,5cm
styropian EPS 80-036 FASADA λ= 0,036W/mK gr. 15 cm
blok wapienno-piaskowy ( bloczek silikatowy) 24cm
tynk cementowo -wapienny 1,5cm
Sz3
200
56
-0,45
Sw1
Sz3
10
drenaż
1%
-0,60=80,50 m.n.p.m
-0,41
200
-0,64
-1,20
bloczek betonowy gr 12cm
zabezpieczony izolacją - abizol
41
15
±0,00=81,10 m.n.p.m
-0,15
50
40
19 5
krata zabepieczająca
-0,60=80,50 m.n.p.m
B1
24 36
S1
39
90
S2
145
85
DOROTA
S3
INWESTYCJA
F1
na siatce z włókna szklanego 1,5cm
styrodur λ= 0,038W/mK 12 cm
ściana żelbetowa 24cm
/od poziomu -1,20m bloczek betonowy 24cm
tynk cementowo -wapienny 1,5cm
mgr inż. arch. DOROTA WACHOWSKA
SPRAWDZAJĄCY
mgr inż.
ROBERT GURDZIOŁEK
RYSUNEK
PRZEKRÓJ AA
SKALA
DATA
1:50
15.05.2014
NR UPR. PODPIS
22/R-152/
/ŁOIA/08
NR UPR. PODPIS
LOD/0463/
PWOK/07
NR RYSUNKU
PBW.A.8.