KANAŁ C.O. LEGAR 10cm x 8cm SPORTOWA SYSTEMOWA

Transkrypt

KANAŁ C.O. LEGAR 10cm x 8cm SPORTOWA SYSTEMOWA
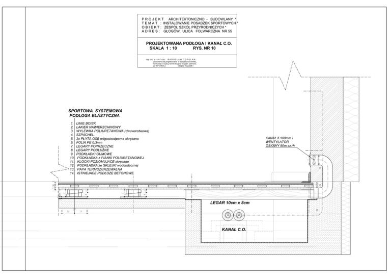
P R O J E K T ARCHITEKTONICZNO - BUDOWLANY *
T E M A T : INSTALOWANIE POSADZEK SPORTOWYCH *
O B I E K T : ZESPÓŁ SZKÓŁ PRZYRODNICZYCH *
A D R E S : GŁOGÓW, ULICA FOLWARCZNA NR 55
PROJEKTOWANA PODŁOGA I KANAŁ C.O.
SKALA 1 : 10
RYS. NR 10
mgr inż. a r c h i t e k t R A D O S Ł A W T O P O L A N ;
uprawnienia do projektowania w specjalności archite_
ktonicznej i w specj. konstrukcyjnej w ogran. zakresie;
upr Nr 12/94/Lw
Głogów maj 2009 r.
SPORTOWA SYSTEMOWA
PODŁOGA ELASTYCZNA
1.
2.
3.
4.
5.
6.
7.
8.
9.
10.
11.
12.
13.
14.
LINIE BOISK
LAKIER NAWIERZCHNIOWY
WYLEWKA POLIURETANOWA (dwuwarstwowa)
SZPACHEL
2x PŁYTA OSB wilgocioodporna skręcana
FOLIA PE 0,3mm
LEGARY POPRZECZNE
LEGARY PODŁUŻNE
PODKŁADKI GUMOWE
PODKŁADKA z PIANKI POLIURETANOWEJ
KLOCKI POZIOMUJACE skręcane
PODKŁADKA ze SKLEJKI wodoodpornej
PAPA TERMOZGRZEWALNA
ISTNIEJACE PODŁOZE BETONOWE
KANAŁ fi 100mm i
WENTYLATOR
OSIOWY 80m.sz./h
LEGAR 10cm x 8cm
KANAŁ C.O.