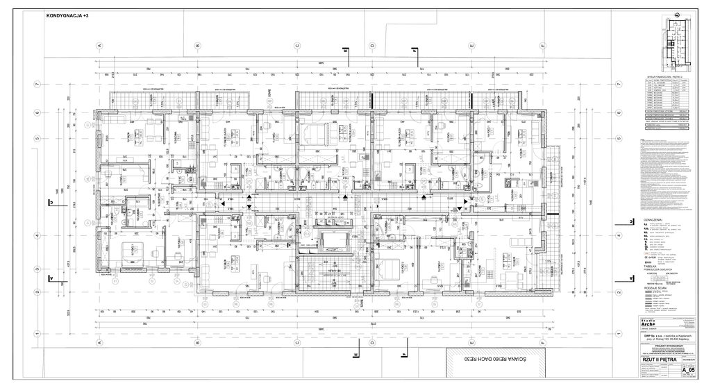
rzuty a05 (1) - Jelonki House

Transkrypt

rzuty a05 (1) - Jelonki House
F
F
E
E
D
C
B
A
KONDYGNACJA +3
7
2.01
2.02
2.03
2.04
13/M3
14/M2
15/M2
16/M2
17/M3
18/M3
19/M1
5
RTV
RTV
RTV
5
RTV
0
6
1.5%
1.5%
1.5%
1.5%
6
1.5%
7
WYKAZ POMIESZCZEŃ - PIĘTRO 2
Uwagi
1. Rzędna architektoniczna +/-0.00 arch.= 35.00m npm.
2. Opis elewacji, ścian, wykończenie i materiały zawarte w opisie technicznym. Wzór, kształt, kolor kostki
betonowej, gresu, okładziny tam gdzie tego jednoznacznie nie określono należy uzgodnić z projektantem.
3. Otwory przebić instalacyjnych wykonać wg. rys. architektury I konstrukcji. Przebicia o średnicy do
10cm. nie pokazane na rys. wykonać przez przewiercenie po potwierdzeniu lokalizacji przez nadzór
autorski.
4. W przypadku rozbieżności konstrukcji, wymiarów lub innych elementów projektów branżowych z
architekturą należy powiadomić nadzór autorski w celu uzyskania jednoznacznych decyzji
realizacyjnej.
5. Elementy kanalizacji zabetonowane w płycie dennej wykonać wg odrębnego projektu instalacyjnego.
Elementy zabetonowane (korytka odprow. wodę oraz przewody instalacyjne) osadzić zgodnie z
technologią producenta. Położenie wg proj. konstr., instalacji I architektury.
6. Podziemne ściany murowane znajdujące się w gruncie zabezp. przeciwwilgociowo powłoką
hydroizolacyjną zgodnie z oborem w projekcie lub w inny sposób uzgodniony z projektantem. Nie wolno
stosować żadnych lepików na zimno i mas zawierających rozpuszczalniki mineralne.
7. Folię drenaż. (kubełkową) przycinać do projektowanego poziomu listwy wentylacyjnej po całkowitym
ukształtowaniu terenu. Układać zgodnie z instrukcją producenta "kubełkami" do ściany. Na czas
budowy chronić przed zamuleniem, listwę wentylacyjną ułożyć po ukształtowaniu terenu.
8. Marki stalowe i elementy instalacji odgromowej wykonać wg. projektu wykonawczego instalacji
elektrycznych przed wykonaniem płyty dennej.
9. Drzwi stalowe, bramy, drzwi i wrota p. pożarowe osadzać zgodnie z atestami i technologią producenta
przed wykonaniem warstw wierzchnich posadzek.
10. Przed zamówieniem okien, drzwi I bram wszystkie wymiary należy sprawdzić w naturze dla uniknięcia
niezgodności na etapie wykonawczym.Typ ościeżnicy drzwi stalowych różnych typów, dostosować do rodzaju
otworu. Wszystkie drzwi o założonej odporności ogniowej, zaopatrzone w samozamykacze, dostosowane do
wymogu skutecznego zamknięcia drzwi p. pożarowych.
11. Posadzki wykonywać jako pływajace t.j. z dylatacją obwodową 1cm. styropian.
12. Szlichty posadzek dylat. w polach max. 4X4 m, niezależnie od dylatacji konstrukcji.
13. Zamknięcia dylatacji konstrukcyjnych na elewacji wykonywać w/g systemu tynku. Do wysokości
30cm ponad poziom terenu lub warstw na płycie garażu w/g systemu uszczelniania płyty nad garażem.
14. Zabezpieczenie i uszczelnienie dylatacji na płycie nad garażem w strefie izolacji przeciwwodnej
wykonać w/g systemu i technologii pokrycia przyjętych przez wykonawcę i uzgodnionych z biurem
projektowym.
15. Wszystkie dolne powierzchnie nadwieszonych płyt, gzymsów, balkonów, daszków kominowych
wykonywać z kapinosami głęb. min. 3cm,
16. Ostateczny dobór i specyfikacja wpustów dachowych, tarasowych i na płycie garażu wg projektu
wykonawczego wod-kan.
17. Poziomy instalacyjne wykonać wraz z zabezpieczeniami wg dokumentacji branżowej.
18. Obudowy kanałów went. mechanicznej wyciągowej o założ. odp. ogniowej wykonywać z płyty
ognioodpornej GKF lub Promatect.
19. Zabudowę otworów rewizyjnych szachtów wentylacji mechanicznej mieszkań i usług wykonać jako stałą
o odporności ogniowej Ei60 systemowo w systemie Promatect-H lub Vermitect D. Szachty energetyczne
powinny być wydzielone ścianami o klasie odporności ogniowej EI 60.
20.Ściany i słupy garażu w strefie nie ogrzewanej znajdujące się bezpośrednio pod pomieszczeniami
ogrzewanymi należy ocieplić w pasie do 80cm pod stropem, nie niżej niż h=220cm od poziomu wyk.
posadzki. W garażach słupy żelbetowe na narożnikach - faza 2cm. Malowanie oznaczeń w garażu wg
oddzielnego opracowania.
21.We wszystkich wlotach kanałów wentylacyjnych nawiewnych i wyciągowych osadzić kratki
wentylacyjne ocynkowane, lakierowane z siatką (dostosowane do otworów).
Rury kanalizacji sanitarnej i deszczowej znajdujące się w bezpośrednim sąsiedztwie miejsc
parkingowych lub dojazdów i narażone na uszkodzenie zabezpieczyć osłonami stalowymi.
22.Przejścia szczelne wykonać wg technologii producenta
23.Wielkości rozdzielaczy, grzejników i białego montażu pokazano symbolicznie. Wymiary rzeczywiste
wynikają z konkretnych urządzeń wg. projektu wykonawczego instalacji wod-kan i c.o.
24.Szczegółowe płyty garażowej wg dokumentacji warszatowej hydroizolacji bezpowłokowej firmy NORMA-BUD
Zm
Pralka
Pralka
Lo
Pralka
Pralka
Lo
Lo
Lo
RTV
OZNACZENIA :
4
Lo
4
-1 -2
Pralka
C
Pralka
Pralka
Lo
C
RTV
B
-2
-1
B
-2
Lo
1.5%
Zm
RTV
Ścianka h=1,2m
BW_1 H=1.1m od posadzki
A
3
TABELKA
POMIESZCZEŃ OGÓLNYCH
A
2
2
RODZAJE ŚCIAN
JEDNOSTKA PROJEKTOWA:
PRAWA AUTORSKIE DO OPRACOWANIA SA+
Studio
ul. Boremlowska 24
04-321 Warszawa
tel: 22 610 99 75
e-mail: [email protected]
www.archplus.pl
Arch+
Janusz Łepecki
1
F
E
D
C
NAZWA PROJEKTU
PROJEKT WYKONAWCZY
F
E
B
DWP Sp. z o.o. z siedzibą w Kajetanach,
przy ul. Rolnej 193, 05-830 Kajetany,
BUDYNKU MIESZKALNEGO, WIELORODZINNEGO
Z DWUPOZIOMOWYM PARKINGIEM PODZIEMNYM
I INFRASTRUKTURĄ TECHNICZNĄ W WARSZAWIE
PRZY UL. POWSTAŃCÓW ŚLĄSKICH 52;52A ; DZ. EW. NR 9,10 OBRĘB 6-11-14
ŚCIANA REI60 DACH RE30
A
1
INWESTOR:
NAZWA RYSUNKU
BRANŻA
RZUT II PIĘTRA
PROJEKT / OPRACOWAŁ
mgr inż. arch. Mariola Trzeciak
UPRAWNIENIA
Wa-620/91
PODPIS
SKALA
DATA
1:50
07.2015
mgr inż. arch. Janusz Łepecki
SPRAWDZIŁ
mgr inż. arch. Lilianna Stasiak
Wa-798/91
VER. PRO. 03
ZMIANA Z DNIA
30.07.2015