s2 s3 g1 d2 e1 d1 c1 a1 f1 a2 b2 s1 a3 a3 a3 a4 c1 c1 c1 c1 e1 e1

Transkrypt

s2 s3 g1 d2 e1 d1 c1 a1 f1 a2 b2 s1 a3 a3 a3 a4 c1 c1 c1 c1 e1 e1
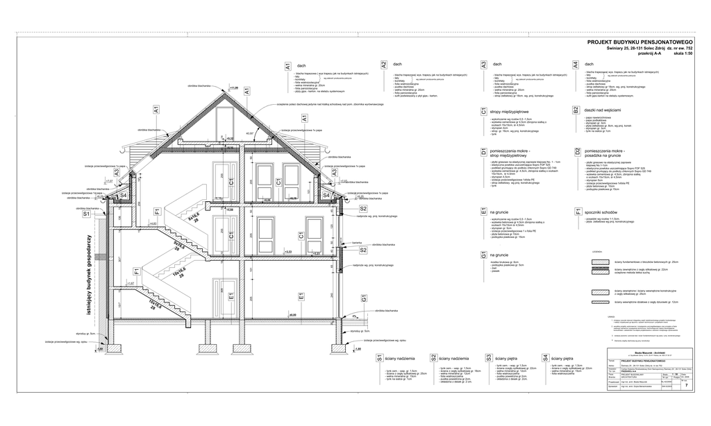
PROJEKT BUDYNKU PENSJONATOWEGO
+11,99
dach
A4
A3
dach
­ blacha trapezowa ( wys trapezu jak na budynkach istniejacych)
­ łaty
wg zaleceń producenta pokrycia
­ kontrłaty
­ folia wiatroizolacyjna
­ wełna mineralna gr. 20cm
­ folia paroizolacyjna
­ płyty gips.­ karton. na stelażu systemowym
A1
obróbka blacharska
A2
A1
Świniary 25, 28­131 Solec Zdrój dz. nr ew. 752
przekrój A­A
skala 1:50
dach
­ blacha trapezowa( wys. trapezu jak na budynkach istniejacych)
­ łaty
wg zaleceń producenta pokrycia
­ kontrłaty
­ folia wiatroizolacyjna
­ pustka dachowa
­ wełna mineralna gr. 20cm
­ folia paroizolacyjna
­ sufit podwieszany z płyt gips.­ karton.
dach
­ blacha trapezowa( wys. trapezu jak na budynkach istniejacych)
­ łaty
wg zaleceń producenta pokrycia
­ kontrłaty
­ folia wiatroizolacyjna
­ pustka dachowa
­ strop żelbetowy gr 18cm. wg. proj. konstrukcyjnego
­ wełna mineralna gr. 20cm
­ folia paroizolacyjna
­ sufit gips.karton na stelażu systemowym.
­ blacha trapezowa( wys. trapezu jak na budynkach istniejacych)
­ łaty
wg zaleceń producenta pokrycia
­ kontrłaty
­ folia wiatroizolacyjna
­ pustka dachowa
­ wełna mineralna gr. 20cm
­ folia paroizolacyjna
­ strop żelbetowy gr 18cm. wg. proj. konstrukcyjnego
A1
obróbka blacharska
stropy międzypiętrowe
izolacje przeciwwilgociowa 1x papa
daszki nad wejściami
­ papa nawierzchniowa
­ papa podkałdowa
­ styropian gr. 3cm
­ płyta żelbetowa gr. 8cm, wg proj. konstr.
­ styropian gr. 3cm
­ tynk na siatce gr.1cm
­ wykończenie wg rzutów 0,5 ­1,5cm
­ wylewka cementowa gr 4,5cm zbrojona siatką o
oczkach 15x15cm, śr 4,5mm
­ styropian 4cm
­ strop gr. 16cm. wg proj. konstrukcyjnego
­ tynk
40,00°
+9,32
obróbka blacharska
A3
+7,07
obróbka blacharska
18
S2
45
50
18
120
S2
65
­ posadzki wg rzutów 1­1,5cm.
­ płyta żelbetowa wg proj. konstrukcyjnego
LEGENDA:
na gruncie
ściany fundamentowe z bloczków betonowych gr. 25cm
­kostka brukowa gr. 6cm
­ podsypka piaskowa gr. 5cm
­ żwir
­ piasek
18
101
spoczniki schodów
obróbka blacharska
G1
50
barierka
28
+3,23
28
10
+3,33
,6
16
x
10 28
F1
na gruncie
­ wykończenie wg rzutów 0,5 ­1,5cm
­ wylewka betonowa gr 4,5cm zbrojona siatką o
oczkach 15x15cm śr 4,5mm
­ styropian gr. 5cm
­ izolacja przeciwwilgociowa 1 x folia PE
­ płyta betonowa gr.10cm
­ podsypka piaskowa gr. 15cm
C1
255
C1
205
F1
3015
izolacje przeciwwilgociowa 1x papa
+6,25
obróbka blacharska
nadproże wg. proj. konstrukcyjnego
9x
16
28 ,6
pomieszczenia mokre ­
posadzka na gruncie
­ płytki gresowe na elastycznej zaprawie
klejowej No.1­1cm
­ elastyczna powłoka uszczelniająca Sopro FDF 525
­ podkład gruntujący do podłoży chłonnych Sopro GD 749
­ wylewka cementowa gr. 4,5cm, zbrojona siatką
o oczkach 15x15cm, śr 4,5mm
­ styropian 5cm
­ izolacja przeciwwilgociowa 1xfolia PE
­ płyta betonowa gr. 10cm
­ podsypka piaskowa gr.15cm
F1
+6,16
28
259
15
14
+4,83
istniejący budynek gospodarczy
+5,88
,6
16
x
8 28
106
S1
18
obróbka blacharska
+6,06
25,00°
19
10
+6,16
S4
40
S4
22
25,00°
101
obróbka blacharska
izolacje przeciwwilgociowa 1x papa
+6,25
obróbka blacharska
E1
205
C1
C1
255
195
+7,07
pomieszczenia mokre ­
strop międzypietrowy
­ płytki gresowe na elastycznej zaprawie klejowej No. 1 ­ 1cm
­ elastyczna powłoka uszczelniająca Sopro FDF 525
­ podkład gruntujący do podłoży chłonnych Sopro GD 749
­ wylewka cementowa gr. 4,5cm, zbrojona siatką o oczkach
15x15cm, śr 4,5mm
­ styropian 4,5cm
­ izolacja przeciwwilgociowa 1xfolia PE
­ strop żelbetowy wg proj. konstrukcyjnego
­ tynk
izolacje przeciwwilgociowa 1x papa
A3
izolacje przeciwwilgociowa 1x papa
D2
D1
+9,16
50
45
16
14
B2
C1
A1
ocieplenie połaci dachowej jedynie nad klatką schodową nad pom. zbiornika wyrównawczego
nadproże wg. proj. konstrukcyjnego
ściany zewnętrzne z cegły silikatowej gr. 22cm
ocieplone metoda lekka suchą
1515
240
E1
ściany zewnętrzne i ściany wewnętrzne konstrukcyjne
z cegły silikatowej gr. 25cm
G1
x1
28 6,6
205
10
E1
15
305
+1,67
ściany wewnętrzne działowe z cegły dziurawki gr. 12cm
obróbka blacharska
±0,00
2%
UWAGI:
20
1. niniejszy rysunek stanowi integralną część wielobranżowego projektu budowlanego
i należy rozpatrywać go łącznie z opisem technicznym i projektami branż
2. wszelkie projekty wykonawcze i rozwiązania uszczegóławiające oraz przyjęte w fazie
realizacji zamienne rozwiązania techniczne i technologiczne należy bezwzględnie
konsultować i zatwierdzić na etapie projektowania z autorem niniejszego opracowania
styroduy gr. 5cm.
styroduy gr. 5cm.
3. izolacje poziome i pionowe ław i ścian fundamentowych wg opisu i proj. konstrukcujnego
izolacje przeciwwilgociowe wg. opisu
izolacje przeciwwilgociowe wg. opisu
­1,80
­ tynk cem. ­ wap. gr. 1,5cm
­ ściana z cegły sylikatowej gr. 25cm
­ wełna mineralna gr. 15cm
­ tynk na siatce gr. 1cm
­ tynk cem. ­ wap. gr. 1,5cm
­ ściana z cegły sylikatowej gr. 18cm
­ wełna mineralna gr. 12cm
­ folia wiatroszczelna
­ pustka powietrzna gr 2cm.
­ okładzina z desek gr. 2 cm.
ściany piętra
­ tynk cem. ­ wap. gr 1,5cm
­ ściana zcegły sylikatowej gr. 22cm
­ wełna mineralna gr. 12cm
­ folia wiatroszczelna
­ pustka powietrzna gr 2cm.
­ okładzina z desek gr. 2cm.
S4
ściany nadziemia
S3
ściany nadziemia
S2
Beata Mazurek ­ Architekt
S1
­1,80
4. Elementy więźby dachowej wg proj. konstrukcji
ściany piętra
­ tynk cem. ­ wap. gr. 1,5cm
­ ściana z cegły sylikatowej gr. 22cm
­ wełna mineralna gr. 15cm
­ folia wiatroszczelna
ul. Szydłówek Górny 1c/16 25­411 Kielce, tel. 600 37 50 57
Temat:
PROJEKT BUDYNKU PENSJONATOWEGO
Adres:
Świniary 25 , 28­131 Solec Zdrój dz. nr ew.752
Inwestor:
Tyt. rys:
Caritas Kielecka Środowiskowy Dom Samopomocy Świniary 25 , 28­131 Solec Zdrój
PRZEKRÓJ A­A
Faza:
Branża:
PROJEKT BUDOWLANY
ARCHITEKTURA
Projektował:
mgr inż. arch. Beata Mazurek
KL­42/2000
Sprawdził:
mgr inż. arch. Edyta Banachowska
SW­5/2003
Skala :
Nr upr.
1 : 50
Data:
Podpis 03. 2008
Nr rys.
7