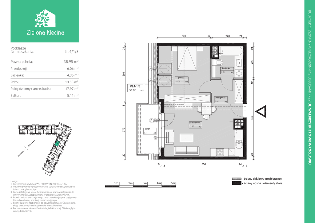
Powierzchnia: 38,95 m2 Poddasze Nr mieszkania
Transkrypt
										Powierzchnia: 38,95 m2 Poddasze Nr mieszkania
                                        
                                        
                                KL4/1/3 Powierzchnia: 38,95 m2 Przedpokój: 6,06 m2 Łazienka: 4,35 m2 Pokój: 10,58 m2 Pokój dzienny+ aneks kuch.: 17,97 m2 Balkon: 5,11 m2 Uwaga: 1. Powierzchnia użytkowa WG NORMY PN-ISO 9836-1997 2. Wszystkie wymiary podano w stanie surowym bez wykończenia ścian ( tynk, glazura, itp) 3. Karta katalogowa lokalu / mieszkania nie stanowi załącznika do umowy. Mogą wystąpić zmiany w projekcie wykonawczym. 4. Przedstawiona aranżacja wnętrz ma charakter jedynie poglądowy (do indywidualnej aranżacji przez kupującego. 5. Ściany działowe rozbieralne, do dowolnej aranżacji. Ściany nośne, słupy oraz piony instalacyjne stałe (nierozbieralne). 6. Rozmieszczenie elementów instalacji elektrycznej, CO do wglądu w proj. branżowym BUDYNEK MIESZKALNY WIELORODZINNY Z USŁUGAMI PRZY UL. WAŁBRZYSKIEJ 3 WE WROCŁAWIU Poddasze Nr mieszkania:
 doc
                    doc download
															download                                                         Reklamacja
															Reklamacja                                                         
		     
		     
		     
		     
		     
		     
		     
		    