Karta techniczna

Transkrypt

Karta techniczna
Karta techniczna urz¹dzenia
Temat/Nazwa:
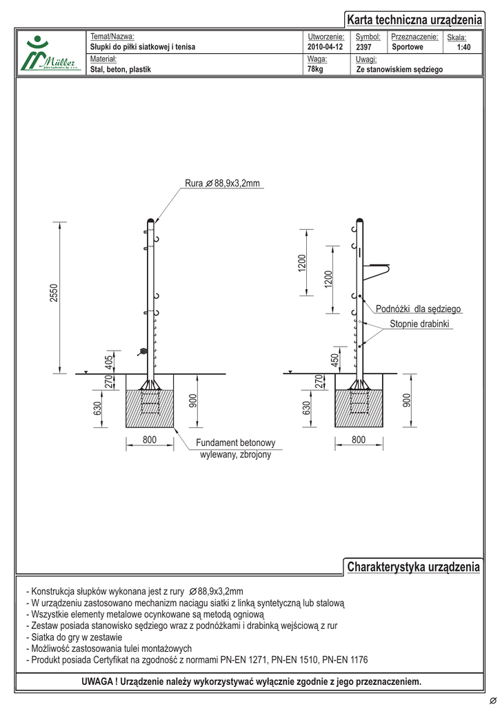
S³upki do pi³ki siatkowej i tenisa
Materia³:
Stal, beton, plastik
Utworzenie:
2010-04-12
Waga:
78kg
2550
1200
88,9x3,2mm
1200
Rura
Symbol: Przeznaczenie: Skala:
Sportowe
1:40
2397
Uwagi:
Ze stanowiskiem sêdziego
800
Fundament betonowy
wylewany, zbrojony
900
630
630
900
270
270 405
450
Podnó¿ki dla sêdziego
Stopnie drabinki
800
Charakterystyka urz¹dzenia
- Konstrukcja s³upków wykonana jest z rury 88,9x3,2mm
- W urz¹dzeniu zastosowano mechanizm naci¹gu siatki z link¹ syntetyczn¹ lub stalow¹
- Wszystkie elementy metalowe ocynkowane s¹ metod¹ ogniow¹
- Zestaw posiada stanowisko sêdziego wraz z podnó¿kami i drabink¹ wejœciow¹ z rur
- Siatka do gry w zestawie
- Mo¿liwoœæ zastosowania tulei monta¿owych
- Produkt posiada Certyfikat na zgodnoϾ z normami PN-EN 1271, PN-EN 1510, PN-EN 1176
UWAGA ! Urz¹dzenie nale¿y wykorzystywaæ wy³¹cznie zgodnie z jego przeznaczeniem.