1.1 1.4 pokój 11,50 przedpokój m2 pow./ nazwa pomieszczenia

Transkrypt

1.1 1.4 pokój 11,50 przedpokój m2 pow./ nazwa pomieszczenia
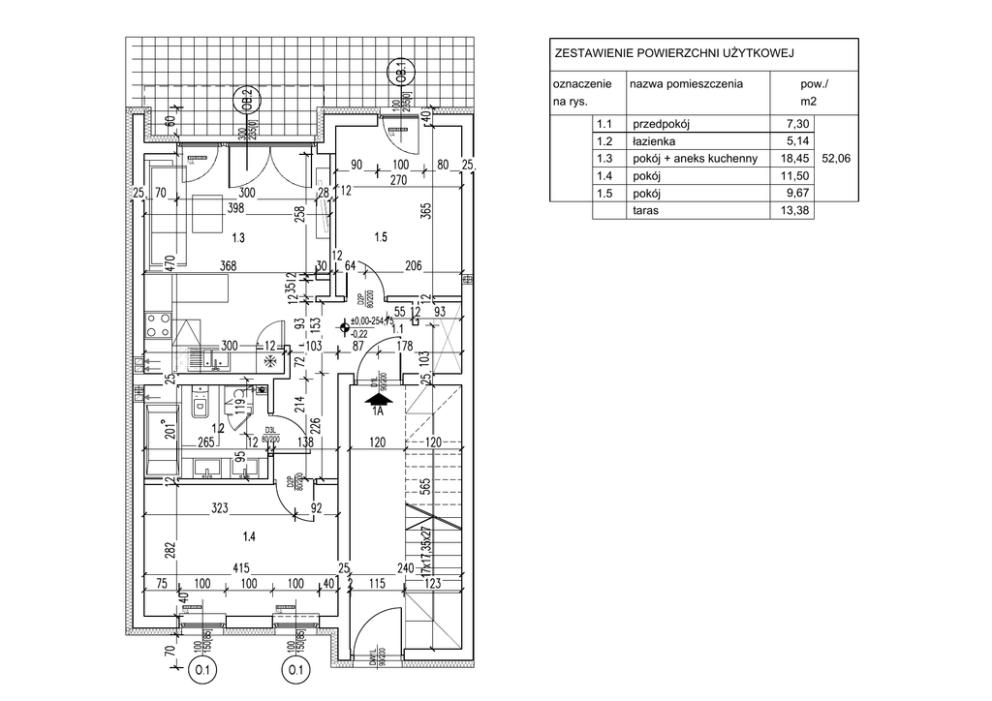
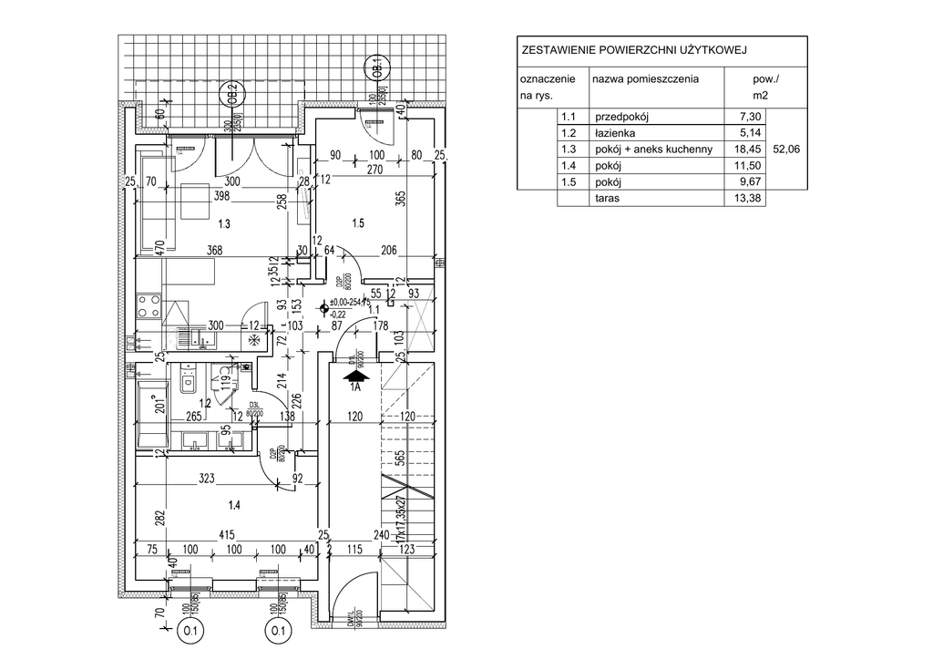
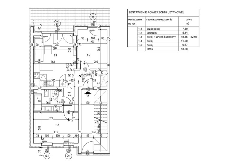
oznaczenie
nazwa pomieszczenia
na rys.
pow./
m2
1.1
1.2
1.3
1.4
1.5
taras
7,30
5,14
18,45
11,50
9,67
13,38
52,06