ARCHITEKTURA - bip.miasto.puck.pl

Transkrypt

ARCHITEKTURA - bip.miasto.puck.pl
Uwagi:
1
-Wymiary sprawdzić i korygować na budowie.
-Wszystkie wymiary i rozwiązania korygować w
powiązaniu z projektami branżowymi.
-Materiały i zastosowane technologie użyte do budowy
muszą posiadać odpowiednie atesty i aprobaty
dopuszczające do stosowania na terenie RP i UE.
-Zmiany, odchyłki wymiarowe i ostępstwa od projektuwynikłe w trakcie budowy-wymagają bezwzględnie
zgłoszenia i uzgodnienia z jednostką projektową
2
Całość prac budowlanych wykonać zgodnie z :
-Prawem budowlanym
-Warunkami technicznymi jakim powinny odpowiadać
budynki i ich usytuowanie
-Warunkom technicznym wykonania i odbioru robót
budowlano-montażowych
-Polskimi Normami
-Instrukcjami, wytycznymi,świadectwami dopuszczania i
atestami
-Instrukcjami, wytycznymi i warunkami technicznymi
producentów i dostawców materiałów budowlanych i
instalacyjnych
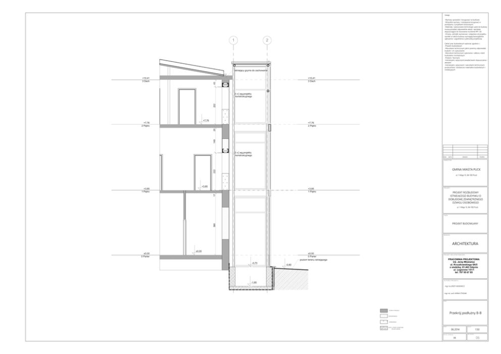
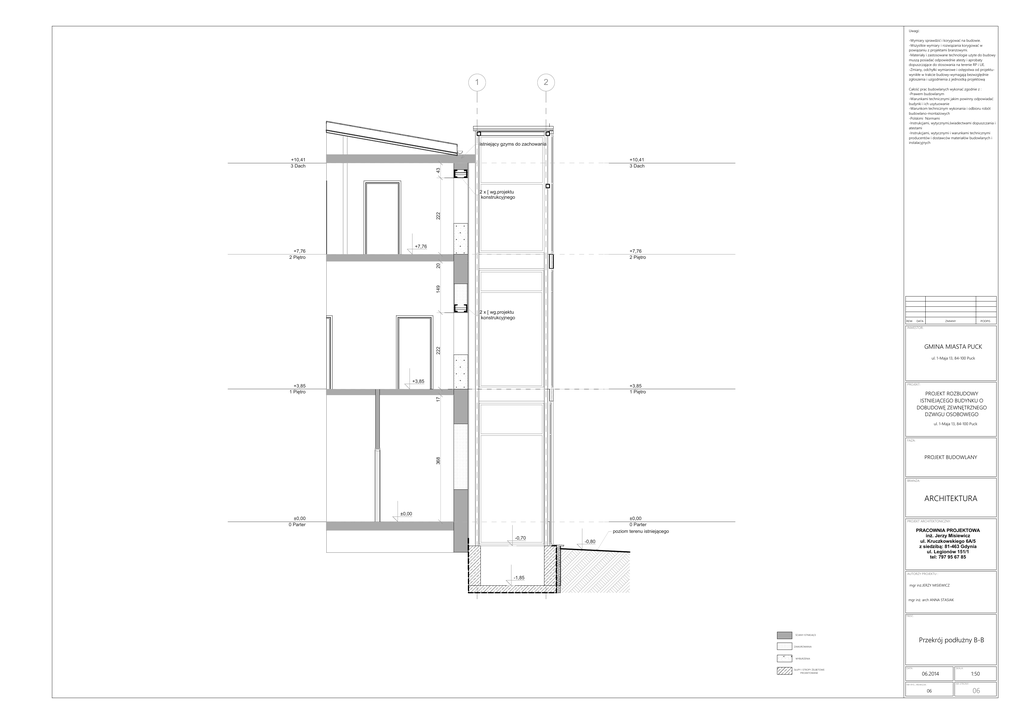
istniejący gzyms do zachowania
+10,41
3 Dach
43
+10,41
3 Dach
222
2 x [ wg.projektu
konstrukcyjnego
+7,76
+7,76
2 Piętro
149
20
+7,76
2 Piętro
2 x [ wg.projektu
konstrukcyjnego
REW.
DATA
ZMIANY
PODPIS
INWESTOR:
222
GMINA MIASTA PUCK
ul. 1-Maja 13, 84-100 Puck
+3,85
PROJEKT:
+3,85
1 Piętro
PROJEKT ROZBUDOWY
ISTNIEJĄCEGO BUDYNKU O
DOBUDOWĘ ZEWNĘTRZNEGO
DZWIGU OSOBOWEGO
17
+3,85
1 Piętro
ul. 1-Maja 13, 84-100 Puck
FAZA:
368
PROJEKT BUDOWLANY
BRANŻA:
ARCHITEKTURA
±0,00
0 Parter
±0,00
±0,00
0 Parter
poziom terenu istniejącego
-0,70
PROJEKT ARCHITEKTONICZNY:
PRACOWNIA PROJEKTOWA
inż. Jerzy Misiewicz
ul. Kruczkowskiego 6A/5
z siedzibą: 81-463 Gdynia
ul. Legionów 151/1
tel: 797 95 67 85
-0,80
AUTORZY PROJEKTU :
-1,85
mgr inż.JERZY MISIEWICZ
mgr inż. arch ANNA STASIAK
TREŚĆ:
ŚCIANY ISTNIEJĄCE
Przekrój podłużny B-B
ZAMUROWANIA
WYBURZENIA
SŁUPY I STROPY ŻELBETOWE
PROJEKTOWANE
DATA:
SKALA:
06.2014
1:50
NR STRONY:
NR RYS. /REWIZJA:
06
06