1. papa wentylowana SZYBKI SYNTAN SBS gr.5,2mm + KOMINKI

Transkrypt

1. papa wentylowana SZYBKI SYNTAN SBS gr.5,2mm + KOMINKI
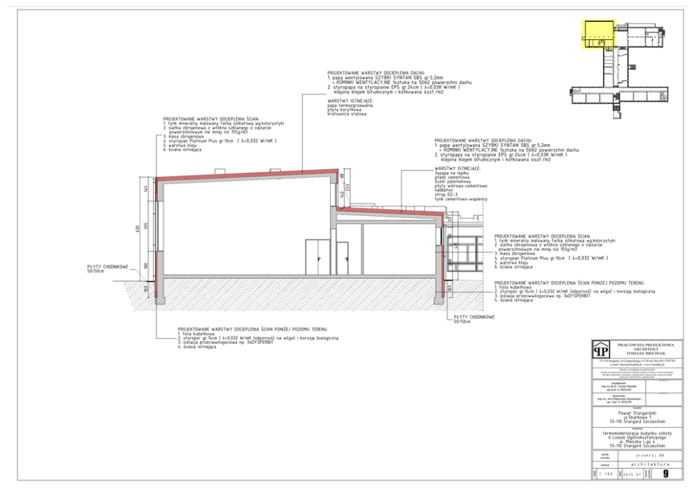
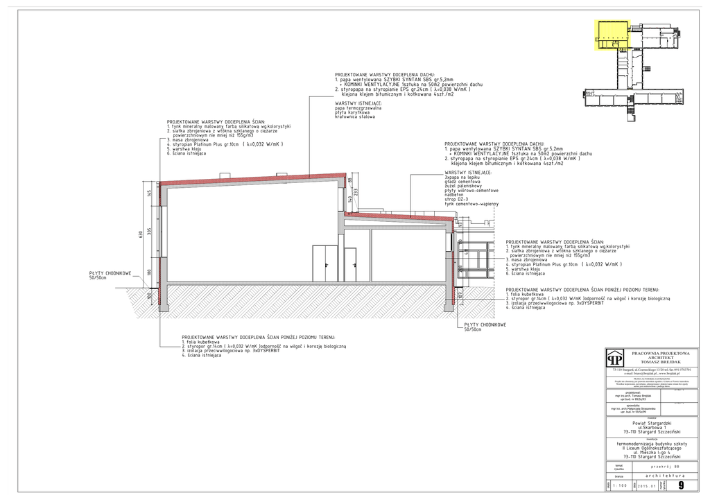
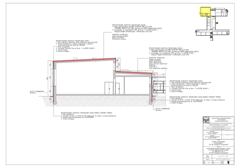
PROJEKTOWANE WARSTWY DOCIEPLENIA DACHU:
1. papa wentylowana SZYBKI SYNTAN SBS gr.5,2mm
+ KOMINKI WENTYLACYJNE 1sztuka na 50m2 powierzchni dachu
2. styropapa na styropianie EPS gr.24cm ( λ=0,038 W/mK )
klejona klejem bitumicznym i kołkowana 4szt./m2
PROJEKTOWANE WARSTWY DOCIEPLENIA DACHU:
1. papa wentylowana SZYBKI SYNTAN SBS gr.5,2mm
+ KOMINKI WENTYLACYJNE 1sztuka na 50m2 powierzchni dachu
2. styropapa na styropianie EPS gr.24cm ( λ=0,038 W/mK )
klejona klejem bitumicznym i kołkowana 4szt./m2
WARSTWY ISTNIEJĄCE:
3xpapa na lepiku
gładz cementowa
żużel paleniskowy
płyty wiórowo-cementowe
nadbeton
strop DZ-3
tynk cementowo-wapienny
107
180
100
PROJEKTOWANE WARSTWY DOCIEPLENIA ŚCIAN:
1. tynk mineralny malowany farbą silikatową wg.kolorystyki
2. siatka zbrojeniowa z włókna szklanego o ciężarze
powierzchniowym nie mniej niż 155g/m3
3. masa zbrojeniowa
4. styropian Platinum Plus gr.10cm ( λ=0,032 W/mK )
5. warstwa kleju
6. ściana istniejąca
PROJEKTOWANE WARSTWY DOCIEPLENIA ŚCIAN PONIŻEJ POZIOMU TERENU:
1. folia kubełkowa
2. styropor gr.14cm ( λ=0,032 W/mK )odporność na wilgoć i korozję biologiczną
3. izolacja przeciwwilogociowa np. 3xDYSPERBIT
4. ściana istniejąca
PŁYTY CHODNIKOWE
50/50cm
PROJEKTOWANE WARSTWY DOCIEPLENIA ŚCIAN PONIŻEJ POZIOMU TERENU:
1. folia kubełkowa
2. styropor gr.14cm ( λ=0,032 W/mK )odporność na wilgoć i korozję biologiczną
3. izolacja przeciwwilogociowa np. 3xDYSPERBIT
4. ściana istniejąca
PRACOWNIA PROJEKTOWA
ARCHITEKT
TOMASZ BREJDAK
73-110 Stargard, ul.Czarneckiego 13/20 tel./fax 091/5783701
e-mail: [email protected] , www.brejdak.pl
PRAWA AUTORSKIE ZASTRZEZONE
Projekt ten chroniony jest prawem autorskim zgodnie z Ustawa o Prawie Autorskim.
Wszelkie kopiowanie, powielanie, odstepowanie i dokonywanie zmian bez zgody
autora jest niedozwolone i podlega karze.
podpis
projektowal:
mgr inz.arch. Tomasz Brejdak
upr.bud. nr 89/Sz/93
podpis
sprawdziła:
mgr inz. arch.Małgorzata Straszewska
upr. bud. nr 59/Sz/99
inwestor
Powiat Stargardzki
ul.Skarbowa 1
73-110 Stargard Szczeciński
inwestycja
termomodernizacja budynku szkoły
II Liceum Ogólnokształcącego
ul. Mieszka I-go 4
73-110 Stargard Szczeciński
przekrój BB
branza
architektura
1:100
2015.01
numer
rysunku
temat
rysunku
data
skala
PŁYTY CHODNIKOWE
50/50cm
208
411
110
305
630
93
5
140
145
233
88
PROJEKTOWANE WARSTWY DOCIEPLENIA ŚCIAN:
1. tynk mineralny malowany farbą silikatową wg.kolorystyki
2. siatka zbrojeniowa z włókna szklanego o ciężarze
powierzchniowym nie mniej niż 155g/m3
3. masa zbrojeniowa
4. styropian Platinum Plus gr.10cm ( λ=0,032 W/mK )
5. warstwa kleju
6. ściana istniejąca
WARSTWY ISTNIEJĄCE:
papa termozgrzewalna
płyta korytkowa
kratownica stalowa
9